QQ登录

只需一步,快速开始

登录 | 注册 | 找回密码

三维网

 找回密码
 注册

QQ登录

只需一步,快速开始

展开

通知     

全站
6天前
查看: 2841|回复: 25
收起左侧

[求助] 关于气缸的问题

[复制链接]
发表于 2009-7-31 13:59:53 | 显示全部楼层 |阅读模式 来自: 中国浙江宁波

马上注册,结识高手,享用更多资源,轻松玩转三维网社区。

您需要 登录 才可以下载或查看,没有帐号?注册

x
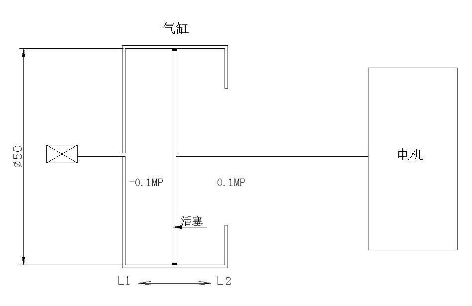
大家好:请问附图中,电机的技术参数,电机为步进电机& \/ l2 B- D) }* D+ k
1、活塞在气缸工中往复活动,步进电机的推力。
; ~+ v! t+ p  s0 L2、步进电机的转轴与活塞一般是怎么连接。

气缸原理 Model (1).pdf

5.78 KB, 下载次数: 16

发表于 2009-7-31 16:39:22 | 显示全部楼层 来自: 中国辽宁沈阳
第一个问题推力:从你给的图只能计算出无杆腔的推力为196.25N; f. j2 h5 m- _0 K
第二个问题连接:没看到过有这么用气缸的,不知道是气缸打得过电机还是电机打得过气缸(当然了,旋转气缸除外如果是的话就用联轴器吧)1 q/ t' i1 e; r
题外话,请发个图片上来让大家看,问别人问题还让别人花流量,太 了。
  G7 U7 H% M- \; Q9 W9 l) m
' ~3 F, G* j+ K* e[ 本帖最后由 zhangbo2140 于 2009-7-31 16:50 编辑 ]

评分

参与人数 1三维币 +2 收起 理由
华氏911 + 2 技术讨论

查看全部评分

 楼主| 发表于 2009-8-6 14:30:01 | 显示全部楼层 来自: 中国浙江宁波
气缸的活塞杆是螺纹,电机的轴也是螺纹(电机要正反转),要加一个联轴器,大家有什么好建议
发表于 2009-8-6 23:37:01 | 显示全部楼层 来自: 中国河北廊坊
谢谢!!!!!!!!!!!!!

评分

参与人数 1三维币 -3 收起 理由
华氏911 -3 灌水

查看全部评分

发表于 2009-8-7 08:09:26 | 显示全部楼层 来自: 中国辽宁沈阳
你的要求好难实现
 楼主| 发表于 2009-8-18 13:36:53 | 显示全部楼层 来自: 中国浙江宁波
难实现也得实现呀
 楼主| 发表于 2009-8-18 13:59:41 | 显示全部楼层 来自: 中国浙江宁波
气缸活塞只能往复,电机轴旋转加往复,中间加个特殊联轴器,活塞往复电机旋转加往复,请各位高手指导5 Q* z" j. E" Z) C. i
& ^3 i/ U6 |3 A+ F) j! R
[ 本帖最后由 囡囡娘 于 2009-8-18 14:05 编辑 ]
未命名.JPG
发表于 2009-8-18 14:11:38 | 显示全部楼层 来自: 中国河北保定
就我的理解,将汽缸的活塞内部改为套筒,内部开内旋纹,电机的轴为外螺纹的(长度为活塞移动的距离)。就可以了嘛。; |: K2 V3 g9 J0 M) v

, D# J0 w  }% ]+ U7 r7 B# q  F1 _[ 本帖最后由 yjybd 于 2009-8-18 14:15 编辑 ]

评分

参与人数 1三维币 +2 收起 理由
华氏911 + 2 技术讨论

查看全部评分

 楼主| 发表于 2009-8-18 14:18:14 | 显示全部楼层 来自: 中国浙江宁波
楼上这样做有2个问题:
' ~9 u2 o" o3 p( w9 ^. c1、用螺纹联接,在往复运动(正反转),可能造成螺丝松动
  [7 E& M  ~) ^% k( R+ V2、用螺纹联接,电机往复加旋转运动,必定造成活塞旋转运动,这是不允许的。
 楼主| 发表于 2009-8-18 14:19:34 | 显示全部楼层 来自: 中国浙江宁波
可能要加联轴器,联轴器一端是旋转运动,一端是往复运动,不知这样联轴器怎么设计
发表于 2009-8-18 14:41:59 | 显示全部楼层 来自: 中国上海
活塞杆上加工内螺纹,电机上加工外螺纹。两者形成一个螺旋运动即可实现楼主的要求。至于螺纹防松的问题,螺旋运动本身就不要求螺纹防松,自然也就没有防松的问题。螺旋运动有一个防脱问题(即内外螺纹脱开),这只要在外螺纹端部增设一块挡板并与编码器共同作用即可。

评分

参与人数 1三维币 +2 收起 理由
华氏911 + 2 技术讨论

查看全部评分

发表于 2009-8-18 15:18:41 | 显示全部楼层 来自: 中国辽宁沈阳
电机的主轴与活塞杆的关系没有说清楚,一般从设计理念上来讲,说不清楚的问题是一个无法让人理解的问题,如电机如何固定,如果是项目本身保密,不能多说就没法了,只能猜了,猜出楼主的意思很难呀
 楼主| 发表于 2009-8-18 16:32:16 | 显示全部楼层 来自: 中国浙江宁波
可能没说清楚,电机的主轴正转时轴往前运动(反转时,轴向后运动),因此电机轴有旋转加直线运动,但是活塞杆只能往复运动
发表于 2009-8-18 17:39:26 | 显示全部楼层 来自: 中国上海
原帖由 囡囡娘 于 2009-8-18 16:32 发表 http://www.3dportal.cn/discuz/images/common/back.gif
/ @5 O5 }$ O" c1 I6 {- o. D可能没说清楚,电机的主轴正转时轴往前运动(反转时,轴向后运动),因此电机轴有旋转加直线运动,但是活塞杆只能往复运动

' W# |, d  c8 f8 d- t3 Z为什么这样设计,电机的轴可是只能做旋转运动的。其实,电机轴旋转(不作轴向运动),通过丝杆丝母带动气缸活塞杆前后运动不就可以了吗?丝杠和丝母之间相互运动,这样就避免了电机轴的轴向运动。
# |8 ]  f2 B$ k- u! M0 C+ y其实这样设计本身就不合理,为何不采用电动缸或电液推杆来实现直线运动呢?电动缸或电液推杆只需通电就可以实现前后的直线运动。
+ M9 Y2 y$ ~4 ]1 |# z9 S5 P
' u5 t; ]0 ~! y/ \2 l! r2 d6 x' w# ^[ 本帖最后由 schjie 于 2009-8-18 17:40 编辑 ]

评分

参与人数 1三维币 +2 收起 理由
华氏911 + 2 技术讨论

查看全部评分

 楼主| 发表于 2009-8-19 08:48:12 | 显示全部楼层 来自: 中国浙江宁波
请问楼上什么是电动缸或电液推杆,这个方案是我们另一个研发人员选用的,我只是把缸和电机联接起来。
1 w* s  K2 O7 z- P. D电机是直线电机,由于行程问题,只能采用轴又是旋转又是移动的
 楼主| 发表于 2009-8-19 09:20:01 | 显示全部楼层 来自: 中国浙江宁波
不好意思设计人员搞错了,电机是旋转的,没有直线运动
 楼主| 发表于 2009-8-19 09:22:33 | 显示全部楼层 来自: 中国浙江宁波
谢谢这几天大家的帮助
发表于 2009-8-19 09:34:15 | 显示全部楼层 来自: 中国重庆
为什么不使用电动执行器呢,外形像无杆气缸,步进电机驱动
 楼主| 发表于 2009-8-19 16:02:05 | 显示全部楼层 来自: 中国浙江宁波
电动执行器本身不带气缸吧
发表于 2009-8-19 16:27:24 | 显示全部楼层 来自: 中国辽宁沈阳
气缸只是一个执行元件,它的活塞杆是可转动的,要是同电机联上,不管是连接在底座上还是用其它方法安装,只要没有限制它的转动,有一个外力就会转起来,电机在使用过程中,也不能有任何旋转,否则电气无法安装,(特种电机除外),电机在旋转时又有很大的启动力矩,这个力矩要限制掉,还有,楼主一直不说电机的主轴同气缸的活塞杆是不是也连在一起,要是的话, 这个方案就别做了,肯定不成的了。其它方案无法给出,因不知道你的设计条件及设计要求,不能评说。一点小意见,参考一下了,要是保密的东西,最好不要拿出来讨论。
发表于 2009-8-19 20:54:38 | 显示全部楼层 来自: 中国河北唐山
建议楼主选用EMG的电动推杆
 楼主| 发表于 2009-8-26 14:08:25 | 显示全部楼层 来自: 中国浙江宁波
现在要求的是电机的主轴同气缸的活塞杆连接,还有电机已经买来了,即有旋转同时还有直线运动呀,而且活塞杆又不允许旋转,这种方案是不是行不通呀: C. s' k1 W7 X7 a" ~( ]
, d3 a0 ]' {+ k6 p  ], g4 J) v
[ 本帖最后由 囡囡娘 于 2009-8-26 14:12 编辑 ]
发表于 2009-8-26 22:00:52 | 显示全部楼层 来自: 中国天津
用斜盘式连轴器就可以实现旋转往复运动
发表于 2009-8-27 08:17:17 | 显示全部楼层 来自: 中国辽宁沈阳
原帖由 囡囡娘 于 2009-8-26 14:08 发表 http://www.3dportal.cn/discuz/images/common/back.gif2 U9 W# Z9 `: w4 d3 e0 t3 k
现在要求的是电机的主轴同气缸的活塞杆连接,还有电机已经买来了,即有旋转同时还有直线运动呀,而且活塞杆又不允许旋转,这种方案是不是行不通呀
& ?2 o% b/ S8 x+ ^+ g6 U; m
2 Z/ g3 y5 I6 ^
你想想,电机的线怎么接呀?
发表于 2009-8-27 11:00:14 | 显示全部楼层 来自: 美国
我觉得1:汽缸不是所有活塞杆全是圆的的,但是你要选好型. t$ o1 M9 v8 b
      2为什么不考虑旋转汽缸
发表回复
您需要登录后才可以回帖 登录 | 注册

本版积分规则

Licensed Copyright © 2016-2020 http://www.3dportal.cn/ All Rights Reserved 京 ICP备13008828号

小黑屋|手机版|Archiver|三维网 ( 京ICP备2023026364号-1 )

快速回复 返回顶部 返回列表