QQ登录

只需一步,快速开始

登录 | 注册 | 找回密码

三维网

 找回密码
 注册

QQ登录

只需一步,快速开始

展开

通知     

全站
6天前
查看: 1425|回复: 4
收起左侧

[求助] 增压缸

[复制链接]
发表于 2009-8-5 15:27:10 | 显示全部楼层 |阅读模式 来自: 中国江苏无锡

马上注册,结识高手,享用更多资源,轻松玩转三维网社区。

您需要 登录 才可以下载或查看,没有帐号?注册

x
有做过增压缸的兄弟吗?能否提供一张结构图学习学习呢,先谢了。
发表于 2009-8-5 16:00:08 | 显示全部楼层 来自: 中国上海
增压缸就是大活塞推动小活塞,两个活塞面积比叫增压比。就这么简单
发表于 2009-8-6 09:58:11 | 显示全部楼层 来自: 中国广东深圳
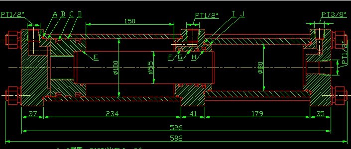
自己做过的一个
未命名.jpg

评分

参与人数 1三维币 +5 收起 理由
9619 + 5 应助,谢谢!

查看全部评分

发表于 2009-8-6 10:07:37 | 显示全部楼层 来自: 中国辽宁沈阳
很好的作品,研究一下
 楼主| 发表于 2009-8-6 12:13:46 | 显示全部楼层 来自: 中国江苏无锡

回复 4# weizaiqi 的帖子

谢谢兄弟!不知你的增压缸压力能达到多少?如果最高压力要求达120MPA,,这拉杆结构还行不?请赐教!谢谢!
发表回复
您需要登录后才可以回帖 登录 | 注册

本版积分规则

Licensed Copyright © 2016-2020 http://www.3dportal.cn/ All Rights Reserved 京 ICP备13008828号

小黑屋|手机版|Archiver|三维网 ( 京ICP备2023026364号-1 )

快速回复 返回顶部 返回列表