QQ登录

只需一步,快速开始

登录 | 注册 | 找回密码

三维网

 找回密码
 注册

QQ登录

只需一步,快速开始

展开

通知     

查看: 1024|回复: 0
收起左侧

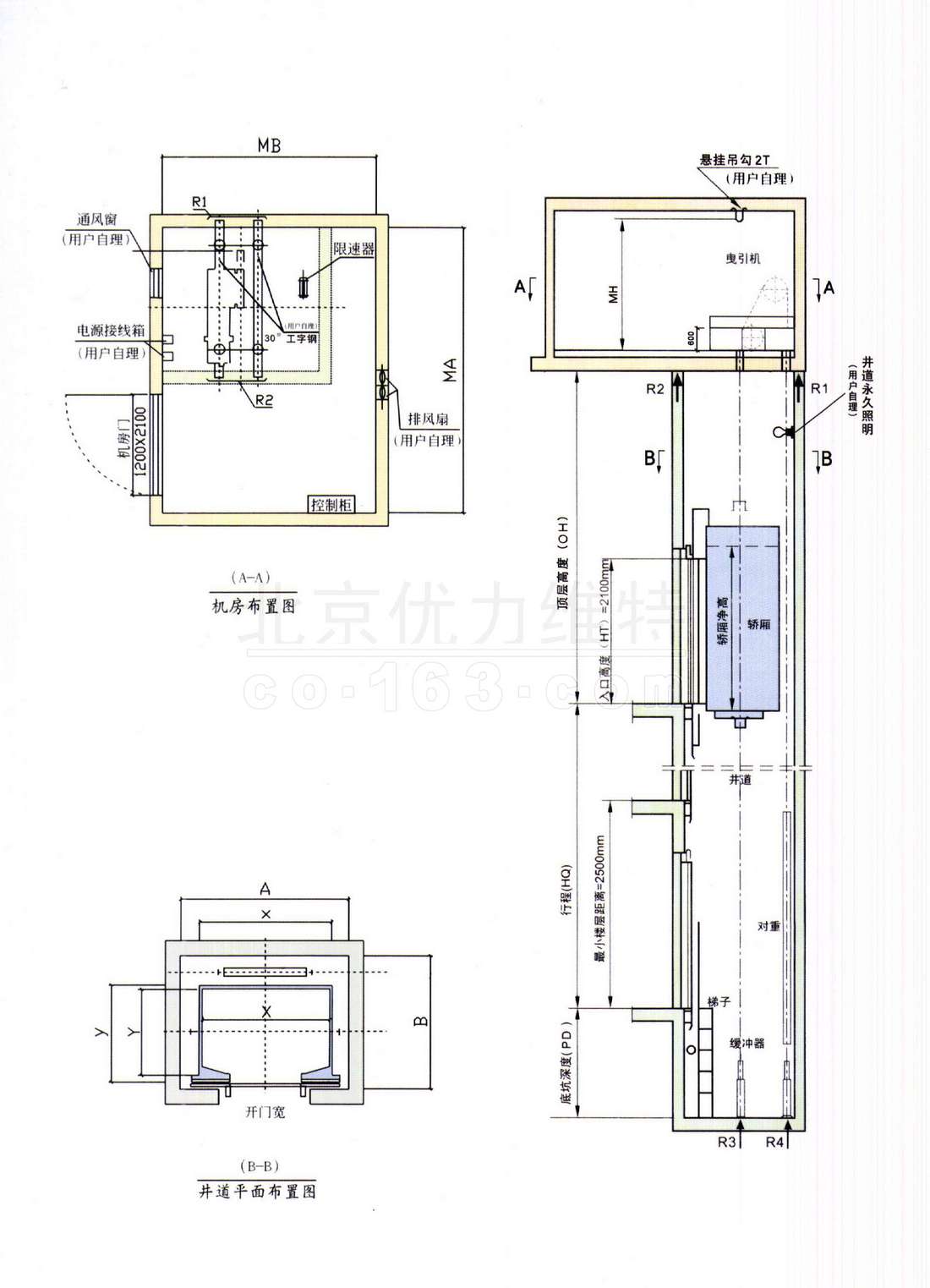
[分享] Eagle系列控制系统轿厢操作盘

 关闭 [复制链接]
发表于 2009-8-15 09:36:15 | 显示全部楼层 |阅读模式 来自: 中国江苏徐州

马上注册,结识高手,享用更多资源,轻松玩转三维网社区。

您需要 登录 才可以下载或查看,没有帐号?注册

x
Eagle系列控制系统轿厢操作盘-北京莫尼克有限公司样本资料,18张,2个包% W/ u7 ?/ S. R' v

& X7 X1 _+ V& R* r; o[ 本帖最后由 西风破 于 2009-8-15 09:38 编辑 ]
001.jpg
005.jpg
018.jpg

Eagle系列控制系统轿厢操作盘-北京莫尼克有限公司18张.part1.rar

1.91 MB, 下载次数: 3

Eagle系列控制系统轿厢操作盘-北京莫尼克有限公司18张.part2.rar

436.84 KB, 下载次数: 3

发表回复
您需要登录后才可以回帖 登录 | 注册

本版积分规则


Licensed Copyright © 2016-2020 http://www.3dportal.cn/ All Rights Reserved 京 ICP备13008828号

小黑屋|手机版|Archiver|三维网 ( 京ICP备2023026364号-1 )

快速回复 返回顶部 返回列表