QQ登录

只需一步,快速开始

登录 | 注册 | 找回密码

三维网

 找回密码
 注册

QQ登录

只需一步,快速开始

展开

通知     

查看: 1128|回复: 2
收起左侧

[已解决] 外压容器计算

[复制链接]
发表于 2009-8-18 11:27:02 | 显示全部楼层 |阅读模式 来自: 中国江苏泰州

马上注册,结识高手,享用更多资源,轻松玩转三维网社区。

您需要 登录 才可以下载或查看,没有帐号?注册

x
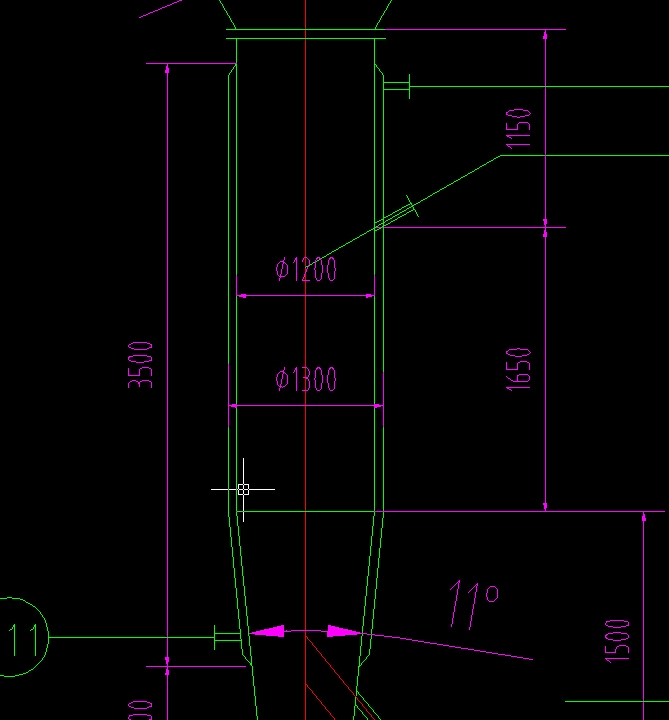
外压圆筒的加强圈计算长度如何确定?
Image00005.jpg
Image00006.jpg
 楼主| 发表于 2009-8-18 13:07:32 | 显示全部楼层 来自: 中国江苏泰州
自已顶一下
 楼主| 发表于 2009-8-18 13:24:31 | 显示全部楼层 来自: 中国江苏泰州
说明一下,长度3500中间设置一个补强圈,外压圆筒的计算长度应为多少?
发表回复
您需要登录后才可以回帖 登录 | 注册

本版积分规则


Licensed Copyright © 2016-2020 http://www.3dportal.cn/ All Rights Reserved 京 ICP备13008828号

小黑屋|手机版|Archiver|三维网 ( 京ICP备2023026364号-1 )

快速回复 返回顶部 返回列表