QQ登录

只需一步,快速开始

登录 | 注册 | 找回密码

三维网

 找回密码
 注册

QQ登录

只需一步,快速开始

展开

通知     

goto3d 说: 在线网校重磅上线MC2022&Inventor2022全新课程,虞为民老师、大表哥同事精彩讲解,快去围观!
2021-06-25
查看: 1634|回复: 8
收起左侧

[已解决] 有一对加强筋画不出来,请高手帮忙。

[复制链接]
发表于 2009-8-19 17:12:34 | 显示全部楼层 |阅读模式 来自: 中国福建福州

马上注册,结识高手,享用更多资源,轻松玩转三维网社区。

您需要 登录 才可以下载或查看,没有帐号?注册

x
有一对加强筋画不出来,请高手帮忙。

dc12.prt.rar

640.24 KB, 下载次数: 31

发表于 2009-8-19 17:49:03 | 显示全部楼层 来自: 中国江苏苏州
应该是上个图,以方便交流
发表于 2009-8-19 17:57:59 | 显示全部楼层 来自: 中国江苏苏州
可以的 ZZ.jpg 是用4.0做的

评分

参与人数 1三维币 +3 收起 理由
wz_111 + 3 应助

查看全部评分

 楼主| 发表于 2009-8-19 23:31:39 | 显示全部楼层 来自: 中国福建福州
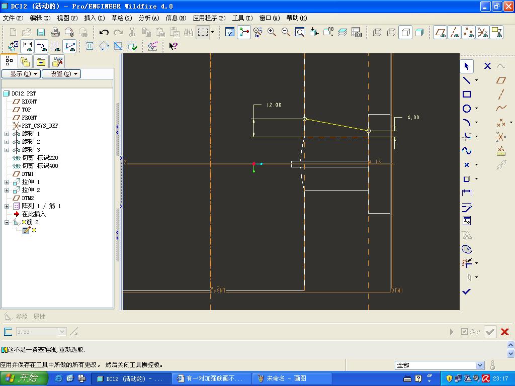
我也是用4.0,不知错在那里,请看下图:
dc12-4.JPG
dc12-5.JPG
dc12-6.JPG
dc12-7.JPG
dc12-8.JPG
dc12-9.JPG
 楼主| 发表于 2009-8-19 23:34:06 | 显示全部楼层 来自: 中国福建福州
请yvhkriu传一个简单流程。
发表于 2009-8-20 07:55:45 | 显示全部楼层 来自: 中国浙江宁波
这样画行吗 ? 给你个参考
1.jpg
2.jpg
 楼主| 发表于 2009-8-20 08:05:15 | 显示全部楼层 来自: 中国福建福州
按产品要求这样画不行
发表于 2009-8-20 08:33:33 | 显示全部楼层 来自: 中国陕西咸阳
不知道是不是这样?你应该是少选择一个基准面,而且筋的拉伸方向不对,再试试" j* D$ H0 g( q. K- u& P& r% z  s
2 `3 v0 v+ F( w" E! f
[ 本帖最后由 gzqin 于 2009-8-20 08:35 编辑 ]
QQ截图未命名.jpg
 楼主| 发表于 2009-8-20 12:53:32 | 显示全部楼层 来自: 中国福建福州
楼上画得不错,是这样的,我现在已找到原因,画好了谢谢各位,我用相交实体线得到交点就可以,用点线共约束就不行。
发表回复
您需要登录后才可以回帖 登录 | 注册

本版积分规则

Licensed Copyright © 2016-2020 http://www.3dportal.cn/ All Rights Reserved 京 ICP备13008828号

小黑屋|手机版|Archiver|三维网 ( 京ICP备2023026364号-1 )

快速回复 返回顶部 返回列表