QQ登录

只需一步,快速开始

登录 | 注册 | 找回密码

三维网

 找回密码
 注册

QQ登录

只需一步,快速开始

展开

通知     

全站
2天前
查看: 4982|回复: 33
收起左侧

[求助] 挑战绘图极限,请各位帮忙

[复制链接]
发表于 2009-8-20 11:00:01 | 显示全部楼层 |阅读模式 来自: 中国广东深圳

马上注册,结识高手,享用更多资源,轻松玩转三维网社区。

您需要 登录 才可以下载或查看,没有帐号?注册

x
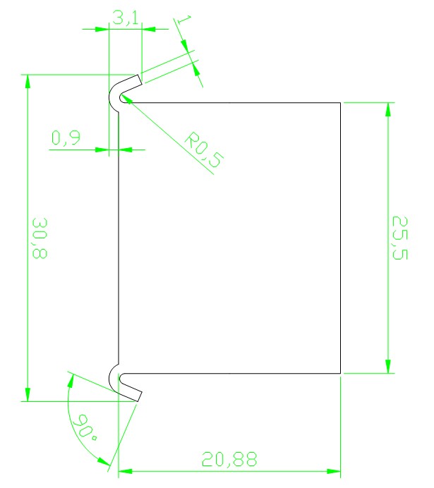
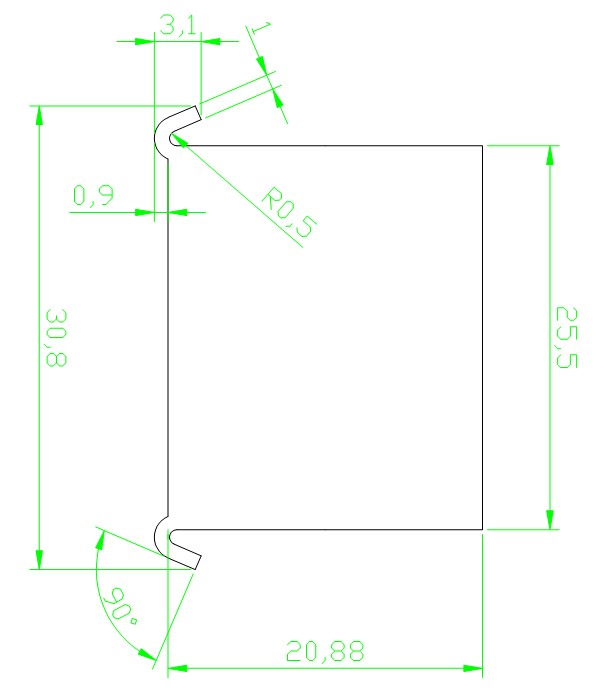
我希望大家能帮我解决这个图纸问题。怎么把按规定尺寸画出来。比较急呀。

练习2-布局1.pdf

6.15 KB, 下载次数: 55

发表于 2009-8-20 11:16:37 | 显示全部楼层 来自: 中国广西崇左
好像还是缺少些条件
& I6 R6 {: _- @. r 练习2-布局1.jpg 7 O5 [" X, a/ Y

# I" b% o) S, j  Z4 f  Y$ \11楼得全
+ X7 H) Q0 B* O Model.jpg
1 b3 e- ^* D" [; v7 M( L! a- ?% J$ o% x/ J# [
[ 本帖最后由 2005llnn 于 2009-8-20 16:45 编辑 ]

评分

参与人数 1三维币 +5 收起 理由
唐昕晨 + 5 讨论

查看全部评分

发表于 2009-8-20 11:33:40 | 显示全部楼层 来自: 中国广东中山
弄了一个,,,瞅瞅吧!
QQ截图未命名.jpg

评分

参与人数 1三维币 +5 收起 理由
唐昕晨 + 5 讨论

查看全部评分

发表于 2009-8-20 11:39:49 | 显示全部楼层 来自: 中国四川成都
还差一个尺寸吧  你主要是作左上角的部分 30.8对这图没有意义
 楼主| 发表于 2009-8-20 11:46:10 | 显示全部楼层 来自: 中国广东深圳

回复 3# pcyong 的帖子

但我还是不知道你是怎么画出来的呀,大哥。你能帮忙把步骤画出来不。
 楼主| 发表于 2009-8-20 11:50:00 | 显示全部楼层 来自: 中国广东深圳

回复 4# NIANZHENG 的帖子

30.8是一个很重要的尺寸了,没有它跟本就做不出来。
发表于 2009-8-20 11:55:13 | 显示全部楼层 来自: 中国广东中山
看下,想想步骤就出来了呀!
QQ截图未命名.jpg
 楼主| 发表于 2009-8-20 13:39:55 | 显示全部楼层 来自: 中国广东深圳

回复 7# pcyong 的帖子

角度23.20,是一个未知的条件呀,所以开始是画不出那个角度的,只能最后到测量时能保证达到这个尺寸角度 :) ,希望大哥再指点一下。
发表于 2009-8-20 14:19:56 | 显示全部楼层 来自: 中国广东中山

回复 8# kjbo88 的帖子

康康兄台,根据你给出的已知条件能画出来了呀!至于里面那个20.88x25.5矩形我也不知道对不对,我看着好像是原来矩形的两陪吧!
3 ~' x: `( `+ v+ u" e( @. N& K
5 l  n2 q+ c* S) D+ x1 Y+ n& I, g[ 本帖最后由 pcyong 于 2009-8-20 14:23 编辑 ]

Drawing3.dwg

17.84 KB, 下载次数: 4

发表于 2009-8-20 14:55:43 | 显示全部楼层 来自: 中国北京

你敢说我的图纸有问题吗?

你的图有问题,缺少尺寸。
9 j8 j# J( o  ^. K
  K0 i) p4 @. G: u& v[ 本帖最后由 machangqin 于 2009-8-20 15:10 编辑 ]
TXT.jpg
更改后.jpg

评分

参与人数 1三维币 +5 收起 理由
唐昕晨 + 5 讨论

查看全部评分

 楼主| 发表于 2009-8-20 14:57:16 | 显示全部楼层 来自: 中国广东深圳
三维总工,首先我得谢谢你这么热情的为我们解答问题,小生也得学习学习你助人精神,至于我这个问题是这样子的。那个角度尺寸是没有的,所以只有其它条件,我还是希望你能再帮我看看,俗话说“帮忙帮到底”。无论结果如何,小生定当感激不尽。看看PDF,里面有所有的条件。我刚刚传上去的。本来想直接传图片,可是我也不知道为什么我这里上传不了图片。所以麻烦你下下看看。
: k8 `4 ^" {4 d+ z. _  }, w& J2 |& b! J/ [1 u: l5 `2 j& d4 F
[ 本帖最后由 2005llnn 于 2009-8-20 16:42 编辑 ]
Model.jpg

Drawing3-Model.pdf

3.28 KB, 下载次数: 10

 楼主| 发表于 2009-8-20 15:03:34 | 显示全部楼层 来自: 中国广东深圳

回复 10# machangqin 的帖子

就那几个条件可以了,我自己有一种无限接近的方法可以画出来,但不够快捷也还存在误差,所以我想寻求大家的帮助找到一个更快捷的没有误差的绘图方法。
发表于 2009-8-20 15:18:10 | 显示全部楼层 来自: 中国北京
你11#传的pdf文件和你一楼的不一呀?
4 v8 D: y5 R$ m' f8 o* L3 Y/ X4 K还有你的11#的pdf文件的图怎么和“早睡早起”画的图一样,不知你想干嘛?0 x' p9 |  N' O2 f9 X
你想不通过那个角度画好这个图。按一楼画就是俺10#画的结果。' f7 k+ M% @/ s& W& O
8 P* U5 s$ S3 S! `# D) g
[ 本帖最后由 machangqin 于 2009-8-20 15:37 编辑 ]
 楼主| 发表于 2009-8-20 15:40:57 | 显示全部楼层 来自: 中国广东深圳

回复 14# machangqin 的帖子

对,那个角度开始是没有的,所以要不通过那个角度画好这个图。 :)
发表于 2009-8-20 15:47:29 | 显示全部楼层 来自: 中国北京
我想问一下你看我10#的图和14#的1、2两条吗。) }# w! ~6 _7 b. L' u7 ^# r; V
10#是不画角度的结果,显示缺少尺寸。
发表于 2009-8-20 15:54:50 | 显示全部楼层 来自: 中国广东中山
康康老兄,你不给这条件怎么画呀!晕!!!
发表于 2009-8-20 16:07:44 | 显示全部楼层 来自: 中国北京

回复 15# kjbo88 的帖子

有句话怎么说“你提的问题有问题”。
 楼主| 发表于 2009-8-20 16:42:38 | 显示全部楼层 来自: 中国广东深圳

回复 17# pcyong 的帖子

谢谢您的解答,我想应该能找到更好的方法吧,没有那个角度条件是可以画出来的,我已经画过。不过这个方法太笨了,要一步一步的无限接近,所以画起来就花时间。在此我还是要谢谢大家的帮助。希望大家能给予我们更多的支持。
发表于 2009-8-20 16:53:14 | 显示全部楼层 来自: 中国北京
你是想在缺少角度尺寸的情况下,画接近这个角度。方法不笨,想法有点.... / @: y' F% g: e+ r. W2 T2 Z6 i
麻烦楼主。。。。。
发表于 2009-8-20 17:23:39 | 显示全部楼层 来自: 中国广西崇左
已经讨论过类似的例子
1 Q/ H! o7 }* b; i. \9 k  f$ q3 ?
) E1 L9 S/ F" g. e' ~" X实际工作中遇到的问题,求图中L长
* `9 j% K$ m; P- D- }3 N
9 E0 S4 O# w- p6 }; q请看上面链接中6楼及9楼的方法
  n. {) d1 m0 G$ |) u: v: P% V  q: y1 K* ~" K" p- A
[ 本帖最后由 2005llnn 于 2009-8-20 17:28 编辑 ]
发表于 2009-8-20 18:54:54 | 显示全部楼层 来自: 中国江苏南京
这能算是挑战极限?
 楼主| 发表于 2009-8-21 09:46:57 | 显示全部楼层 来自: 中国广东深圳
我现在用的就是逼近法,呵呵,还是谢谢各位的帮助了。又让我学到了这么知识。
发表于 2009-8-21 10:33:35 | 显示全部楼层 来自: 中国四川德阳
这个问题在二维里确实是个难题,但是利用三维软件的草图(可通过约束定义相互关系)来解决就太简单了,解决问题所用的工具是非常重要的。
发表于 2009-8-21 10:57:01 | 显示全部楼层 来自: 中国福建莆田
跟以前的类似题又不一样,那个切点也是不定点
头像被屏蔽
发表于 2009-8-21 13:29:53 | 显示全部楼层 来自: 中国河北衡水
提示: 作者被禁止或删除 内容自动屏蔽
发表回复
您需要登录后才可以回帖 登录 | 注册

本版积分规则

Licensed Copyright © 2016-2020 http://www.3dportal.cn/ All Rights Reserved 京 ICP备13008828号

小黑屋|手机版|Archiver|三维网 ( 京ICP备2023026364号-1 )

快速回复 返回顶部 返回列表