QQ登录

只需一步,快速开始

登录 | 注册 | 找回密码

三维网

 找回密码
 注册

QQ登录

只需一步,快速开始

展开

通知     

查看: 3617|回复: 18
收起左侧

[求助] 弱弱问一下,减压阀后面为什么要加单向阀呀?

[复制链接]
发表于 2009-8-21 16:11:07 | 显示全部楼层 |阅读模式 来自: 中国北京

马上注册,结识高手,享用更多资源,轻松玩转三维网社区。

您需要 登录 才可以下载或查看,没有帐号?注册

x
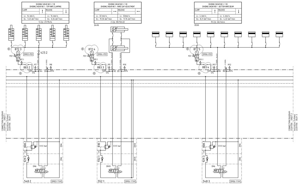
问一下,为什么这些减压阀后都要加一个单向阀呀?其中编号808、818均为ZDR型减压阀。( G* z% ]! Y5 w% }# C
! ]/ [$ P& E" Q$ b% g9 ]
[ 本帖最后由 yjsss 于 2009-8-21 16:16 编辑 ]
8-2.jpg
发表于 2009-8-21 17:23:46 | 显示全部楼层 来自: 中国北京
防止 长期保压期间或承受过载的执行器产生倒流时出口压力过高,对减压阀不利吧
发表于 2009-8-23 11:20:06 | 显示全部楼层 来自: 中国四川德阳
ZDR型减压阀不是可以反向溢流吗,那还加单向阀做什么呢?0 K; ^( Z) @$ `
如果是为了防止倒流,那用普通的减压阀就可以了。
发表于 2009-8-23 11:34:01 | 显示全部楼层 来自: 中国河北邯郸
应该是对双向减压阀起安全保护作用,防止回流。西马克设计的安全考虑比较多
发表于 2009-8-24 08:15:28 | 显示全部楼层 来自: 中国河北唐山
防止冲击对减压阀性能的影响,当反向压力过高时减压阀开口将减小,系统工作不稳定,减压效果不好。用单向阀就是阻止过高的压力冲击出口。
发表于 2009-8-24 12:34:51 | 显示全部楼层 来自: 中国辽宁本溪
原帖由 hmilylaji 于 2009-8-23 11:20 发表 http://www.3dportal.cn/discuz/images/common/back.gif
1 ~+ S1 q8 R: E0 b' t1 Q7 b( j/ eZDR型减压阀不是可以反向溢流吗,那还加单向阀做什么呢?  A% `5 K4 w. ^( t5 X0 r
如果是为了防止倒流,那用普通的减压阀就可以了。
# _% X, E6 p2 t/ \5 S4 q
, d/ y2 r4 I$ V
我也有同样的疑问。! j2 W$ t! d4 l4 g
三通减压阀与单向阀的组合是矛盾的。
发表于 2009-8-24 15:01:35 | 显示全部楼层 来自: 中国山东日照
起到暂时保压作用
发表于 2009-8-24 15:35:18 | 显示全部楼层 来自: 中国辽宁沈阳
这个单向阀是油路的P口单向阀,没有减压阀也装这个单向阀的,和减压阀没有关系
发表于 2009-8-24 19:04:17 | 显示全部楼层 来自: 中国河北张家口
这个单向阀大有作用。如果几个电磁阀不是同时动作或负载不用时,没有单向阀一组油缸动作会干扰另一组油缸(油缸可能会后退,严重的可能生产事故)。不太相信三通减压阀保压,还是要单向阀
 楼主| 发表于 2009-8-25 08:25:48 | 显示全部楼层 来自: 中国北京
大家争论的很激烈,但是哪一个是对的呢?
发表于 2009-8-25 08:30:52 | 显示全部楼层 来自: 中国江苏常州
反正有也没事。没有也没事。不用争论那么多。
发表于 2009-8-25 09:34:29 | 显示全部楼层 来自: 中国湖北武汉
学习了 这图很好 谢谢楼主分享
发表于 2009-8-25 10:53:56 | 显示全部楼层 来自: 中国辽宁本溪
版主和9楼说的有道理。
( W8 p, w- B9 X3 _那,为什么用三通减压阀呢?
+ i  ^4 c8 t! ]1 q并且,有反向油流时,单向阀已经将油路切断了。来自负载的油流无法从减压阀T口泄出。
发表于 2009-8-25 11:28:35 | 显示全部楼层 来自: 中国山东济宁

减压回路

基本减压回路

7、液压基本回路.pdf

251.39 KB, 下载次数: 19

发表于 2009-8-25 12:12:11 | 显示全部楼层 来自: 中国辽宁本溪
贴出来。
1 R" X! r/ i1 t" ]- ?; S& F楼上不会介意吧。
  @. O! v* B- O5 y9 A2 d请问楼上,有没有遥控口接在先导阀泄油口(非X口)的原理图?  t2 |4 R5 w/ @( k. ?1 T+ u
如果有,请上传。
减压.JPG
发表于 2011-9-30 10:44:36 | 显示全部楼层 来自: 中国山东济南
ZDR型减压阀不是可以反向溢流吗,那还加单向阀做什么呢?
4 c7 y. L/ B8 i3 V% \" e如果是为了防止倒流,那用普通的减压阀就可以了。4 I% b7 X5 p* o- V
hmilylaji 发表于 2009-8-23 11:20 http://www.3dportal.cn/discuz/images/common/back.gif
5 b( B; p! k' j+ ~) l$ @. S

* _$ n% W8 H# K/ K/ aZDR好像不能溢流吧
发表于 2012-8-8 22:04:34 | 显示全部楼层 来自: 中国河南安阳
如果换向阀后面执行元件是液压马达呢,,这个单向阀的作用什么,,
' j& t0 V" @3 D1 q会不会是,没有有单向阀减压阀不起作用呢
发表于 2012-8-8 22:06:37 | 显示全部楼层 来自: 中国河南安阳
流量不足怎么办啊,,求解
发表于 2012-8-9 11:12:14 | 显示全部楼层 来自: 中国湖北武汉
不懂,等解释。
$ ^( S7 R; \. S0 |  x/ h' N, a楼主图里面最右边回路里那一排方框里面一根粗黑线的是什么元件?
发表回复
您需要登录后才可以回帖 登录 | 注册

本版积分规则


Licensed Copyright © 2016-2020 http://www.3dportal.cn/ All Rights Reserved 京 ICP备13008828号

小黑屋|手机版|Archiver|三维网 ( 京ICP备2023026364号-1 )

快速回复 返回顶部 返回列表