QQ登录

只需一步,快速开始

登录 | 注册 | 找回密码

三维网

 找回密码
 注册

QQ登录

只需一步,快速开始

展开

通知     

查看: 2578|回复: 17
收起左侧

[已答复] 回转轴漏油问题

[复制链接]
发表于 2009-8-23 10:45:23 | 显示全部楼层 |阅读模式 来自: 中国上海

马上注册,结识高手,享用更多资源,轻松玩转三维网社区。

您需要 登录 才可以下载或查看,没有帐号?注册

x
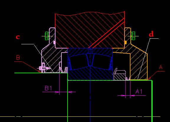
最近新设计的设备上发现在轴承两侧端盖处有漏轴承油脂现象,而且是在刚装配完试运行几转就发生严重漏油,如下图A和B处,请高手指点一下有什么可改进的措施,该结构发生漏油的主要问题在哪里?尺寸A1和B1在结构中比较难控制,是不是漏油的主要问题,有什么经验措施可以改善?谢谢!
# o$ a0 H0 o0 Z7 _1 X& C5 `0 N该结构内油压基本没有;/ N* t( v  R3 }! J( c% B7 ]  x: o
与V型密封圈相接触的端盖表面粗糙度为Ra1.6* _- T  \- a4 M1 t6 d
漏出的油脂未变色;
' `5 W( w3 O! G& X4 ?4 U! T) @轴的转速为低速;
V型密封圈漏油.jpg
发表于 2009-8-23 22:12:21 | 显示全部楼层 来自: 中国河北张家口
从图上看,应该是密封方案错了,参看一下下图,应该能解决
; F% H7 h; b% @$ P# d4 z9 W. w% z+ o8 F$ N* N, c0 {
[ 本帖最后由 jxcjwww 于 2009-8-23 22:19 编辑 ]
接触密封.jpg

评分

参与人数 1三维币 +3 收起 理由
虎强 + 3 技术讨论

查看全部评分

发表于 2009-8-23 22:26:59 | 显示全部楼层 来自: 中国广东珠海
在A,B处加油封。
发表于 2009-8-23 23:06:56 | 显示全部楼层 来自: 中国上海
为什么不放在端盖里面呢?
发表于 2009-8-24 08:26:03 | 显示全部楼层 来自: LAN
原帖由 mixin 于 2009-8-23 22:26 发表 http://www.3dportal.cn/discuz/images/common/back.gif2 r  S9 T) M. q* w
在A,B处加油封。

. m, e. d5 o- O) f. ]1 {' |
. U& E% a7 S* C: A' q3 o+ ^确切点说应该是唇形密封圈:
1.PNG

评分

参与人数 1三维币 +3 收起 理由
hero2006 + 3 技术讨论

查看全部评分

发表于 2009-8-24 08:56:38 | 显示全部楼层 来自: 中国湖北武汉
没有见过这样装油封的., h1 z. f) y2 O7 a
在你现有密封处加个垫圈? 增加接触力?6 }) I/ L8 K$ E
, F! s2 a3 c6 S% g, }  s  L3 S
或者参考下:在C.D处加密封.3 e( k! m* F1 _! S
* W8 g" v+ L1 ?& X
[ 本帖最后由 benbengo 于 2009-8-24 00:59 编辑 ]
229.JPG

评分

参与人数 1三维币 +3 收起 理由
虎强 + 3 技术讨论

查看全部评分

发表于 2009-8-24 14:33:53 | 显示全部楼层 来自: 中国浙江嘉兴
同意2楼的说法,是密封形式的错误.
发表于 2009-8-24 16:10:03 | 显示全部楼层 来自: 中国北京
属于原理性的错误,肯定漏。现在的封堵方案是轴向的,应该变为径向的。
发表于 2009-8-24 21:07:09 | 显示全部楼层 来自: 中国湖南湘潭
应该是一种轴向受力不稳定结构,轴在转动时会产生偏移,采用调心轴承,一般采用在压盖处加V型密封圈密封,V型环是由橡胶材料制成,具有很好的弹性,容易拉伸,安装较为方便,它与轴是过盈配合,并随轴一起旋转的特点:Y轴向及径向的震动及活塞的偏心负载适应性强,能承受较高的压力,拆装很方便。

评分

参与人数 1三维币 +3 收起 理由
虎强 + 3 技术讨论

查看全部评分

发表于 2009-9-9 21:44:15 | 显示全部楼层 来自: 中国湖南长沙
建议在两端加密封
发表于 2009-9-10 15:24:36 | 显示全部楼层 来自: 中国上海
图中所加的密封,通常都是加在端盖外边用来防尘用的。
* z1 B- Z2 y0 j4 z; K( F+ _
! L- }+ u2 f$ I" p  h0 Q$ D这么厚的端盖,一般都是在端盖内径上开梯形槽,加油毡就足够了,毕竟只是润滑脂而已。前面推荐用的密封,大多都是用在油润滑中的,用在这里没什么必要的。% G$ \2 j* H' ]0 W2 r1 \8 i' O7 E

5 b, ~) A- ~5 q* `- k[ 本帖最后由 mouselwh 于 2009-9-10 15:35 编辑 ]
密封示意.jpg
发表于 2009-9-10 17:18:41 | 显示全部楼层 来自: 中国辽宁鞍山
增加油封或者密封胶
发表于 2009-9-11 07:57:44 | 显示全部楼层 来自: 中国北京
密封形式错了,没见过你这样的密封,
发表于 2009-11-10 15:25:42 | 显示全部楼层 来自: 中国江苏南通

支持一下

支持一下 :victory: :victory:
发表于 2009-11-10 15:55:25 | 显示全部楼层 来自: 中国江苏常州
转速,低速小于19M/S6 [) k' F3 M$ i, e, b, X9 W! f
表面粗糙度小于1.6- F& R/ C8 r2 Q
都是正确的2 ]& ^3 Z  q& S5 G; O. y+ q0 u
-------------------% `% x8 t" g& E
问题是你的轴的直径是否正确?
* I  y$ K6 I3 E7 Z/ G你的密封圈是否合格$ I* o  ^, f  Q7 i$ `
是否有侧压使变形的问题?2 S8 ]$ V% |" ~! Y+ z
-------------
10235.jpg
10236.jpg

评分

参与人数 1三维币 +3 收起 理由
虎强 + 3 技术讨论

查看全部评分

发表于 2009-11-10 15:55:47 | 显示全部楼层 来自: 中国江苏苏州
这个是密封方式错误。建议用唇形骨架密封圈,参照机械设计手册吧。
发表于 2009-11-10 20:15:18 | 显示全部楼层 来自: 中国上海
你这种结构漏油脂是常有的,因为A、B缝隙有泵油作用,端盖里面的油脂被不断地“抽”出来了。8 ?( n5 Y. p# z% H$ T
请看附件解决办法图,图中挡油环的高度可根据需要调整,环高以下的油脂会保留下来,以上的油脂会被泵出去。) b( _3 j& n- _0 ]  X4 a7 S' C
另外,轴承内的油脂并不是越多越好,低速时可以注满,较高速度时只注1/2-1/3,转速越高越要少些。因为速度高会有较大的搅油发热现象。
$ S8 g& z) n$ X+ K2 V1 `6 h8 Y# F$ P' D) H4 w, t  O: _' ]
[ 本帖最后由 TKG-09 于 2009-11-11 09:34 编辑 ]

00 .pdf

9.31 KB, 下载次数: 7

评分

参与人数 1三维币 +3 收起 理由
虎强 + 3 技术讨论

查看全部评分

发表于 2009-11-10 21:13:21 | 显示全部楼层 来自: 中国广东广州
油封的安装方式错了,要将油封的安装面放在端盖上,不要放在轴承上,让油封的唇口包住轴,你的唇口压的是端盖0 Y! V9 m" h; a, M' y) G2 H- P, J
" `4 e3 W- T/ l% X/ n, Y, X2 `
在端盖上重新做油封槽

评分

参与人数 1三维币 +2 收起 理由
虎强 + 2 确实如此,观察很仔细

查看全部评分

发表回复
您需要登录后才可以回帖 登录 | 注册

本版积分规则


Licensed Copyright © 2016-2020 http://www.3dportal.cn/ All Rights Reserved 京 ICP备13008828号

小黑屋|手机版|Archiver|三维网 ( 京ICP备2023026364号-1 )

快速回复 返回顶部 返回列表