QQ登录

只需一步,快速开始

登录 | 注册 | 找回密码

三维网

 找回密码
 注册

QQ登录

只需一步,快速开始

展开

通知     

查看: 1503|回复: 9
收起左侧

[求助] 提升翻转设备怎么做。

[复制链接]
发表于 2009-8-30 17:25:47 | 显示全部楼层 |阅读模式 来自: 中国广东深圳

马上注册,结识高手,享用更多资源,轻松玩转三维网社区。

您需要 登录 才可以下载或查看,没有帐号?注册

x
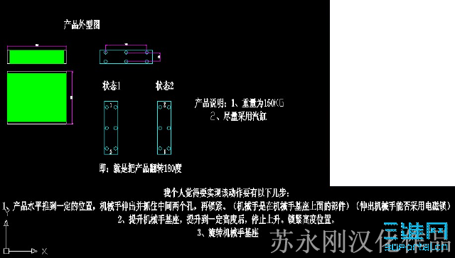
产品的重量为150KG,现在就是把该产品翻转180度。外型尺寸见附图。$ }+ b; X* e& V8 A( g
各位这个提升并翻转的半自动化设备怎么做呀。请帮忙提供方案图,先谢谢各位了。
( M, T6 f" f/ b+ u, e* ?这里面尽量全部采用汽缸。那汽缸的型号
+ R. f6 U: g! M0 s% r# g我个人觉得要实现该动作要有以下几步:) K& ?+ D+ F0 _$ N5 Q# X8 {* U
1、产品水平推到一定的位置,机械手伸出并抓住中间两个孔,再锁紧。(机械手是在机械手基座上面的部件)(伸出机械手能否采用电磁锁)6 ]( O+ `) v+ d" U
2、提升机械手基座,提升到一定高度后,停止上升。锁紧高度位置。
, p( n5 p+ _) O# X3、旋转机械手基座

需要翻转.rar

38.66 KB, 下载次数: 10

 楼主| 发表于 2009-8-30 20:06:13 | 显示全部楼层 来自: 中国广东深圳
怎么没人帮忙呢
发表于 2009-8-31 09:03:12 | 显示全部楼层 来自: 中国河北衡水
把图贴出。既要帮助你,还要费事下载,谁人理你?
 楼主| 发表于 2009-8-31 12:25:40 | 显示全部楼层 来自: 中国广东深圳

图片

请给位帮忙,谢谢咯
1.png
 楼主| 发表于 2009-9-1 21:35:37 | 显示全部楼层 来自: 中国广东深圳
怎么没人帮忙呢
+ J! t. b/ V8 k- Z+ X7 H# k1 G ;) ;) ;)
发表于 2009-9-1 22:35:55 | 显示全部楼层 来自: 新加坡
建议尽量不要用气缸吧!速度不好控制!
 楼主| 发表于 2009-9-2 08:34:41 | 显示全部楼层 来自: 中国广东深圳
那可以用减速装置就行了。采用汽缸比其他的成本应该要低很多吧7 h+ i9 C) J* z( A4 ]7 N2 G0 G+ M
该方案图怎么做呢?请大家帮忙出个简单的方案图
发表于 2009-9-2 10:19:18 | 显示全部楼层 来自: 中国辽宁沈阳
可用旋转液压;缸液压缸;旋转气缸,气缸(气缸是可调整速度的);旋转马达(电,液压,气动),减速机等,方法很多。
 楼主| 发表于 2009-9-2 12:21:23 | 显示全部楼层 来自: 中国广东深圳
请大家帮忙出个简单的方案图
 楼主| 发表于 2009-9-2 20:35:46 | 显示全部楼层 来自: 中国广东深圳
急呀急,哪位好心人帮忙做个简单的方案图
发表回复
您需要登录后才可以回帖 登录 | 注册

本版积分规则


Licensed Copyright © 2016-2020 http://www.3dportal.cn/ All Rights Reserved 京 ICP备13008828号

小黑屋|手机版|Archiver|三维网 ( 京ICP备2023026364号-1 )

快速回复 返回顶部 返回列表