QQ登录

只需一步,快速开始

登录 | 注册 | 找回密码

三维网

 找回密码
 注册

QQ登录

只需一步,快速开始

展开

通知     

全站
4天前
查看: 2205|回复: 9
收起左侧

[已答复] 紫铜管加工问题

[复制链接]
发表于 2009-9-2 09:39:44 | 显示全部楼层 |阅读模式 来自: 中国四川成都

马上注册,结识高手,享用更多资源,轻松玩转三维网社区。

您需要 登录 才可以下载或查看,没有帐号?注册

x
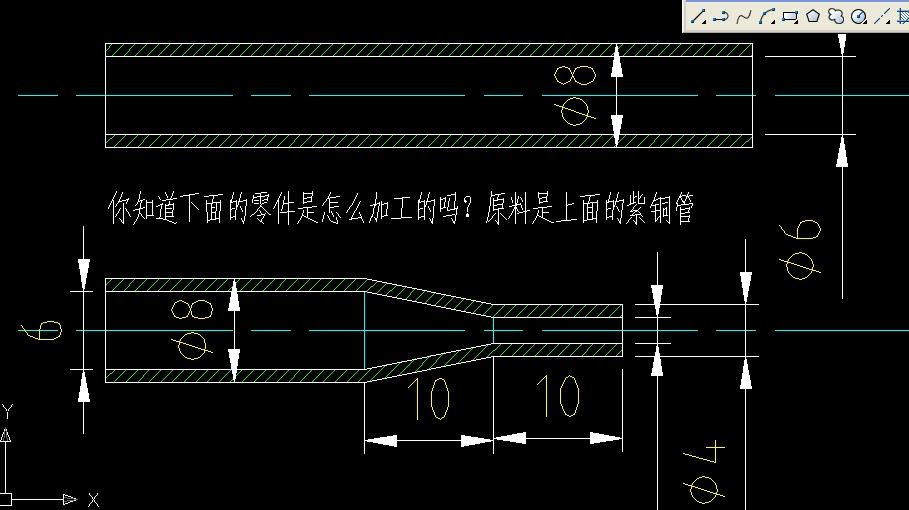
如题,图中零件怎么加工出来?. m) v8 F+ l4 `- b+ X$ Z$ ^

. G& i0 ~. y! U+ }% s$ v[ 本帖最后由 NIANZHENG 于 2009-9-2 15:26 编辑 ]
a1.JPG
发表于 2009-9-2 09:57:27 | 显示全部楼层 来自: 中国天津
紧缩拉伸工艺,但铜管要办软态的.
发表于 2009-9-2 10:00:54 | 显示全部楼层 来自: 中国湖南长沙
冷冲压!" @) V4 [; \8 ]
   我们公司刚好有这类的加工!
发表于 2009-9-2 10:07:35 | 显示全部楼层 来自: 中国安徽滁州
使用工装,进行冷冲压加工,应该可以。
 楼主| 发表于 2009-9-2 10:34:04 | 显示全部楼层 来自: 中国四川成都
谢谢各位老师解答
发表于 2009-9-2 12:43:35 | 显示全部楼层 来自: 中国广东深圳
学习一下,谢谢!
发表于 2009-9-25 19:34:29 | 显示全部楼层 来自: 中国浙江温州
可以放在仪表车床上滚出来
发表于 2009-9-28 13:11:47 | 显示全部楼层 来自: 中国内蒙古鄂尔多斯
锻造也可以吧
发表于 2009-9-29 14:43:03 | 显示全部楼层 来自: 越南
看批量大小了,单件手工业可以,常用的还可以用压模,批量大就可以用冲床和压力机
发表于 2010-4-16 13:17:23 | 显示全部楼层 来自: 中国湖南长沙
上面的紫铜管在拉伸的过程中停下就是下面的样子
发表回复
您需要登录后才可以回帖 登录 | 注册

本版积分规则

Licensed Copyright © 2016-2020 http://www.3dportal.cn/ All Rights Reserved 京 ICP备13008828号

小黑屋|手机版|Archiver|三维网 ( 京ICP备2023026364号-1 )

快速回复 返回顶部 返回列表