QQ登录

只需一步,快速开始

登录 | 注册 | 找回密码

三维网

 找回密码
 注册

QQ登录

只需一步,快速开始

展开

通知     

全站
1天前
查看: 2041|回复: 10
收起左侧

[已解决] 图框的问题

[复制链接]
发表于 2009-9-2 20:03:00 | 显示全部楼层 |阅读模式 来自: 中国云南曲靖

马上注册,结识高手,享用更多资源,轻松玩转三维网社区。

您需要 登录 才可以下载或查看,没有帐号?注册

x
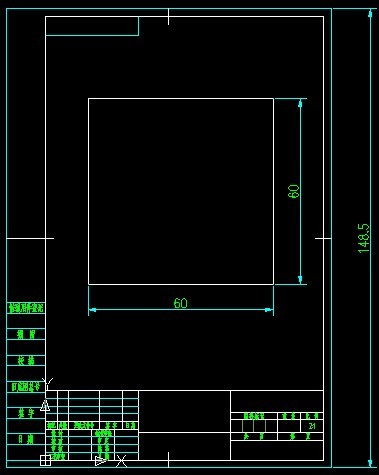
题目要求,图中文字,标注,图框等符合国家标准。
9 _7 ^% V8 u9 @0 z- _4 h% p6 T0 W) w/ l- `: m
1、机械制图上,要求绘制图框,最小的是A4纸的图框。
9 H+ B% V( [2 [/ i, s4 Z那如果图很小,又不能用放大,要求画图框,那图框应该画多大的呢?
2 b% n  m9 w4 b2、图框里的标题栏是不是严格按照制图标准绘制。标题栏栏宽栏高画多大呀。$ g$ y' h. ^+ W2 U" I9 D1 ?7 |

; Q, b( }: N3 _8 h4 O% o我的图形界限是297,210 ,可图最大尺寸60,图小图框是不是任意画啊。
发表于 2009-9-2 21:40:03 | 显示全部楼层 来自: 中国上海
可以缩小图框(附图1),打印时把图形连同图框一起放大到297×210打印(即在打印设置里,点窗口选择图框范围,并采用按图纸空间缩放,附图2),在格式→标注样式→修改对话框的调整标签下修改全局比例因子,图框缩小几倍,比例因子就几分之一,比如,图框缩小2倍(打印出来是2:1的效果),全局比例因子就改为0.5(附图3)。
1.jpg
2.jpg
3.jpg

评分

参与人数 1三维币 +5 收起 理由
2005llnn + 5 应助

查看全部评分

发表于 2009-9-3 08:42:16 | 显示全部楼层 来自: 中国广西梧州
关于图框和视口的问题如果初学者还是不明白的话就干脆不要去钻研了,因为日后你工作的公司对这些东西都是有统一的格式和方法的,上班后两分钟就学会了!没必要要搞清。: K9 E0 e) O" y: f% O+ e' Z8 a

3 R# T6 _6 \- Z: [5 v! p$ k现在不会就用以下方法将就一下:
) {! D9 P7 d8 M% X: K1.图形用1:1画。- a5 s7 J  h# b% f% n
2.图框根据出图的比例放大缩小,即如果比例是1:10,那么把图框放大10 倍,然后把图形移入图框。2 F4 @$ B3 T3 m' e5 {" ?
3.打印时用视窗出图,就是楼上的2.jpg所示。" n. `- U4 |% L" p

% l7 o" I  s8 ?  z2 m- h  Q: N1 J注:所有操作都是在模型空间完成。

评分

参与人数 1三维币 +5 收起 理由
2005llnn + 5 应助

查看全部评分

 楼主| 发表于 2009-9-3 11:50:50 | 显示全部楼层 来自: 中国云南曲靖
非常谢谢各位+ @1 o% ?, p5 ~: J( ]' S

' V- O! {; X" h继续问8 n; [. i+ E  R9 a: R/ l4 K
全局比例改成0.5,那标注不是会变小?7 l: c+ i7 \, ^, ?4 S. y/ U
是不是就要改文字箭头高度大小改大一倍?
+ f: [; W3 C. l) E2 l' _: ~2 X9 `1 U' k
我标注的时,如果图大,标注的字小,我就把全局比例改大,是不是这样是错误的做法?
发表于 2009-9-3 12:11:00 | 显示全部楼层 来自: 中国北京
我也 来 和楼主共同学习,还没碰到这样的 问题了
发表于 2009-9-3 12:17:41 | 显示全部楼层 来自: 中国上海
原帖由 yrbing 于 2009-9-3 11:50 发表 http://www.3dportal.cn/discuz/images/common/back.gif4 k4 p9 Q0 K  I# s, M
非常谢谢各位
/ @  g0 [- k. E' j
; C1 |$ Y% N9 S; W, t6 z) O1 z* S继续问( H: u+ F6 J% A9 }
全局比例改成0.5,那标注不是会变小?
* {# A1 O/ I0 i, M2 {# L是不是就要改文字箭头高度大小改大一倍?" C* M+ d/ t0 N( D: E1 H- G6 C
7 t" x" |" Z: p0 ^, {3 S
我标注的时,如果图大,标注的字小,我就把全局比例改大,是不是这样是错误的做法?

& {( I. V4 Y# H6 e" G( n
1 I6 F/ d/ G! ?! P
( e2 p2 |, I* m  X
9 [4 `1 e! ?! t文字和箭头的大小确实被缩小了,在电脑里由于图框也被缩小,所以感觉不到文字被缩小;打印时,由于图形和图框被放大到A4尺寸,文字跟着也被放大了,所以打印出来文字还是原来你需要的尺寸。
发表于 2009-9-3 19:35:22 | 显示全部楼层 来自: 中国山东烟台
什么都不用动,把图框缩小就行了。要不就在视口里把图放大,别的都不变
发表于 2009-9-3 19:37:17 | 显示全部楼层 来自: 中国山东烟台
双击视口,把视口击活,用鼠标滚轮滚动来放大、缩小图形,别的什么都不用动
发表于 2009-9-4 16:53:28 | 显示全部楼层 来自: 中国北京
建议用pccad的图框,就是装完AutoCAD再装pccad,那里的图框按照比例,箭头都不用缩小,很方便
发表于 2009-9-30 17:01:40 | 显示全部楼层 来自: 中国台湾
原帖由 hishayu 于 2009-9-4 16:53 发表 http://www.3dportal.cn/discuz/images/common/back.gif: I7 f5 w2 h$ v
建议用pccad的图框,就是装完AutoCAD再装pccad,那里的图框按照比例,箭头都不用缩小,很方便
. g/ f' H6 A# v  k4 I0 S3 f
这是哪一种~可以简单介绍一下吗
发表于 2009-9-30 22:24:50 | 显示全部楼层 来自: 中国山东烟台
SC 缩放图框就行了,打印时填满就好了!!
发表回复
您需要登录后才可以回帖 登录 | 注册

本版积分规则

Licensed Copyright © 2016-2020 http://www.3dportal.cn/ All Rights Reserved 京 ICP备13008828号

小黑屋|手机版|Archiver|三维网 ( 京ICP备2023026364号-1 )

快速回复 返回顶部 返回列表