QQ登录

只需一步,快速开始

登录 | 注册 | 找回密码

三维网

 找回密码
 注册

QQ登录

只需一步,快速开始

展开

通知     

全站
3天前
查看: 2295|回复: 7
收起左侧

[已答复] 垂直度检测问题

[复制链接]
发表于 2009-9-15 17:51:56 | 显示全部楼层 |阅读模式 来自: 中国重庆

马上注册,结识高手,享用更多资源,轻松玩转三维网社区。

您需要 登录 才可以下载或查看,没有帐号?注册

x
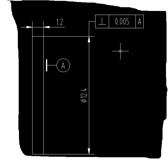
1、 未命名.JPG 如图,密封环外圆垂直度怎么检测,用投影仪检测可行吗?
  V/ X  i* s1 ?( t$ y, E2、最近工作中遇到这样的情况,用斜截式外圆磨床磨轴外圆,装夹方式是两顶,加工后产生轴跳动超差但圆度合格的情况,不是批量现象。有哪些可能因素会产生上述情况啊?
发表于 2009-9-15 19:56:23 | 显示全部楼层 来自: 中国江苏苏州
第一个投影仪恐怕不行,投影仪认为的误差太大,你的公差只有5um.还是三坐标。
& y% j2 ?; y" N1 W  J7 j# \* C第2个,圆度好轴跳动超差,是不是圆度测的位置和跳动测的位置不一样?
& I  j3 X2 n' c, A+ Y/ R9 M- k8 [一个可以检查两顶针是否在同一中心。要么修整一下砂轮。

评分

参与人数 1三维币 +2 收起 理由
天际孤帆 + 2 鼓励交流

查看全部评分

发表于 2009-9-30 23:18:43 | 显示全部楼层 来自: 中国浙江杭州
这个应该就是2个顶尖孔不在同一轴线上,研磨的时候出现的问题!

评分

参与人数 1三维币 +2 收起 理由
天际孤帆 + 2 鼓励交流

查看全部评分

发表于 2009-10-1 06:05:05 | 显示全部楼层 来自: 中国北京
三座标应该不行,零件太小,没法打点吧!

评分

参与人数 1三维币 +2 收起 理由
天际孤帆 + 2 鼓励交流

查看全部评分

发表于 2009-10-1 14:19:52 | 显示全部楼层 来自: 中国上海
看看机械设计手册第二卷,公差!
6 I9 U( u# t; x5 W( h# x, b& J里面有准确定义!3 {0 o4 U( H* q% a/ o) u- I
把表安到A面,$ s- D( P% B( A4 `1 u) L+ r7 [
然后测量。
# i9 F% m9 z  e' Z$ g两个垂直于A的平面且距离为0.005毫米。
0 K# ^; S  X( V, p" z, o; L; |如果所有点没有超出这两个面就为合格!% F6 q# l3 P9 y+ H
感觉和跳动度一样,其实就是跳动度!+ N' i7 Q( e2 \0 j. Q
跳动度可以包含垂直度!
" c+ u. t. F5 G+ c清楚了吗?

评分

参与人数 1三维币 +3 收起 理由
天际孤帆 + 3 技术交流

查看全部评分

发表于 2009-10-2 19:07:56 | 显示全部楼层 来自: 中国上海
楼主你可以用CMM扫描头扫描啊
发表于 2010-1-6 16:24:05 | 显示全部楼层 来自: 中国重庆
你那个基准标注有点问题  应该反过来

评分

参与人数 1三维币 +2 收起 理由
天际孤帆 + 2 鼓励交流

查看全部评分

发表于 2010-1-7 08:59:35 | 显示全部楼层 来自: 中国江苏无锡
转换成外圆上的跳动来检测

评分

参与人数 1三维币 +2 收起 理由
天际孤帆 + 2 鼓励交流

查看全部评分

发表回复
您需要登录后才可以回帖 登录 | 注册

本版积分规则

Licensed Copyright © 2016-2020 http://www.3dportal.cn/ All Rights Reserved 京 ICP备13008828号

小黑屋|手机版|Archiver|三维网 ( 京ICP备2023026364号-1 )

快速回复 返回顶部 返回列表