QQ登录

只需一步,快速开始

登录 | 注册 | 找回密码

三维网

 找回密码
 注册

QQ登录

只需一步,快速开始

展开

通知     

goto3d 说: 在线网校重磅上线MC2022&Inventor2022全新课程,虞为民老师、大表哥同事精彩讲解,快去围观!
2021-06-25
查看: 2057|回复: 10
收起左侧

[已解决] 这图用什么命令画

[复制链接]
发表于 2009-9-19 15:15:42 | 显示全部楼层 |阅读模式 来自: 中国浙江温州

马上注册,结识高手,享用更多资源,轻松玩转三维网社区。

您需要 登录 才可以下载或查看,没有帐号?注册

x
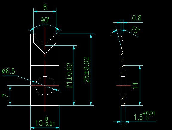
Proe用什么命令画刀口啊
未命名.jpg
发表于 2009-9-19 15:19:04 | 显示全部楼层 来自: 中国北京
用边界混合和实体化可以搞定
发表于 2009-9-19 15:21:52 | 显示全部楼层 来自: 澳大利亚
用CUT 命令,先做平面,垂直于刃口, 在平面上作草图,然后拉伸切除形成刃口.....
 楼主| 发表于 2009-9-19 15:35:04 | 显示全部楼层 来自: 中国浙江温州
谁帮忙画一个啊,我下过来看看怎么画的
发表于 2009-9-19 16:43:41 | 显示全部楼层 来自: 中国河北廊坊
是这样吗?5.0PART
快照-1.jpg

prt0001.prt.rar

66.19 KB, 下载次数: 12

 楼主| 发表于 2009-9-19 16:47:51 | 显示全部楼层 来自: 中国浙江温州
............5.0太高了,下来看看能打开不
发表于 2009-9-19 16:52:33 | 显示全部楼层 来自: 中国安徽合肥

5楼的好像有问题啊

应该是这样的(4.0)) E7 k( u+ m% S$ O9 o; Q& x
331.JPG ) e- h& r3 W5 g% g- T  g
332.JPG

333.prt.rar

60.92 KB, 下载次数: 39

34.drw.rar

10.84 KB, 下载次数: 16

评分

参与人数 1三维币 +5 收起 理由
wz_111 + 5 应助

查看全部评分

发表于 2009-9-19 17:26:15 | 显示全部楼层 来自: 中国辽宁朝阳
看看行不行,麻烦点
发表于 2009-9-19 20:16:12 | 显示全部楼层 来自: 中国吉林长春
下来学习一下
发表于 2009-9-19 21:26:34 | 显示全部楼层 来自: 中国山东潍坊

000

来学习一下 提升一下自己的水平
发表于 2009-9-20 07:50:02 | 显示全部楼层 来自: 中国河南驻马店
应该如何加工呀?
发表回复
您需要登录后才可以回帖 登录 | 注册

本版积分规则


Licensed Copyright © 2016-2020 http://www.3dportal.cn/ All Rights Reserved 京 ICP备13008828号

小黑屋|手机版|Archiver|三维网 ( 京ICP备2023026364号-1 )

快速回复 返回顶部 返回列表