QQ登录

只需一步,快速开始

登录 | 注册 | 找回密码

三维网

 找回密码
 注册

QQ登录

只需一步,快速开始

展开

通知     

全站
9天前
查看: 1927|回复: 6
收起左侧

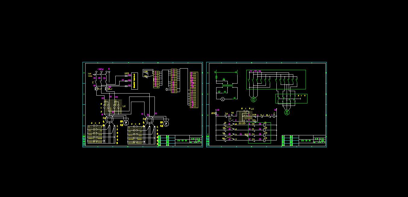
[分享] 车间桥式起重机电路图

[复制链接]
发表于 2009-9-28 08:59:22 | 显示全部楼层 |阅读模式 来自: 中国江苏徐州

马上注册,结识高手,享用更多资源,轻松玩转三维网社区。

您需要 登录 才可以下载或查看,没有帐号?注册

x
简介: 10吨凸轮控制桥式起重机.
车间桥式起重机电路图.jpg

车间桥式起重机电路图.rar

56.52 KB, 下载次数: 17

发表于 2009-9-29 23:56:33 | 显示全部楼层 来自: 中国黑龙江哈尔滨
好像太简单了一点,没有详细说明
发表于 2009-9-30 11:12:54 | 显示全部楼层 来自: 越南
是,好像太简单了一点,JPG图上的CAD也太小了点,
发表于 2009-9-30 22:51:17 | 显示全部楼层 来自: 中国江苏徐州
这个不太懂
发表于 2009-12-8 17:32:14 | 显示全部楼层 来自: 中国内蒙古包头
资料很好!单是缺少说明!谢谢了!
发表于 2010-1-22 15:12:50 | 显示全部楼层 来自: 中国河北秦皇岛
好老的图纸了,
发表于 2010-1-23 21:13:04 | 显示全部楼层 来自: 中国重庆
看的不是很明白
发表回复
您需要登录后才可以回帖 登录 | 注册

本版积分规则


Licensed Copyright © 2016-2020 http://www.3dportal.cn/ All Rights Reserved 京 ICP备13008828号

小黑屋|手机版|Archiver|三维网 ( 京ICP备2023026364号-1 )

快速回复 返回顶部 返回列表