QQ登录

只需一步,快速开始

登录 | 注册 | 找回密码

三维网

 找回密码
 注册

QQ登录

只需一步,快速开始

展开

通知     

查看: 9648|回复: 17
收起左侧

[已解决] UG4.0---断开视图---问题

[复制链接]
发表于 2009-10-19 13:40:05 | 显示全部楼层 |阅读模式 来自: 中国上海

马上注册,结识高手,享用更多资源,轻松玩转三维网社区。

您需要 登录 才可以下载或查看,没有帐号?注册

x
问题越来越多了,感觉越学越不行了。
3.jpg
4.jpg
5.jpg
6.jpg
7.jpg
8.jpg
发表于 2009-10-19 14:28:02 | 显示全部楼层 来自: 中国广东深圳
试作一次,没发现楼主所讲情况!
t111.jpg
发表于 2009-10-19 14:38:43 | 显示全部楼层 来自: 中国广东深圳
再试剖面断开试图5 b2 s: l' b7 M# m9 F2 z$ H% {
达到楼主要求
c1.jpg
c2.jpg

动态拉动

动态拉动

或手动输入数值,注意为负数

或手动输入数值,注意为负数

最后效果

最后效果

评分

参与人数 1三维币 +5 收起 理由
beyond2009 + 5 应助

查看全部评分

 楼主| 发表于 2009-10-19 16:19:05 | 显示全部楼层 来自: 中国上海
请问下面这种情况怎么回事呢?
3.jpg
 楼主| 发表于 2009-10-19 16:24:42 | 显示全部楼层 来自: 中国上海
呵呵,多谢又学了一招。
 楼主| 发表于 2009-10-19 16:32:40 | 显示全部楼层 来自: 中国上海
请教下如何保证两条断面线平行?
发表于 2009-10-19 18:38:26 | 显示全部楼层 来自: 中国河北沧州
你定位方法选错了。
未命名.JPG
 楼主| 发表于 2009-10-19 19:41:32 | 显示全部楼层 来自: 中国上海
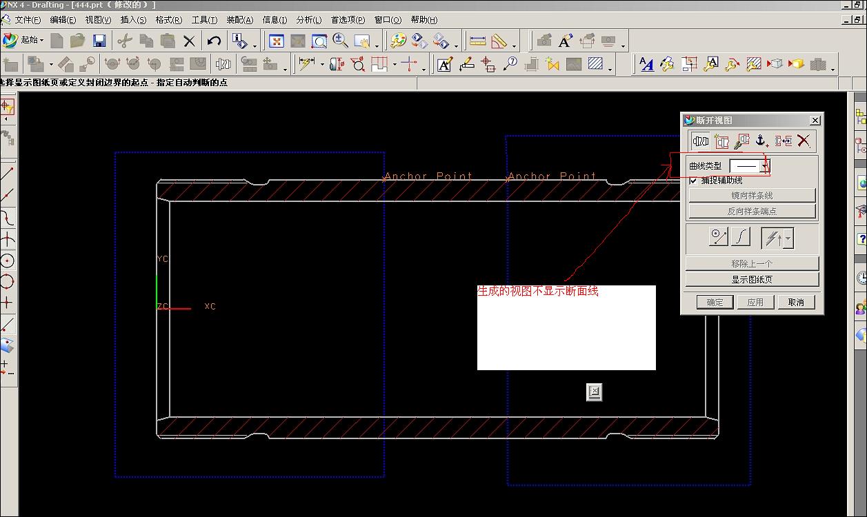
还有个问题就是我把曲线类型选为----直线----结果做出的断裂视图不显示断面线是怎么回事?
发表于 2009-10-19 22:42:06 | 显示全部楼层 来自: 中国河北沧州
原帖由 mliu 于 2009-10-19 19:41 发表 http://www.3dportal.cn/discuz/images/common/back.gif2 |( D% l/ G  `, r% H5 [$ Y
还有个问题就是我把曲线类型选为----直线----结果做出的断裂视图不显示断面线是怎么回事?
; E) u8 @7 Q7 b  L# t
默认的“直线”断开线就是那样的,要显示实线可以自己定义断开线。
123.jpg
发表于 2009-10-20 09:41:16 | 显示全部楼层 来自: 中国广东深圳
原帖由 beyond2009 于 2009-10-19 18:38 发表 http://www.3dportal.cn/discuz/images/common/back.gif
, l0 }9 W+ e) {' v6 _你定位方法选错了。
3 X& u5 O. d& o/ U9 U7 |4 ^$ T. ^
* ?0 y9 ?) k. k8 f, y; m3 u5 J6 h
6 S0 F) ^) q+ j3 s" A% t' u  q

1 p# f. b3 @7 T, r' ]: e3 |自动的就可以的
发表于 2009-10-20 09:54:59 | 显示全部楼层 来自: 中国广东深圳
原帖由 mliu 于 2009-10-19 16:19 发表 http://www.3dportal.cn/discuz/images/common/back.gif$ y6 x. Q- {3 E6 {% m& k
请问下面这种情况怎么回事呢?
, E) q$ b& d$ B, C( \
; f! j. {5 ^6 p; w1 P+ u" x
4 m. n: I& a* {* I
你选的是构造线,构造线是不显示的.如果想做到CAD直线的效果
% v9 H. j3 W, m4 {可以在下拉那里选创建类型.只做中间那2条.其它用构造线
33f.jpg
x1.jpg
x2.jpg
x3.jpg

评分

参与人数 1三维币 +3 收起 理由
beyond2009 + 3 正解

查看全部评分

发表于 2009-10-20 14:49:11 | 显示全部楼层 来自: 中国北京
原帖由alelove于 2009-10-20 09:41 发表自动的就可以的
你说的对,自动判断就可以,关键在于可输入负值!
 楼主| 发表于 2009-10-20 16:00:18 | 显示全部楼层 来自: 中国上海
谢谢各位,还有个问题,在保证两条断面线平行上有什么好方法?
发表于 2009-10-20 18:48:32 | 显示全部楼层 来自: 中国广东深圳
看来我今天是在这个主题卯上了 / I& Z5 u  n* f* @, W$ d
先看效果图,后看步骤(我个人的作法)

未修改的

未修改的

编辑后达到要求

编辑后达到要求
e1.jpg
e2.jpg
e3.jpg
 楼主| 发表于 2009-10-20 20:54:55 | 显示全部楼层 来自: 中国上海
呵呵,多谢了,没想到UG断开视图还有这么多玄机,我想知道你在做下面形式的断面线是怎样保证两条断面线平行的?我做的效果总不理想,明显感觉两天线之间的距离不均匀。
c5.jpg
发表于 2009-11-3 06:47:05 | 显示全部楼层 来自: 中国河北张家口
谢谢楼主无私奉献
发表于 2012-8-1 07:45:04 | 显示全部楼层 来自: 中国山东菏泽
哦,弄一个断开视图搜到这个帖子,实在是弄不出来啊,我的“定位断开区域”按钮式灰色的。无法操作啊。
发表于 2016-1-19 09:08:58 | 显示全部楼层 来自: 中国浙江宁波
学习一下,,,,,,,,
发表回复
您需要登录后才可以回帖 登录 | 注册

本版积分规则


Licensed Copyright © 2016-2020 http://www.3dportal.cn/ All Rights Reserved 京 ICP备13008828号

小黑屋|手机版|Archiver|三维网 ( 京ICP备2023026364号-1 )

快速回复 返回顶部 返回列表