QQ登录

只需一步,快速开始

登录 | 注册 | 找回密码

三维网

 找回密码
 注册

QQ登录

只需一步,快速开始

展开

通知     

查看: 1368|回复: 4
收起左侧

[讨论] 请提宝贵意见

[复制链接]
发表于 2009-11-22 19:39:54 | 显示全部楼层 |阅读模式 来自: 中国山东淄博

马上注册,结识高手,享用更多资源,轻松玩转三维网社区。

您需要 登录 才可以下载或查看,没有帐号?注册

x
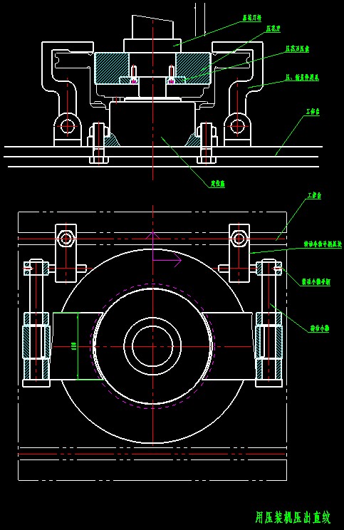
如下图,压花直径公差0-0.15MM,定位孔公差0-0.08MM.有人怀疑因公差而引起的同轴度问题导致压坏另件.各位认为怎么样?请提你的高见.
000.jpg
发表于 2009-11-23 09:14:16 | 显示全部楼层 来自: 中国上海
你图片上的文字看不清,只能猜测了。
+ x) c# r% f0 F( q7 i你说“有人怀疑因公差而引起的同轴度问题导致压坏另件”,有两种办法可以考虑。/ t! \. p3 ]1 u1 ]& v4 @" i
一是减小公差范围,降低定位误差;; }3 W; r4 Z$ D0 D1 W
另一是采用胀型芯轴定位,消除定位误差。
发表于 2009-11-23 09:24:24 | 显示全部楼层 来自: 中国湖南长沙
看不清,不好评论了,
1 D8 m( ^* D: ^1 G采用胀型芯轴定位,消除定位误差是较好的选择
 楼主| 发表于 2009-11-23 19:26:58 | 显示全部楼层 来自: 中国山东淄博
依据领导意图,又做了一个,总觉得没有上一个简约,对比两图,各位高人觉得哪个更好些呢?请提出你的高见。见下图:
001.jpg
发表于 2009-11-23 19:54:43 | 显示全部楼层 来自: 中国山东泰安
尺寸公差和同轴度概念不同,是同轴度造成的
发表回复
您需要登录后才可以回帖 登录 | 注册

本版积分规则


Licensed Copyright © 2016-2020 http://www.3dportal.cn/ All Rights Reserved 京 ICP备13008828号

小黑屋|手机版|Archiver|三维网 ( 京ICP备2023026364号-1 )

快速回复 返回顶部 返回列表