QQ登录

只需一步,快速开始

登录 | 注册 | 找回密码

三维网

 找回密码
 注册

QQ登录

只需一步,快速开始

展开

通知     

全站
7天前
查看: 2806|回复: 6
收起左侧

[原创] 这样的设计合理不?

[复制链接]
发表于 2009-11-24 17:38:28 | 显示全部楼层 |阅读模式 来自: 中国河北石家庄

马上注册,结识高手,享用更多资源,轻松玩转三维网社区。

您需要 登录 才可以下载或查看,没有帐号?注册

x
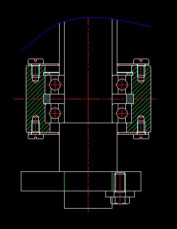
111.jpg 2 y, ]9 G( h3 G/ ?  C9 L$ j+ O
垂直心轴不旋转,滚轮只承受径向力、无轴向力。使用深沟球轴承。如下图:5 G% X, F" O. d/ l) C6 X/ U
, H& s* V2 p/ k! s' W
[ 本帖最后由 xhsww 于 2009-11-24 17:45 编辑 ]
发表于 2009-11-25 09:18:57 | 显示全部楼层 来自: 中国上海
如果滚轮较小,上面顶住轴承内圈的套筒也没有锁紧力时,方案可以。  J! k4 v% O" c) t8 Q) V
如果滚轮较大,就要考虑重力的影响,再加上上面顶住轴承内圈的套筒一般需要锁紧力(比如螺母锁紧),则两个轴承内圈之间要加与外圈之间垫圈等厚的垫圈。

评分

参与人数 1三维币 +4 收起 理由
hero2006 + 4 技术讨论

查看全部评分

发表于 2009-11-25 10:35:20 | 显示全部楼层 来自: 中国河南洛阳
应该可行!1 t6 j6 N8 _6 v8 r, u4 B* ~
这种结构,上面顶住轴承内圈的套筒不可能有锁紧力,不然轴承内外圈错位,产生轴向载荷;
- b. m1 \8 Q5 x4 b1 i1 ]另外滚轮重力的影响,静态轴承承受一定轴向力基本没影响,动态时径向力会把轴承滚动体推到合适的位置,除非滚轮非常重,径向负荷非常小,才会影响比较大!

评分

参与人数 1三维币 +3 收起 理由
hero2006 + 3 技术讨论

查看全部评分

发表于 2009-11-26 22:18:43 | 显示全部楼层 来自: 中国安徽马鞍山
这要看工作环境而定,另外在滚轮直径小、受冲击力小情况下可行。我用过,用在小型皮带机防皮带跑偏的防护装置上。
发表于 2010-3-19 13:05:33 | 显示全部楼层 来自: 中国上海
安装拆卸有点困难
发表于 2010-3-21 12:31:04 | 显示全部楼层 来自: 中国安徽马鞍山
本帖最后由 highness 于 2010-3-21 12:34 编辑
. {7 A+ g$ T' Q/ a8 c9 M0 U! M9 l$ ]4 t" ], L' k
不尽合理,- l' y& _+ w3 z/ g. E$ m6 I) d5 ~
没有看到你的尺寸,如果尺寸适合,可以用标准的滚轮代替。
. m' r- Q4 q5 }2 @; T  o就现在的设计,上下两个螺钉加端盖是多余的,可以用两端带密封深沟球轴承就可以。4 R! c6 N3 S% y2 Y/ x
两个深沟球轴承内圈也要加隔圈,就是两个深沟球轴承配对使用。% u: L/ X$ s( [6 Q; S' F' F
而且应该反着装,轴靠卡环定位外圈那侧朝下,因为考虑到滚轮自身重力原因。如果有轴向力, 卡环应在轴向力方向一侧,以避免承受轴向力。

评分

参与人数 1三维币 +3 收起 理由
hero2006 + 3 技术讨论

查看全部评分

发表于 2010-3-21 19:31:52 | 显示全部楼层 来自: 中国山东莱芜
理论上讲是可以的,因为具体的尺寸不知道,在滚轮自重较大时不尽合理!
发表回复
您需要登录后才可以回帖 登录 | 注册

本版积分规则


Licensed Copyright © 2016-2020 http://www.3dportal.cn/ All Rights Reserved 京 ICP备13008828号

小黑屋|手机版|Archiver|三维网 ( 京ICP备2023026364号-1 )

快速回复 返回顶部 返回列表