QQ登录

只需一步,快速开始

登录 | 注册 | 找回密码

三维网

 找回密码
 注册

QQ登录

只需一步,快速开始

展开

通知     

查看: 2464|回复: 12
收起左侧

[已解决] 请教下图纸标注的意思

[复制链接]
发表于 2009-11-25 10:20:55 | 显示全部楼层 |阅读模式 来自: 中国江苏无锡

马上注册,结识高手,享用更多资源,轻松玩转三维网社区。

您需要 登录 才可以下载或查看,没有帐号?注册

x
本帖最后由 niao_csu 于 2010-3-1 13:04 编辑 / S  u. F& D% x* [% ]& v* ?

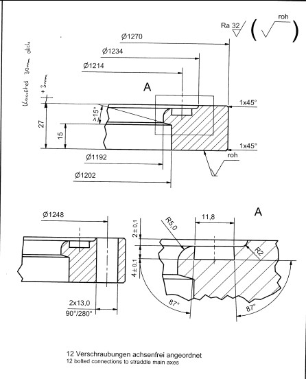
+ k/ f' }$ d1 I4 g7 q螺栓孔处的表示方式什么意思啊?螺栓孔处标注:2X13
: Y: j+ U4 L- f  b                                                                            90°/280°
德国图纸.jpg
发表于 2009-11-25 10:31:22 | 显示全部楼层 来自: 中国浙江绍兴
是不是两个直径13的孔,位置在90度和280度上。

评分

参与人数 1三维币 +2 收起 理由
liuhob + 2 应助

查看全部评分

发表于 2009-11-25 10:59:39 | 显示全部楼层 来自: 中国山西太原
我也认为是楼上的意思,两个φ13的孔,一个开在与基准线成90°,另一个开在280°位置。
' @' j8 _2 U0 J$ W' a但应把俯视图上全,才能确定,不然就得猜。

评分

参与人数 1三维币 +2 收起 理由
liuhob + 2 应助

查看全部评分

发表于 2009-11-25 12:14:01 | 显示全部楼层 来自: 中国上海
就是那个意思,在90度和180度前面加上@就不会有想不开的了
发表于 2009-11-25 14:27:56 | 显示全部楼层 来自: 中国江苏盐城
两个直径13的孔,位置在90度和280度上。
 楼主| 发表于 2009-11-25 15:24:01 | 显示全部楼层 来自: 中国江苏无锡
大家的解释有问题,如果是直径的话 应该在13前面+¢
发表于 2009-11-25 15:31:10 | 显示全部楼层 来自: 中国江苏南京
应该再给出平面图,是不是孔还不一定....会不会是槽
发表于 2009-11-25 16:17:53 | 显示全部楼层 来自: 中国广东汕头
以法兰面来看,此处3个孔,以一孔为基准,一孔是90°,另一孔是280°。; R4 r$ n- h! i' Q( O/ @" y
应该不是槽,如果是槽无法判断。
2 r+ G9 x7 p2 T- I3 f: W; [' F愚见!
发表于 2009-11-25 18:07:13 | 显示全部楼层 来自: 中国江苏常州
还真不能一锤定音,图纸中有加Φ的尺寸啊,是孔的话,也应该有Φ。楼主的图纸完整吗,无误吗。
发表于 2009-11-25 20:35:00 | 显示全部楼层 来自: 中国辽宁抚顺
左下图的确有点问题,它没有是哪个位置的详图。
发表于 2009-11-26 15:45:29 | 显示全部楼层 来自: 中国陕西延安
我想不是圆孔!
发表于 2009-11-27 13:01:50 | 显示全部楼层 来自: 中国浙江宁波
我觉得不是φ13直径。注意图中的φ1234和φ1248,以及他们的相对位置,就算是13也应该是半径而不是直径。没有看到全图还是不能确定。建议楼主将整个图拿上来看看
发表于 2009-12-2 13:39:37 | 显示全部楼层 来自: 中国四川德阳
最好查看德国图纸的标注方法,或是看俯视图,搞错了就不好了。
发表回复
您需要登录后才可以回帖 登录 | 注册

本版积分规则


Licensed Copyright © 2016-2020 http://www.3dportal.cn/ All Rights Reserved 京 ICP备13008828号

小黑屋|手机版|Archiver|三维网 ( 京ICP备2023026364号-1 )

快速回复 返回顶部 返回列表