QQ登录

只需一步,快速开始

登录 | 注册 | 找回密码

三维网

 找回密码
 注册

QQ登录

只需一步,快速开始

展开

通知     

查看: 2262|回复: 12
收起左侧

[讨论] 活动横梁的四个孔的公差应该怎么取

[复制链接]
发表于 2009-11-30 21:53:05 | 显示全部楼层 |阅读模式 来自: 中国江苏泰州

马上注册,结识高手,享用更多资源,轻松玩转三维网社区。

您需要 登录 才可以下载或查看,没有帐号?注册

x
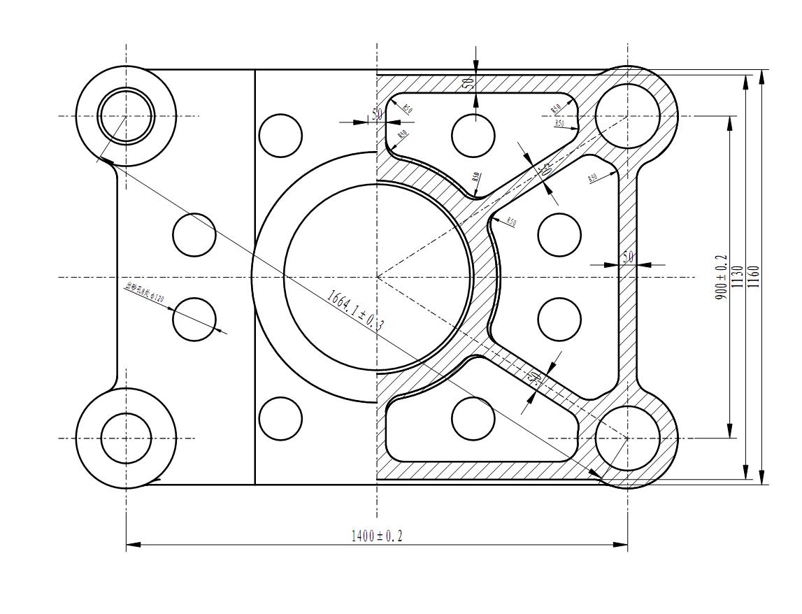
为什么活动横梁的四个孔的公差为:前后左右各为正负0.2的,这个是我不理解呀
5 _' X* x0 P0 t: e) o0 f: y, n
. t/ U' ^# V4 \8 k2 O5 W$ e* Z* G[ 本帖最后由 boy_make 于 2009-11-30 22:07 编辑 ]
why.jpg
发表于 2009-11-30 22:03:31 | 显示全部楼层 来自: 中国江苏常州
贴个图,说明白,再分析。
 楼主| 发表于 2009-11-30 22:08:20 | 显示全部楼层 来自: 中国江苏泰州
图附上,请看一下,谢谢了
发表于 2009-11-30 22:17:43 | 显示全部楼层 来自: 新加坡
楼主的问题看蒙啦!
( E" e# g& K/ k' T! V# O为什么不理解啊!
 楼主| 发表于 2009-11-30 22:20:00 | 显示全部楼层 来自: 中国江苏泰州
孔的公差为160H9,相应配合为f9,你说这样的公差,如果在0.2最大的范围内,能够配合上吗
 楼主| 发表于 2009-11-30 22:20:40 | 显示全部楼层 来自: 中国江苏泰州
就是几个横梁组装的时候
发表于 2009-11-30 22:23:49 | 显示全部楼层 来自: 中国江苏常州
图中孔距是正负0.2,孔径也是吗?
发表于 2009-11-30 22:27:47 | 显示全部楼层 来自: 中国江苏常州
图纸肯定不对,你这个单位很正规吗,现在很多图纸是很糟糕的。他的产品呢是配作的,发现问题也不改图纸,互换性不好的。
发表于 2009-11-30 22:42:24 | 显示全部楼层 来自: 中国河南安阳
没什么,四柱在上横梁及底座的四联接孔中可以小量调整。调机时,先适当拧紧立柱大螺母,让活动横梁上下移动,待运动顺畅及台面与上横梁(或底座)能平行贴紧后在把大螺母拧紧。活动横梁上四孔的直径误差、相互平行度及与压面的垂直度远比四孔间距误差重要。
: V2 v  N5 M+ r& I1 `
8 q: q) g. ~$ V' c4 f[ 本帖最后由 baolongzhou 于 2009-11-30 22:48 编辑 ]
发表于 2009-12-1 10:51:38 | 显示全部楼层 来自: 中国浙江宁波
这要和整个结构来分析的,单独是不说明问题的
 楼主| 发表于 2009-12-2 08:45:42 | 显示全部楼层 来自: 中国江苏泰州

回复 9# baolongzhou 的帖子

谢谢指教,希望能够了解更多些,可以留个电话交流吗,谢谢
发表于 2009-12-3 18:14:15 | 显示全部楼层 来自: 中国山东青岛
可以从整个装配考虑一下
发表于 2009-12-4 13:22:50 | 显示全部楼层 来自: 中国广东中山
形位公差和尺寸公差是2码事,你要是弄明白什么是尺寸公差,什么是形位公差就好办了
发表回复
您需要登录后才可以回帖 登录 | 注册

本版积分规则


Licensed Copyright © 2016-2020 http://www.3dportal.cn/ All Rights Reserved 京 ICP备13008828号

小黑屋|手机版|Archiver|三维网 ( 京ICP备2023026364号-1 )

快速回复 返回顶部 返回列表