QQ登录

只需一步,快速开始

登录 | 注册 | 找回密码

三维网

 找回密码
 注册

QQ登录

只需一步,快速开始

展开

通知     

查看: 4198|回复: 28
收起左侧

[已答复] 15号钢的材料,这样的要求能车的了么

[复制链接]
发表于 2009-12-2 19:24:55 | 显示全部楼层 |阅读模式 来自: 中国浙江绍兴

马上注册,结识高手,享用更多资源,轻松玩转三维网社区。

您需要 登录 才可以下载或查看,没有帐号?注册

x
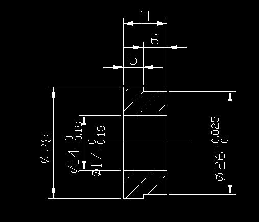
15hao.jpg 那个内孔有2个规格的,这样的零件车加工做的了么,内孔,内孔还有个要求就是跳动要小于一丝的,垂直度小于一丝的
发表于 2009-12-3 08:54:28 | 显示全部楼层 来自: 中国江苏常州
0.18的公差带7 @. w2 @8 X2 N' W+ ~8 D
要求跳动小于一丝????????????; ^( p0 z0 k/ s& `# T
有必要吗?7 e: t* n* m# W& L; a2 u- C
车是车不了的(跳动)

评分

参与人数 1三维币 +2 收起 理由
渔樵 + 2 应助

查看全部评分

发表于 2009-12-3 09:05:58 | 显示全部楼层 来自: 中国天津
跳动、垂直度的基准是哪里?这样的描述很难回答!
发表于 2009-12-3 09:31:56 | 显示全部楼层 来自: 中国山西太原
1  尺寸公差完全可以达到。& B5 w" r. _$ ~3 J/ {: a* @
2  位置公差的跳动和垂直度缺基准,孔的尺寸公差那么粗糙,要求的位置公差那么小,不可能达到,属于不合理设计。例如孔的加工如果是带锥度的,极端情况:一端是φ14.0,另一端是φ14.18,这时尺寸公差仍是合格的,但是与跳动公差值就差得太多了,因此属不合理设计。

评分

参与人数 1三维币 +2 收起 理由
渔樵 + 2 应助

查看全部评分

头像被屏蔽
发表于 2009-12-3 13:40:17 | 显示全部楼层 来自: 中国辽宁丹东
提示: 作者被禁止或删除 内容自动屏蔽
发表于 2009-12-3 14:02:47 | 显示全部楼层 来自: 中国浙江嘉兴

回复 4# gaoyns 的帖子

楼主说的很有道理,建议你们先考虑设计的问题,再考虑加工的问题
发表于 2009-12-3 14:14:44 | 显示全部楼层 来自: 中国安徽马鞍山
如上面的朋友所说,尺寸公差与形位公差是有一定关系的,上图设计有点问题,即使这样在数控车床上也还可以达到的。
 楼主| 发表于 2009-12-3 22:02:20 | 显示全部楼层 来自: 中国浙江绍兴
15hao.jpg 车件图纸,大家再看下,仔细点,小台车粗车可以么
发表于 2009-12-4 07:31:21 | 显示全部楼层 来自: 中国广东惠州
可是可以车  合不合格那就不好说了
发表于 2009-12-4 08:00:36 | 显示全部楼层 来自: 中国山西大同
估计达不到,关键是车床的精度才多高
发表于 2009-12-4 09:12:11 | 显示全部楼层 来自: 中国福建三明
楼主,你后来发的图的跳动公差是10丝,在一次装夹下加工,很容易达到。你第一个图上两个尺寸标注,应该是不同零件的尺寸,也就是一个零件内孔尺寸是17,另一个零件尺寸是14,而其余尺寸都一样的两个零件。
发表于 2009-12-4 09:15:11 | 显示全部楼层 来自: 中国广东中山
LZ新人?怎么图纸毛病百出啊~~~
发表于 2009-12-4 10:04:50 | 显示全部楼层 来自: 中国辽宁沈阳
原帖由 zy3692976 于 2009-12-3 22:02 发表 http://www.3dportal.cn/discuz/images/common/back.gif
: |/ B' X* C8 V  w! E& F( J3 }1512403车件图纸,大家再看下,仔细点,小台车粗车可以么

+ P' o# g9 a* K) g/ w, `* Z: w# q/ b1 n6 U- U
第二个图,车工序可以达到,要求不算太高(但不明白你为什么非要粗车)。你没标粗糙度,是要求多少,也应该匹配才好。
发表于 2009-12-4 11:03:19 | 显示全部楼层 来自: 中国黑龙江哈尔滨
8楼的图纸有误,基准A标错: j; r7 O& b4 d% `0 l, ~
以直径28和左端面一次装夹,加工内孔和直径26,在找个好车床,应该可以
 楼主| 发表于 2009-12-4 18:38:34 | 显示全部楼层 来自: 中国浙江绍兴
15hao.jpg.jpg 粗糙度是3.2,原图没标。。。。。。
发表于 2009-12-4 22:16:04 | 显示全部楼层 来自: 中国福建泉州
完全可以加工,在数控6140车床完全足够保证精度。
发表于 2009-12-5 00:29:06 | 显示全部楼层 来自: 中国河北沧州
图纸设计理念是什么
发表于 2009-12-8 08:46:13 | 显示全部楼层 来自: 中国江苏南京
找个精度高点的车床,一次装夹,应该可以加工的
发表于 2009-12-8 14:49:22 | 显示全部楼层 来自: 中国北京
1车:
3 @8 ~: ?0 G/ Q4 G3 @, D5 i2 ^夹左端:; O, E- H( J; i& m% M
车各外圆及台阶面成
' U( D; S- H6 u' N- j车内孔成
3 x' f( z+ v; T0 x; z( p切断3 W' @& s! g+ k) {! B# Q% U( j5 N- T
2 磨:% t9 r  n! V! Q1 Z
吸右端面,平麽左端面见平即可
发表于 2009-12-8 15:31:39 | 显示全部楼层 来自: 中国浙江杭州
要精车加工可以达到,一次装夹
4 l. e8 i: F" s; A; Q3 B& y% S图中还要考虑外圆台阶,是否需要清角???
发表于 2009-12-8 19:29:57 | 显示全部楼层 来自: 中国广东惠州
估计跳动少于一丝,有点困难
发表于 2009-12-8 20:28:33 | 显示全部楼层 来自: 中国浙江台州
同类产品我做过一次  能达到楼住 的要求 !~  一次装夹  夹28的孔上  不过要保证卡盘的稳定性   磨损大的可能车不出来
发表于 2009-12-15 14:02:06 | 显示全部楼层 来自: 中国北京
车成是没问题的,我们厂光洁度0.8,形位公差在0.01以上的都可以车成。但也要根据设备的精度。我们使用的是大隈生产的LBR-370数控车床。( R7 G7 d0 H  Q8 T
图中基准和有跳动要求的圆要一次装夹车成。14和17的圆公差0.018完全可以保证
发表于 2009-12-15 19:07:34 | 显示全部楼层 来自: 中国广西桂林
车是不太可能的,机床本身的精度等级就达不到
发表于 2009-12-15 23:03:53 | 显示全部楼层 来自: 中国江苏苏州
好的床子,镗一副好软爪,勉强做一做,一丝跳动,一次装夹
发表回复
您需要登录后才可以回帖 登录 | 注册

本版积分规则


Licensed Copyright © 2016-2020 http://www.3dportal.cn/ All Rights Reserved 京 ICP备13008828号

小黑屋|手机版|Archiver|三维网 ( 京ICP备2023026364号-1 )

快速回复 返回顶部 返回列表