QQ登录

只需一步,快速开始

登录 | 注册 | 找回密码

三维网

 找回密码
 注册

QQ登录

只需一步,快速开始

展开

通知     

goto3d 说: 在线网校重磅上线MC2022&Inventor2022全新课程,虞为民老师、大表哥同事精彩讲解,快去围观!
2021-06-25
查看: 2251|回复: 14
收起左侧

[求助] 如何用唇工具?

[复制链接]
发表于 2009-12-3 14:33:34 | 显示全部楼层 |阅读模式 来自: 中国福建厦门

马上注册,结识高手,享用更多资源,轻松玩转三维网社区。

您需要 登录 才可以下载或查看,没有帐号?注册

x
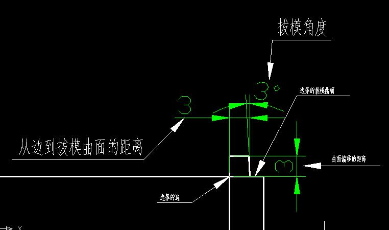
哪位仁兄帮忙分析下‘唇’工具如何用呢,我操作时,在命令行里好多意思不理解。
+ C: S% M6 G( @% c+ c如:1。选取一条或几条相邻边形成刀刃特征?-------是什么意思呀?
" {1 L0 d3 V1 q        2。输入从边到拨模曲面的距离?-----------------是哪边?* Y+ h; ?# T: B  G
        3。我操作后失败
11.jpg
12.jpg
13.jpg
发表于 2009-12-3 18:02:56 | 显示全部楼层 来自: 中国浙江宁波
唇和偏移差不多,看图片应该不行
# S) Z7 k$ ]! o, |0 d& w9 C用拉伸切除,在拔模也一样
发表于 2009-12-3 18:19:41 | 显示全部楼层 来自: 中国四川成都
有道理应该就是这样的
发表于 2009-12-3 21:29:44 | 显示全部楼层 来自: 中国上海
还不如用偏距里的拔模特征
发表于 2009-12-3 21:49:18 | 显示全部楼层 来自: 中国浙江宁波
看这个图用偏距是不行的 面会相交不能生成 就是图片右边角部分
发表于 2009-12-4 11:10:13 | 显示全部楼层 来自: 中国广东佛山
期待高手!学习!
发表于 2009-12-4 13:21:06 | 显示全部楼层 来自: 中国河南郑州
我来给你解释吧。
, V* v) i7 L& f9 R) h- D% O       其实就是你需要长特征唇的面的边界。从那个位置开始长。软件问你从那里长唇这个特征。(说白了就是从特征的那个边界面开始做唇特征)如图0
2 w( p1 P5 t6 A- a7 C
( l3 t7 [* }5 K7 @- w
( e1 y# y/ D5 M* p( r0 p
" f; t! \) Q! o: s5 z: j+ Z8 ?( C8 q) S/ W
没有办法录像,只能这样贴图片了。: W; }' b5 n% _5 _$ n1 k8 y

" ~% a/ H( B3 B. G7 c4 O. Y$ ?[ 本帖最后由 19829 于 2009-12-4 15:00 编辑 ]
0.JPG
1.JPG
2.JPG
3.JPG
4.JPG
5.JPG
6.JPG
7.JPG
8.JPG
发表于 2009-12-4 13:31:47 | 显示全部楼层 来自: 中国广东中山
这样的图搞不了的
 楼主| 发表于 2009-12-4 14:05:13 | 显示全部楼层 来自: 中国福建厦门
原帖由 qiuzhongwei 于 2009-12-4 13:31 发表 http://www.3dportal.cn/discuz/images/common/back.gif
9 J  H: @( S8 C, w. k+ I2 G这样的图搞不了的
. e9 X: }) v; U' r) g: i# v- q

+ N0 t) B3 H, I# J+ P/ z/ ^! X$ P5 k; P! r! L( Z
% X6 Z, l+ P$ x' s
为什么呢?
发表于 2009-12-4 15:02:12 | 显示全部楼层 来自: 中国河南郑州
你上面的那个图,我看图片的话,用唇应该是没有问题的。不过也不敢打保票。要不你把元文件发过来。让大家帮你解决。
 楼主| 发表于 2009-12-4 15:16:13 | 显示全部楼层 来自: 中国福建厦门
原帖由 19829 于 2009-12-4 15:02 发表 http://www.3dportal.cn/discuz/images/common/back.gif
% T! L: I  }" [- Q1 J你上面的那个图,我看图片的话,用唇应该是没有问题的。不过也不敢打保票。要不你把元文件发过来。让大家帮你解决。
4 J6 |  R7 w, T1 |! R. e* I4 u: C

$ d0 n3 F/ f; t7 f8 m& E/ D( o/ x+ }! h3 @2 T9 h/ Y
0 n( C9 Y; \6 L( T. ~. V

0 {/ S% j, A# S我现上传,辛苦了

up-_.rar

144.11 KB, 下载次数: 5

发表于 2009-12-4 22:34:32 | 显示全部楼层 来自: 中国江苏无锡
楼主想说的是那个down文件吧,你发的是up,我打开up时唇的特征是好的哦。
 楼主| 发表于 2009-12-5 09:31:57 | 显示全部楼层 来自: 中国福建厦门
原帖由 蓝色的海01 于 2009-12-4 22:34 发表 http://www.3dportal.cn/discuz/images/common/back.gif
' U- P- ?( G3 ^) {; T4 W% P楼主想说的是那个down文件吧,你发的是up,我打开up时唇的特征是好的哦。
; N* B) t+ R/ J
* ~) }) g* `( j5 H' V7 ^3 N% |0 Q- Y
+ W4 f# D- u$ G1 Y% m( U9 m( ~% H

; C: ?+ a$ N: U1 A, e" i, U重新上传!

up-_.rar

135.01 KB, 下载次数: 7

发表于 2009-12-5 10:38:00 | 显示全部楼层 来自: 中国河南郑州

UP_2009-12-5修改之后更新

有些地方做唇特征,没有办法做。用的偏移。方法之间是相通的那个能处理就用那个命令就可以了,没有必要非的去追求某一个命令。我是用唇命令和偏移命令结合制作的。
9.JPG

up-2009-12-05.rar

148.43 KB, 下载次数: 6

 楼主| 发表于 2009-12-5 14:36:30 | 显示全部楼层 来自: 中国福建厦门
谢了
发表回复
您需要登录后才可以回帖 登录 | 注册

本版积分规则

Licensed Copyright © 2016-2020 http://www.3dportal.cn/ All Rights Reserved 京 ICP备13008828号

小黑屋|手机版|Archiver|三维网 ( 京ICP备2023026364号-1 )

快速回复 返回顶部 返回列表