QQ登录

只需一步,快速开始

登录 | 注册 | 找回密码

三维网

 找回密码
 注册

QQ登录

只需一步,快速开始

展开

通知     

查看: 1521|回复: 4
收起左侧

[已解决] 高手请指点一下,这个图怎么画啊?

[复制链接]
发表于 2009-12-11 15:22:42 | 显示全部楼层 |阅读模式 来自: 中国上海

马上注册,结识高手,享用更多资源,轻松玩转三维网社区。

您需要 登录 才可以下载或查看,没有帐号?注册

x
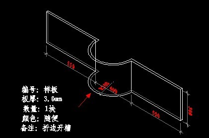
高手请指点一下,这个图怎么画啊?这是三维视图还是轴测图啊?还有就是半圆弧面是怎么画成这样的?
未命名.jpg
发表于 2009-12-11 18:49:21 | 显示全部楼层 来自: 中国浙江宁波
画个截面,做成封闭面域(_region),然后拉伸(_extrude);( a. M$ C3 c  T' O& I. `. L9 l
+ _! L! d4 E9 b. z* o1 J& [$ g
[ 本帖最后由 sealive_leafage 于 2009-12-11 18:50 编辑 ]
未命名.JPG

Drawing1.dwg

118.3 KB, 下载次数: 2

评分

参与人数 2三维币 +10 收起 理由
wang2003 + 5 应助
woaishuijia + 5 应助

查看全部评分

发表于 2009-12-11 22:19:27 | 显示全部楼层 来自: 中国天津
看原图不象是画的三维的,是轴测画的。厚度也夸大示出的。
 楼主| 发表于 2009-12-12 09:26:10 | 显示全部楼层 来自: 中国上海
那个是折边,呵呵。如果是轴测画的,那个圆是怎么画成这样啊,是不是用的椭圆,如果是的话怎么确定尺寸呢?
 楼主| 发表于 2009-12-12 16:54:30 | 显示全部楼层 来自: 中国上海
我现在知道画了,轴测里的圆是用椭圆表示,就在椭圆画法里有个专门用来表示轴测圆的。请了哈!
发表回复
您需要登录后才可以回帖 登录 | 注册

本版积分规则

Licensed Copyright © 2016-2020 http://www.3dportal.cn/ All Rights Reserved 京 ICP备13008828号

小黑屋|手机版|Archiver|三维网 ( 京ICP备2023026364号-1 )

快速回复 返回顶部 返回列表