QQ登录

只需一步,快速开始

登录 | 注册 | 找回密码

三维网

 找回密码
 注册

QQ登录

只需一步,快速开始

展开

通知     

查看: 3970|回复: 33
收起左侧

[求助] 大家帮帮我,明天老板要看,我晚上通宵也要搞好的

[复制链接]
发表于 2009-12-29 20:07:36 | 显示全部楼层 |阅读模式 来自: 中国浙江台州

马上注册,结识高手,享用更多资源,轻松玩转三维网社区。

您需要 登录 才可以下载或查看,没有帐号?注册

x
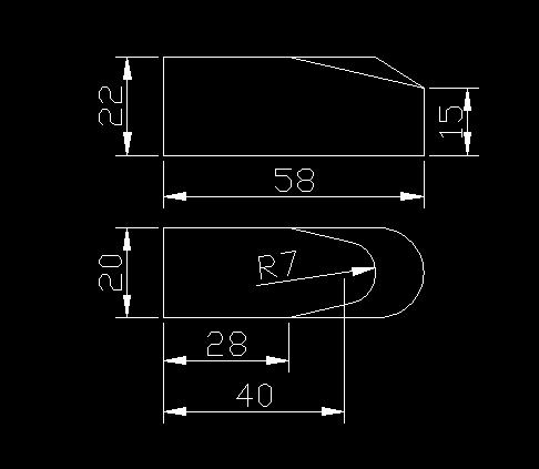
大家帮帮我,明天老板要看,我晚上通宵也要搞好的,一个切除扫描问题,为什么这样,我实在搞不懂,大家帮一下,在线等啊
未命名.jpg
 楼主| 发表于 2009-12-29 20:10:54 | 显示全部楼层 来自: 中国浙江台州

回复 1# wlhaibo 的帖子

自己 顶一下,在线等啊,那个老大帮一下
发表于 2009-12-29 20:19:57 | 显示全部楼层 来自: 中国广东广州
轮廓草图与路径设置穿透关系。
发表于 2009-12-29 20:21:53 | 显示全部楼层 来自: 中国广东广州
要不就把模型文件传上来。
发表于 2009-12-29 20:25:18 | 显示全部楼层 来自: 中国江苏南京
你这图实在看不懂,哪是轮廓哪是引导线?什么设计意图?最好能把PART放上让大家帮你吧
发表于 2009-12-29 20:25:34 | 显示全部楼层 来自: 中国浙江宁波
说清楚才能帮你!
发表于 2009-12-29 20:29:22 | 显示全部楼层 来自: 中国广东广州
原帖由 lssxll 于 2009-12-29 20:25 发表 http://www.3dportal.cn/discuz/images/common/back.gif) O+ k; S, Y4 [7 \! J
你这图实在看不懂,哪是轮廓哪是引导线?什么设计意图?最好能把PART放上让大家帮你吧
, Q! ?3 P* b& I- Z* K6 }
兄弟!看颜色就知道不是。
发表于 2009-12-29 20:33:12 | 显示全部楼层 来自: 中国安徽蚌埠
建议上传源文件。。。。。。
 楼主| 发表于 2009-12-29 20:51:57 | 显示全部楼层 来自: 中国浙江台州
原来好人这么多,先谢谢先,我图简单画成CAD,你们做出来,然后教我,谢谢先
未命名.jpg
 楼主| 发表于 2009-12-29 20:53:09 | 显示全部楼层 来自: 中国浙江台州
应该是有扫描切除来做,可我不会,会的教一下,或加我Q172504933教一下,感激不进,这个零件我晚上一定要做出来
发表于 2009-12-29 21:43:54 | 显示全部楼层 来自: 中国浙江宁波
弄错了! ;)
5 Q- g  m. }* N- A9 l2 O% n! Z
1 h; E2 p: v& e9 R2 y) c2 Y[ 本帖最后由 妖人 于 2009-12-29 21:48 编辑 ]
发表于 2009-12-29 21:48:08 | 显示全部楼层 来自: 中国江苏南京
已做出是不是这样?
4 ~) o: e/ {2 n& u- v, C9 z
6 L: K! j! E/ @5 U" L/ `: D[ 本帖最后由 lssxll 于 2009-12-29 21:59 编辑 ]
截图01.jpg
截图02.jpg

零件1.rar

77.75 KB, 下载次数: 61

发表于 2009-12-29 21:52:35 | 显示全部楼层 来自: 中国浙江杭州
hoho  笨办法
未命名.jpg
2.jpg
3.jpg
发表于 2009-12-29 22:13:54 | 显示全部楼层 来自: 中国湖南株洲
符合吗?
. U7 q1 a* Y5 J8 m
发表于 2009-12-29 22:42:22 | 显示全部楼层 来自: 中国江苏无锡
还是楼上的最好,我做了扫描,始终当中多根线,没办法消除。
捕获.PNG

零件1.rar

153.62 KB, 下载次数: 24

头像被屏蔽
发表于 2009-12-30 09:07:17 | 显示全部楼层 来自: 中国湖北黄冈
提示: 作者被禁止或删除 内容自动屏蔽
发表于 2009-12-30 10:35:19 | 显示全部楼层 来自: 中国上海
我也是用放样做的,是不是简单点?
) ^( ?9 B9 |# n# W0 l$ o8 j( B 零件1.rar (83.76 KB, 下载次数: 41)
发表于 2009-12-30 11:00:58 | 显示全部楼层 来自: 中国山东威海
楼上方法是简单的多 思路不同 先除后补 值得学习
发表于 2009-12-30 11:19:37 | 显示全部楼层 来自: 中国湖北武汉
看了一下,向大家学习!
发表于 2009-12-30 11:34:58 | 显示全部楼层 来自: 中国北京
QQ截图未命名.png 好像没有那么复杂。
6 w( ^7 l$ O5 z* d/ a* d. H: L- u: G

% y) n& W) b) t1 ]; l$ u; G6 @[ 本帖最后由 LHX5849 于 2009-12-30 11:37 编辑 ]
发表于 2009-12-30 13:59:47 | 显示全部楼层 来自: 中国河北保定
思路不同 先除后补 值得学习
发表于 2009-12-30 14:01:42 | 显示全部楼层 来自: 中国广东惠州
條條馬路通羅馬,曲面較熟介紹個曲面作法 .8 ^4 ]- z0 v6 p) }" J6 C2 E
dz1.jpg 1 h1 t* U5 j1 s6 e. p& l
dz2.jpg
, T* V5 h( i) o" W0 Z' W# C dz3.jpg 8 L# z6 W9 H$ T( {0 j
dz4.jpg ! R7 q( l1 Q) T7 E. X
dz5.jpg 8 d9 s0 Z. z( z& g' H6 }. T4 {
dz6.jpg
: w  h" V+ x) i( m dz7.jpg
; ^% v- w: p  z
头像被屏蔽
发表于 2009-12-30 14:03:19 | 显示全部楼层 来自: 中国浙江杭州
提示: 作者被禁止或删除 内容自动屏蔽
发表于 2009-12-30 14:03:37 | 显示全部楼层 来自: 中国浙江杭州
不错的方法!
发表于 2009-12-30 14:10:30 | 显示全部楼层 来自: 中国江苏镇江
很多方法,自己也来学习下
发表回复
您需要登录后才可以回帖 登录 | 注册

本版积分规则


Licensed Copyright © 2016-2020 http://www.3dportal.cn/ All Rights Reserved 京 ICP备13008828号

小黑屋|手机版|Archiver|三维网 ( 京ICP备2023026364号-1 )

快速回复 返回顶部 返回列表