QQ登录

只需一步,快速开始

登录 | 注册 | 找回密码

三维网

 找回密码
 注册

QQ登录

只需一步,快速开始

展开

通知     

查看: 2099|回复: 5
收起左侧

[已解决] 容积式换热器结构和设计

[复制链接]
发表于 2010-1-7 09:21:50 | 显示全部楼层 |阅读模式 来自: 中国湖南长沙

马上注册,结识高手,享用更多资源,轻松玩转三维网社区。

您需要 登录 才可以下载或查看,没有帐号?注册

x
容积式换热器的结构是怎样的,有什么设计依据或标准吗?0 L3 i" h% `7 B; c7 b! z* D
求助专业人士答复,如有图纸或资料更好。谢谢!!!
发表于 2010-1-7 12:28:58 | 显示全部楼层 来自: 中国辽宁大连
容积式换热器按传热方式的不同可分为混合式、蓄热式和间壁式三类。 容积式换热器混合式换热器是通过冷、热流体的直接接触、混合进行热量交换的换热
! ~8 ~/ j+ g% j  f" H9 U9 x+ S$ x5 W4 Y  M3 n# S. Z1 G' B5 K# l
建筑给水排水设计规范GB50015-2003
发表于 2010-1-7 12:30:45 | 显示全部楼层 来自: 中国辽宁大连
CJ/T163-2002 导流型容积式水加热器和半容积式水加热器(U型管束)
发表于 2010-5-11 13:13:53 | 显示全部楼层 来自: 中国吉林四平
01S122-1~10  各种容积式换热器介绍,很好的资料
发表于 2010-5-11 15:40:45 | 显示全部楼层 来自: 中国黑龙江哈尔滨
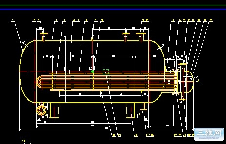
标准大家都说了,我上个图吧,cad中截的图,希望能帮楼主更直观的理解。
截图.jpg
发表于 2010-5-13 15:48:32 | 显示全部楼层 来自: 中国福建泉州
我有图纸,专业设计换热器
发表回复
您需要登录后才可以回帖 登录 | 注册

本版积分规则


Licensed Copyright © 2016-2020 http://www.3dportal.cn/ All Rights Reserved 京 ICP备13008828号

小黑屋|手机版|Archiver|三维网 ( 京ICP备2023026364号-1 )

快速回复 返回顶部 返回列表