QQ登录

只需一步,快速开始

登录 | 注册 | 找回密码

三维网

 找回密码
 注册

QQ登录

只需一步,快速开始

展开

通知     

全站
5天前
查看: 1647|回复: 5
收起左侧

[已答复] UG内六角做法

[复制链接]
发表于 2010-1-9 23:37:33 | 显示全部楼层 |阅读模式 来自: 中国浙江宁波

马上注册,结识高手,享用更多资源,轻松玩转三维网社区。

您需要 登录 才可以下载或查看,没有帐号?注册

x
各位这个怎么做?如果能做出请列出详细过程,谢谢
内六角.jpg
发表于 2010-1-10 07:58:30 | 显示全部楼层 来自: 中国山东济南
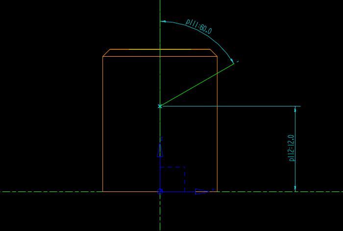
这用基本的命令就可以做,1、先做一圆柱,倒角;2、到草图中做一斜线,注意参数定义;3、在特征中作回转锥面,在设置中改为片体;4、在曲线中做六边形曲线放置于柱面顶部;5、拉伸此曲线,值选到延伸至选项,选做好的锥面,求差。
1.jpg
2.jpg
3.jpg
4.jpg
5.JPG

评分

参与人数 1三维币 +5 收起 理由
beyond2009 + 5 好方法

查看全部评分

发表于 2010-1-10 11:07:22 | 显示全部楼层 来自: 中国四川南充
正需要,回答得非常好,照楼上的方法已画出。
发表于 2010-1-10 17:44:10 | 显示全部楼层 来自: 中国浙江台州
高手 有学习咯哈
发表于 2010-1-10 20:11:26 | 显示全部楼层 来自: 中国吉林长春
回答得非常好
发表于 2010-1-27 16:21:15 | 显示全部楼层 来自: 中国重庆
学习了,还从来没遇见过
发表回复
您需要登录后才可以回帖 登录 | 注册

本版积分规则

Licensed Copyright © 2016-2020 http://www.3dportal.cn/ All Rights Reserved 京 ICP备13008828号

小黑屋|手机版|Archiver|三维网 ( 京ICP备2023026364号-1 )

快速回复 返回顶部 返回列表