QQ登录

只需一步,快速开始

登录 | 注册 | 找回密码

三维网

 找回密码
 注册

QQ登录

只需一步,快速开始

展开

通知     

查看: 2079|回复: 8
收起左侧

[已答复] 零件加工问题

[复制链接]
发表于 2010-1-10 22:07:21 | 显示全部楼层 |阅读模式 来自: 中国四川成都

马上注册,结识高手,享用更多资源,轻松玩转三维网社区。

您需要 登录 才可以下载或查看,没有帐号?注册

x
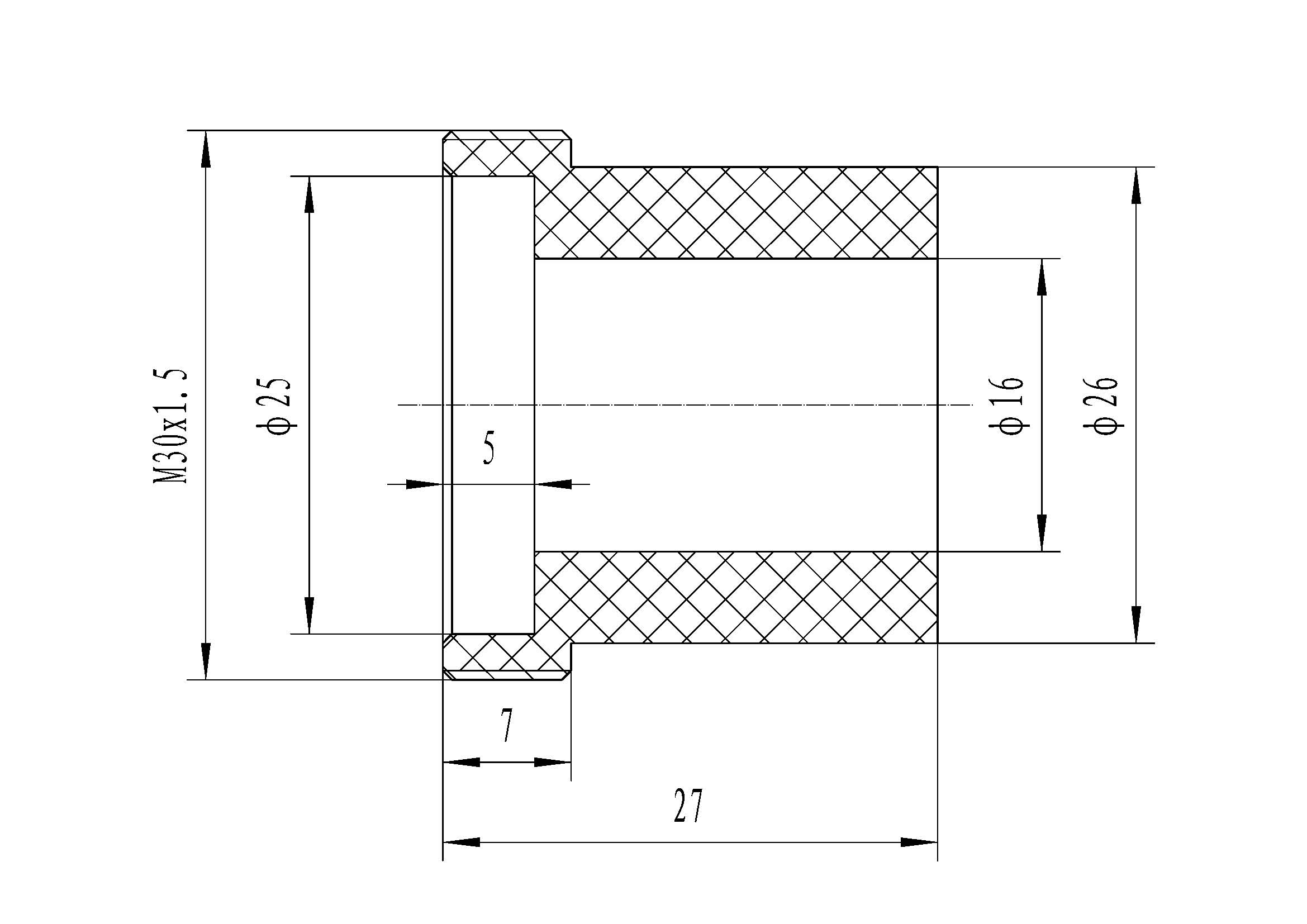
此简单零件加工。第一步,车端面,车φ30外圆,车φ26外圆,切断。第二步,夹持φ26外圆,钻孔车φ25和φ16外圆,车螺纹M30×1.5。
$ W. R$ ?$ ]/ E# p% R( M8 L在加工第二步时的问题,1.螺纹大径是第一次装夹完成的,第二步才车螺纹。2.夹φ26外圆车内孔φ16,会不会在车削过程中壁部变形?
  L8 o0 l. \" ]; |' j0 B" B此零件材料为:ABS塑料
linho.jpg
发表于 2010-1-10 22:30:04 | 显示全部楼层 来自: 中国上海
本帖最后由 lhf999 于 2010-1-10 22:32 编辑
6 o5 U6 e3 R; |. x
- m8 P, P$ V8 ]" o% ?+ r) y8 X3 `, c! @可以在第1工序中把M30×1.5,φ25,φ16加工好啊,甚至可以把φ26也车好;如果φ26精度要求高一点,也可以先做到φ27(割车,就是用切断刀车外圆),切断总长27.5,调头上芯棒车φ26,平总长27。这样的话应该说可以降低变形影响了。/ [3 m: H  @) _2 b' K# a0 P# _

; r6 T* W! `6 f(第1道工序是从图中的左边开始加工的。)

评分

参与人数 1三维币 +2 收起 理由
mengfansheng + 2 应助

查看全部评分

发表于 2010-1-10 22:46:45 | 显示全部楼层 来自: 中国江苏常州
第1工序中就可以加工φ16 孔。
头像被屏蔽
发表于 2010-1-11 08:29:49 | 显示全部楼层 来自: 中国辽宁丹东
提示: 作者被禁止或删除 内容自动屏蔽
发表于 2010-1-11 10:36:39 | 显示全部楼层 来自: 中国山东潍坊
1.车左端面,车¢30外圆,车¢26,车断。
0 F2 A9 g0 G$ n4 d2.车螺纹,车¢25,¢16,保证个尺寸7 k: Q3 u9 r3 F( a: s7 g
新手回答请指教!
发表于 2010-1-11 11:03:50 | 显示全部楼层 来自: 中国山西太原
为保证螺纹与内孔的同轴度,调头后M30×1.5、φ25、φ16一起加工,为防止切削中夹装变形,可最后车φ16内孔,以增大前几工步的夹装刚度。
发表于 2010-1-11 11:17:38 | 显示全部楼层 来自: 中国重庆
根据公差要求的程度来安排加工的先后顺序
发表于 2010-1-11 12:50:52 | 显示全部楼层 来自: 中国安徽合肥
此零件材料为ABS塑料,刚性差,宜一次装夹加工完成。  i! _% E0 c5 E  L
1.夹棒料,车左端面,车¢30外圆,车¢26,车螺纹;
5 h( X1 P7 k1 z% R) t2.钻车¢16孔,车¢25及倒角,截取总长车断。
发表于 2010-1-11 21:56:24 | 显示全部楼层 来自: 中国黑龙江哈尔滨
楼上的方法是可取的建议楼主采纳!!!
发表回复
您需要登录后才可以回帖 登录 | 注册

本版积分规则


Licensed Copyright © 2016-2020 http://www.3dportal.cn/ All Rights Reserved 京 ICP备13008828号

小黑屋|手机版|Archiver|三维网 ( 京ICP备2023026364号-1 )

快速回复 返回顶部 返回列表