|
|

楼主 |
发表于 2010-1-27 09:36:45
|
显示全部楼层
来自: 中国北京
本帖最后由 飞天小猪 于 2010-2-8 09:34 编辑 1 O+ v3 b" E" ~: v( D; x y- {* @
- z" F! z- ^( O0 ~0 O
我发不上图啊。。。。。。我在jxcad也发了同样的帖子,发个链接吧,不是故意发广告一类的啊。。。见谅
& l6 m0 q: i: c0 s, w& B* l/ T" S4 f
) e8 I! Z' u1 `& f j帮你贴上,请勿再转其它论坛的链接!! E5 ]5 p6 `8 ?4 L2 _7 I6 V
by 飞天小猪
. k, M$ f1 Q: k5 n
! {1 E# i$ q7 S G' E5 x" ]
3 A7 O, p J# s- ]3 ]. G
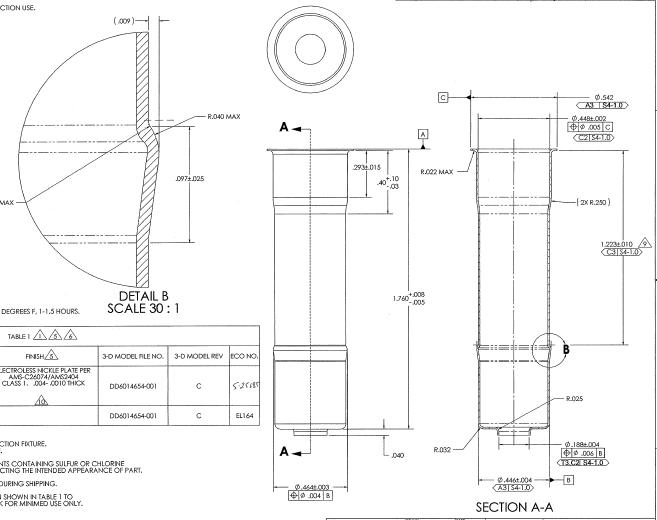
, d/ `$ _. B; `& D2 r; T我手头有这样一张图纸,看不大懂应该怎么加工,麻烦各位大仙给看看。据我看,这个件应该是冲压为主,但是中间的台阶怎么弄?是否还要有滚压工艺?: m8 F0 r6 x; H! ]* a6 @ r+ Z' @
另求能做此件的供应商,qq114114094,邮箱 wangliang_roberto@126.com |
|