QQ登录

只需一步,快速开始

登录 | 注册 | 找回密码

三维网

 找回密码
 注册

QQ登录

只需一步,快速开始

展开

通知     

全站
8天前
查看: 10876|回复: 14
收起左侧

[讨论] 请问图中梭阀的作用是什么?

[复制链接]
发表于 2010-2-1 23:23:44 | 显示全部楼层 |阅读模式 来自: 中国河北唐山

马上注册,结识高手,享用更多资源,轻松玩转三维网社区。

您需要 登录 才可以下载或查看,没有帐号?注册

x
本帖最后由 biancheng 于 2010-2-1 23:33 编辑
- d. Z: W7 G0 j( m, \0 C, F: Q! g5 |: v2 S" ], n6 j. W/ q# a: y
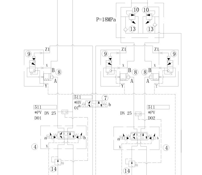
1.JPG 请问,图中比例阀出口的两个梭阀是起什么作用的?是不是与减压阀一起起到稳定比例阀前后的压力作用的?我记得有一种减压阀和梭阀一体的阀,好像是叫压力补偿器,好像是起到这个作用,不知道这个是不是也起到这种作用,还有右侧部分那两个编号为13的单向阀(溢流阀旁边)的作用是什么?是不是在油缸速度过快的时候补油?
1.JPG
发表于 2010-2-2 08:11:41 | 显示全部楼层 来自: 中国浙江台州
在我看来你说的都是正确的,这梭阀应该是起到前后压力稳定作用。至于13的单向阀和10的过载阀一起组成过载补油作用,这个在装载机和挖机上很常见的,一般是油缸回油时速度过快,出现真空,起补油作用。
发表于 2010-2-2 10:13:35 | 显示全部楼层 来自: 美国
应该是这样的
发表于 2010-2-2 11:15:27 | 显示全部楼层 来自: 中国上海
恩,楼主自己的分析很好!
头像被屏蔽
发表于 2010-2-3 08:59:27 | 显示全部楼层 来自: 中国山西大同
提示: 该帖被管理员或版主屏蔽
发表于 2010-2-3 09:36:57 | 显示全部楼层 来自: 中国浙江温州
楼主说的是正确的,这样的系统设计方式我用过也亲自调试过,是在钢厂加热炉的项目
! W1 J' ^$ h+ u1.梭阀与减压阀14是一体的,叫进口压力补偿器,我当时用的是力士乐的产品,它作用是保证比例换向阀4的进出口之间压力为恒定值不随负载变化而变化,起到提供稳定流量的作用,从而保证执行元件运动速度恒定,不随负载变化而变化8 n( O' ^' J0 @# U( |
2.单向阀13确实是起补油作用的,在执行元件运动速度过快或产生冲击或突然起动加速时,系统流量可能供不足,没有补油的话就会在执行元件内部产生部分真空,形成很大的拉力,很有可能把密封圈都给从槽中拉出来损坏
发表于 2012-8-7 12:49:49 | 显示全部楼层 来自: 中国北京
梭阀的具体作用还有哪些?那位可以介绍一下
发表于 2012-8-7 13:28:07 | 显示全部楼层 来自: 中国山东烟台
补油阀这里能在详细的解释一下如何实现补油的?
发表于 2014-3-13 10:16:14 | 显示全部楼层 来自: 中国上海
图中8是什么东西啊
发表于 2014-3-13 21:06:24 | 显示全部楼层 来自: 中国浙江杭州
取负载压力反馈至压力补偿器,保持流量不随负载变化
发表于 2014-3-13 21:07:02 | 显示全部楼层 来自: 中国浙江杭州
270027124 发表于 2014-3-13 10:16 static/image/common/back.gif3 B% ]: t8 I, Q$ _# W( d# }
图中8是什么东西啊
. J2 v! _1 Z# n  r2 y0 s9 w7 c5 o
二通阀,也叫逻辑阀
发表于 2014-3-14 11:49:33 | 显示全部楼层 来自: 中国山西临汾
梭阀的作用应该是起一个取样阀的作用。
发表于 2014-3-29 15:48:22 | 显示全部楼层 来自: 中国江苏盐城
楼主说的很对,比例阀就好像的节流阀一样,叫阀后补偿,为了保持流量不随负载的变化变化。
发表于 2014-3-31 22:40:06 | 显示全部楼层 来自: 中国上海
取样阀的作用可以分别测量二路压力数值;再可以作冲洗阀使用。
发表于 2014-4-3 18:54:28 | 显示全部楼层 来自: 中国浙江杭州
梭阀是和比例换向阀前的定差减压阀一起组成进口压力补偿器,保证阀开口前后的压差恒定,从而保证速度不受负载变化的影响。7 i7 p$ J- \! t4 y; k9 j% R
单向阀是起补油作用的,比如突然制动后,就在一侧的溢流阀处溢流,另一侧的单向阀就起补油作用。
发表回复
您需要登录后才可以回帖 登录 | 注册

本版积分规则


Licensed Copyright © 2016-2020 http://www.3dportal.cn/ All Rights Reserved 京 ICP备13008828号

小黑屋|手机版|Archiver|三维网 ( 京ICP备2023026364号-1 )

快速回复 返回顶部 返回列表