|
|

楼主 |
发表于 2010-2-2 19:22:19
|
显示全部楼层
来自: 中国上海
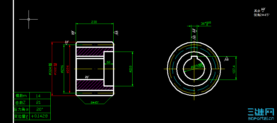
本帖最后由 hbsky20 于 2010-2-2 20:15 编辑 * ?# Q( M2 H" t4 q/ [& U
+ l) L( I; t; |
此图中变位后的齿顶园直径是如何算的 我算的对吗
' q9 E0 {, F( B8 u* g/ w& U' J& h# X/ h! B/ E
5 h9 p6 S, h! |0 A% X变位量:刀具的中线由加工标准齿轮的位置平移的垂直距离。+ C& K4 a: I" W, ~: C
/ o- |% A5 {+ R5 _- P+ q8 e9 p" l. k2 n$ r
变位系数:用标准模数表达变位量所需的系数。
6 ] ]' Q3 B) N/ I6 ^: N& A( C
C$ ?3 m, t$ I5 s+ P8 E$ c6 P, q) ?0 Q
最小变位系数:加工渐开线齿轮不产生根切所需变位系数的最小值。9 F) z% ?6 Z6 D+ b$ ~" A8 v: Y
$ ~1 Q6 k- k. ?- {
& K# n; {+ f* r/ _. X* U9 | xmin = h*a (Zmin - Z)/ Zmin 最小齿数Zmin是怎么定的 不是 很懂 怎么有最小齿数 |
|