QQ登录

只需一步,快速开始

登录 | 注册 | 找回密码

三维网

 找回密码
 注册

QQ登录

只需一步,快速开始

展开

通知     

全站
7小时前
查看: 3052|回复: 7
收起左侧

[已解决] 打印线粗问题

[复制链接]
发表于 2010-2-5 11:20:31 | 显示全部楼层 |阅读模式 来自: 中国浙江杭州

马上注册,结识高手,享用更多资源,轻松玩转三维网社区。

您需要 登录 才可以下载或查看,没有帐号?注册

x
1.jpg 3.jpg / Z1 ^; [, Z9 I$ T( t2 O' g
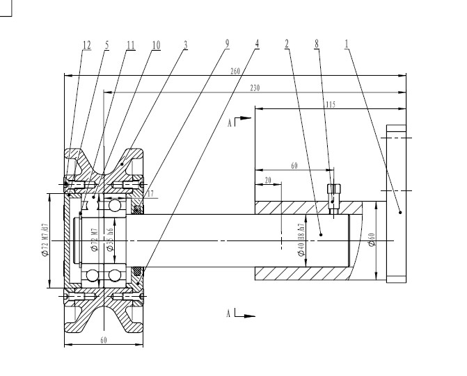
如上图,SW工程图中显示线条有粗细,但是用转成PDF格式后就没有粗细了。请问打印线条粗细在哪可以修改?0 }* v+ T0 @9 U  P
另外画剖视图时,标准件往往不是在合适的位置,如图中轴承,不知大家是如何处理的?
2.jpg
 楼主| 发表于 2010-2-5 12:31:18 | 显示全部楼层 来自: 中国浙江杭州
等好心人指点!
发表于 2010-2-5 12:51:40 | 显示全部楼层 来自: 中国广西
直接存为pdf就ok了,何必打印成pdf?
" p/ n; `) u! ~) b" X我一直是这样。7 T- |2 }4 K$ I, k: s
轴承只能你自己调整了。
发表于 2010-2-5 12:58:05 | 显示全部楼层 来自: 中国河南郑州
本帖最后由 zimo 于 2010-2-5 12:59 编辑 + U% G. t. G' u

/ t/ }. }3 o/ u9 f3 E与这个选项有关吧?楼主试试。另存pdf文件时,有个选项,打开就看到了。
7 M# i4 `* d' \% u* n; A至于剖视图的问题,我想只能让标准件旋转到剖切的位置,让剖面刚好是在想要的地方。
4 F) z0 U" x# d" E' Y 截图.jpg
发表于 2010-2-5 16:59:34 | 显示全部楼层 来自: 中国浙江杭州
楼主要自己设置的,要么是两条线距离太近造成的
发表于 2010-2-5 18:12:31 | 显示全部楼层 来自: 中国江苏镇江
1.轴承在零件图在合适的位置上做一个参考基准面,装配图就可以选择配合了。然后再隐藏.9 P& X$ J. e7 y$ r! X0 r0 y- W
2.线粗:在模板上设置可见边线为0.35,其他默认。打印时(包含PDF虚拟打印机),将页面设置由自动改为:黑 白,其他不用调整。如果你愿意这一步可在工程图模板中设置。但转为PDF时,文件是黑白的。
 楼主| 发表于 2010-2-5 19:03:58 | 显示全部楼层 来自: 中国浙江杭州
多谢各位!
发表于 2010-2-5 20:40:54 | 显示全部楼层 来自: 中国贵州贵阳
选项里面有线性的设定,在打印选项里有线粗的设定值
发表回复
您需要登录后才可以回帖 登录 | 注册

本版积分规则


Licensed Copyright © 2016-2020 http://www.3dportal.cn/ All Rights Reserved 京 ICP备13008828号

小黑屋|手机版|Archiver|三维网 ( 京ICP备2023026364号-1 )

快速回复 返回顶部 返回列表