QQ登录

只需一步,快速开始

登录 | 注册 | 找回密码

三维网

 找回密码
 注册

QQ登录

只需一步,快速开始

展开

通知     

查看: 2323|回复: 14
收起左侧

[求助] 关于负载敏感系统的问题

[复制链接]
发表于 2010-2-7 09:40:14 | 显示全部楼层 |阅读模式 来自: 中国河北石家庄

马上注册,结识高手,享用更多资源,轻松玩转三维网社区。

您需要 登录 才可以下载或查看,没有帐号?注册

x
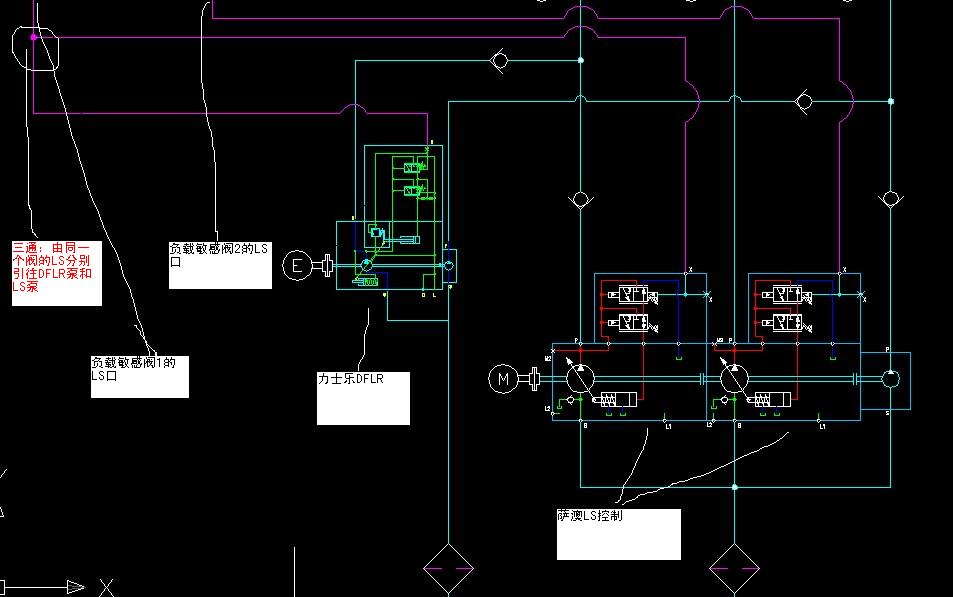
本人刚接触液压,现在在做的一个系统是采用了双动力,一套是萨澳的负载敏感泵。另一套是力士乐的恒功率泵即DFLR控制,两套系统在供油时不同时使用,即使用萨澳时力士乐是不动的,反之亦然。
+ w9 w3 x2 l* R  \" d( I( m       阀是哈威的负载敏感阀psv这种
( ^% `3 l+ P3 {3 m, t0 K" {  Z+ P       现在的问题是我将负载敏感阀的LS口接到萨澳的泵上没有问题,但是如果是力士乐的泵工作的话,同样的阀上的LS口再接到力士乐的泵上有什么问题吗? 也就是说我将阀上的LS口的油路通过三通一个分别连到萨澳和力士乐的泵上有没有问题?9 P0 @* G& }$ V
      欢迎大家指教!!谢谢!!!
发表于 2010-2-7 10:08:08 | 显示全部楼层 来自: 中国辽宁本溪
DFLR泵本身应该具有多种控制功能。
% P& G. s. D" m8 |不知楼主为何采用两种泵的配置。
复合控制.JPG
 楼主| 发表于 2010-2-7 10:57:17 | 显示全部楼层 来自: 中国河北石家庄
请看图片
( j- K: {0 P, }$ Z就是因为选择了两种泵控制才有现在的问题,如果都采用力士乐的泵就没有现在的问题了,呵呵 液压系统.jpg
发表于 2010-2-7 11:22:38 | 显示全部楼层 来自: 中国贵州毕节
阀上的流量控制受到泵上流量阀压差的设定影响,如力士乐的泵和萨奥的泵的流量阀压差设定是一样的,那么这样接法应该是可以的。如果两个泵上流量阀的压差设定不一致,则在不同的泵工作时,负载敏感阀上的流量控制也就不一致了。个人所见。
 楼主| 发表于 2010-2-7 15:29:26 | 显示全部楼层 来自: 中国河北石家庄
楼上的能不能说的详细点?就我的这个系统进行一下指点吧
发表于 2010-2-7 15:56:38 | 显示全部楼层 来自: 中国贵州毕节
指点不敢当,共同学习交流吧,对变量泵的负载敏感系统我也是初学者。要弄明白负载泵和负载敏感阀配用的原理我觉得先要搞明白泵上的流量阀的作用(即2楼提供图中的流量控制阀),这个阀的压力设定每个厂家的泵是不一样的,力士乐样本中说明标准设定是18BAR,萨奥的不知道。这个压力设定控制着负载敏感阀的阀芯通过流量,当阀芯通过流量大于设定流量时,液流在阀芯处产生的压差将通过LS口被泵的流量控制阀感应到,从而自动调节泵的供油量,使其供油量符合阀的通油量要求。因此楼主的原理图中只要两个泵的流量控制阀的压力设定值一样,我个人认为这种接法没有什么问题。
 楼主| 发表于 2010-2-7 16:10:20 | 显示全部楼层 来自: 中国河北石家庄
楼上你好,你说的那个流量控制阀的压力设定是指泵的负载敏感设定值吗? 那么还有一个压力补偿设定值是设置的哪里?
9 |6 t1 d5 u% ]- w压力补偿是干什么用的啊?
发表于 2010-2-7 16:33:34 | 显示全部楼层 来自: 中国贵州毕节
我理解负载敏感设定值就是2楼图中流量控制阀的弹簧力设定值呀,当阀的左右压差达到18BAR时该阀就开始工作了。楼主说的压力补偿设定我理解是在负载敏感阀内,是一个减压阀的压差设定,减压阀和负载敏感阀的阀芯节流口共同组成了压力补偿器。用来感知负载的流量、压力变化的。不知我理解的对否。
 楼主| 发表于 2010-2-7 16:47:29 | 显示全部楼层 来自: 中国河北石家庄
负载敏感设定值我大概明白了,这个设定值应该是检测多路阀的进出口压差,这个压差去和设定好的18BAR去比较,当阀芯开度增大,进出口压差应该是成减小的趋势,这时泵内的流量阀将泵排量增大。当阀芯开度减小,进出口压差呈增大的趋势,将泵的排量增大。是不是啊?
  `+ R4 y: h( J8 S8 X9 k另外关于压力补偿,萨澳的泵在订货代码中是有一个“压力补偿设定值”的选项的啊,不知道这是设定什么的?
. s+ x6 S# h% g# s期待高人的到来!!
& N1 Q7 C  F, P! d谢谢楼上的朋友!!" S; a1 v; {: o) y8 G) t
继续交流,一起进步啊!!
发表于 2010-2-7 16:56:55 | 显示全部楼层 来自: 中国贵州毕节
我也是初学者,负载敏感系统好多地方我也搞不明白,随时帮你顶帖,也随着高人学习、学习。
发表于 2010-2-9 10:49:56 | 显示全部楼层 来自: 中国四川资阳
那位老师能讲解一下2楼图中流量控制阀上边的阻尼孔德作用,及压力控制阀下边两个节流孔德作用啊?
头像被屏蔽
发表于 2010-2-9 11:20:04 | 显示全部楼层 来自: 中国广东深圳
提示: 作者被禁止或删除 内容自动屏蔽
发表于 2010-2-11 07:35:25 | 显示全部楼层 来自: 中国福建厦门
大家做事怎么不自己用心去想想呢? Sauer的压力补尝就是力士乐的压力切断!唉!想都不想一想就问出来!: H8 N- r8 q: M

  q! d- o+ T5 H4 k9 m7 T    在这我想说的事,在要楼主所说的工况下,你这样的原理图系统具定是可以工作的!  就是力士乐和Sauer的泵一起开也可以工作!  你把力士乐当成Sauer的泵也是一样的!  与哈威这种阀前补尝的阀一起使用,你无需对泵作任何修改,力士乐Sauer通用是怎么调定,拿过来用时就可以了!
发表于 2010-2-17 12:28:34 | 显示全部楼层 来自: 中国湖北黄冈
你这个系统好像是有些问题:
' W% ^3 H7 t9 O  @- V' U9 k3 VA10VO...DFLR是LUDV(第二代)负载敏感系统
6 p# J  a2 I  N" JSAUER好像是第一代LS系统(阀前补偿的)
+ B$ {2 Z- W* h混用可能会有一些问题的/ R. o+ |3 D. E

  c; }/ [4 ]2 k5 U! cLZ有更详细的原理图没?
* |7 t/ d, E8 d+ Y$ i大家可以集思广益
发表于 2010-2-21 09:09:08 | 显示全部楼层 来自: 中国福建厦门
这个没有什么问题的!呵呵!原理上分板一下就OK了!+ x( O6 E. `8 f5 n; }8 B6 G5 d0 B
    我以前介绍过,阀前补尝就是调速阀的并联,再并个阀后补尝是一样的用的!
/ Q- Z: u" O3 J0 Y7 ^: u另外请注意,泵是一样的!A10VO*DFLR与Sauer45系列的原理是一样的!泵都是普通LS泵!哪还分第一代第二代的!呵呵!
' R! B" @; R6 k8 q$ X* {! v! P/ l. e    有什么问题可以Call我!
发表回复
您需要登录后才可以回帖 登录 | 注册

本版积分规则


Licensed Copyright © 2016-2020 http://www.3dportal.cn/ All Rights Reserved 京 ICP备13008828号

小黑屋|手机版|Archiver|三维网 ( 京ICP备2023026364号-1 )

快速回复 返回顶部 返回列表