QQ登录

只需一步,快速开始

登录 | 注册 | 找回密码

三维网

 找回密码
 注册

QQ登录

只需一步,快速开始

展开

通知     

全站
3小时前
goto3d 说: 在线网校重磅上线MC2022&Inventor2022全新课程,虞为民老师、大表哥同事精彩讲解,快去围观!
2021-06-25
查看: 2410|回复: 11
收起左侧

[已解决] proe中英公制尺寸可否同时显示

[复制链接]
发表于 2010-2-8 20:00:39 | 显示全部楼层 |阅读模式 来自: 中国北京

马上注册,结识高手,享用更多资源,轻松玩转三维网社区。

您需要 登录 才可以下载或查看,没有帐号?注册

x
proe中英公制尺寸可否同时显示?
7 k' ^9 S  _) ~: ^3 W如果可以应该怎么设置?
发表于 2010-2-8 22:42:48 | 显示全部楼层 来自: 中国广东广州
工程图配置文件设置:
) n" U/ a" n! vdual_dimensioning yes
' K4 b: l/ V: q/ ]3 _! N. z; w3 Qdual_secondary_units inch

评分

参与人数 1三维币 +3 收起 理由
kevin_pcac + 3 应助

查看全部评分

发表于 2010-2-8 22:54:06 | 显示全部楼层 来自: 中国上海
2#最好把效果贴出出来给大家欣赏
发表于 2010-2-9 07:50:15 | 显示全部楼层 来自: 中国浙江杭州
会设置的朋友贴个图给大家看看,
发表于 2010-2-9 09:28:14 | 显示全部楼层 来自: 中国河南许昌
[quote] 2#最好把效果贴出出来给大家欣赏

AAAQ.pdf

103.92 KB, 下载次数: 52

发表于 2010-2-9 09:32:36 | 显示全部楼层 来自: 中国河南许昌
本帖最后由 zpf2199 于 2010-2-9 09:34 编辑
8 a# I" A0 \$ ^, u3 F. i0 x, j
2#最好把效果贴出出来给大家欣赏  v; W( ~' Q# C; U; {# S, ^" g
johnnyhuang 发表于 2010-2-8 22:54 http://www.3dportal.cn/discuz/images/common/back.gif

+ i' r. `, C2 q! A& Y
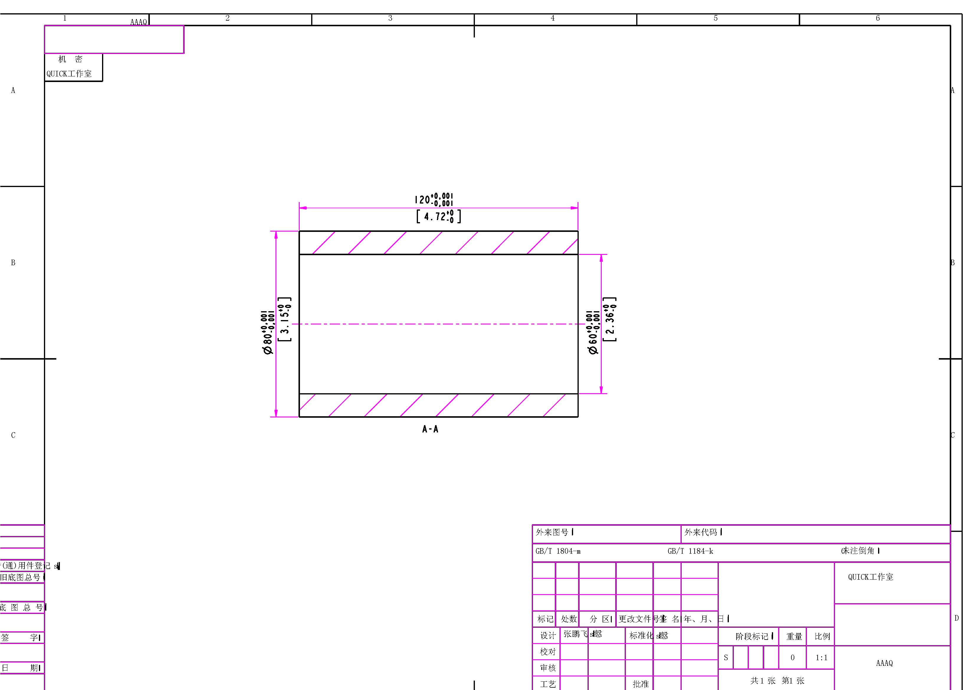
* s& V# {$ J. }- r8 \: O按照2楼的工程图配置文件设置:
* L0 _: `  J- t8 R3 D* Z3 [dual_dimensioning yes
, E8 |9 L! n  J8 `dual_secondary_units inch+ B; @$ m7 M% C6 J# c# V, V7 X
请看图片
AAAQ.jpg

评分

参与人数 1三维币 +2 收起 理由
wz_111 + 2 应助

查看全部评分

 楼主| 发表于 2010-2-9 15:15:59 | 显示全部楼层 来自: 中国北京
6# zpf2199
9 j) s' d( x  K- P, K- s  f: A. y3 g) J/ R7 {8 ]
0 y. s  q/ c, k0 p7 E
谢谢,太感谢了。。
发表于 2010-2-18 14:06:30 | 显示全部楼层 来自: 中国广东佛山
哈哈,又学一招。
发表于 2010-2-20 11:32:33 | 显示全部楼层 来自: 中国四川资阳
下来慢慢看。
 楼主| 发表于 2010-3-25 08:17:01 | 显示全部楼层 来自: 中国北京
6# zpf2199 ) I5 a* q) _! P0 M2 n+ F; f8 ~
再问一下。标注的尺寸数字,怎么样让他横着显示。请看附件。 QQ截图未命名.jpg
发表于 2010-3-25 11:24:06 | 显示全部楼层 来自: LAN
6# zpf2199  
4 y4 w) b. a$ P再问一下。标注的尺寸数字,怎么样让他横着显示。请看附件。1607093
7 C3 S9 l1 s0 z( A1 yspringpasss 发表于 2010-3-25 08:17 http://www.3dportal.cn/discuz/images/common/back.gif

9 ?* K& y3 E7 {% x2 n2 M( @2 C
. N: s0 N% \  n0 p9 B' [, P7 J' W看看这个,.....
5 I/ T, b1 a' {' g( j1 ]http://www.3dportal.cn/discuz/viewthread.php?tid=883093&extra=page%3D3

评分

参与人数 1三维币 +3 收起 理由
kevin_pcac + 3 应助

查看全部评分

发表于 2010-3-26 13:00:02 | 显示全部楼层 来自: 中国香港
英制的公差怎么都是零,如何设置?
发表回复
您需要登录后才可以回帖 登录 | 注册

本版积分规则

Licensed Copyright © 2016-2020 http://www.3dportal.cn/ All Rights Reserved 京 ICP备13008828号

小黑屋|手机版|Archiver|三维网 ( 京ICP备2023026364号-1 )

快速回复 返回顶部 返回列表