QQ登录

只需一步,快速开始

登录 | 注册 | 找回密码

三维网

 找回密码
 注册

QQ登录

只需一步,快速开始

展开

通知     

查看: 3453|回复: 16
收起左侧

[已解决] 汽轮机发电机的CAD示意简图

[复制链接]
发表于 2010-2-18 16:43:22 | 显示全部楼层 |阅读模式 来自: 中国陕西榆林

马上注册,结识高手,享用更多资源,轻松玩转三维网社区。

您需要 登录 才可以下载或查看,没有帐号?注册

x
大家手头是否有相关的示意简图,只需要外观的,最好能有包括中间联轴器的。
发表于 2010-2-18 17:30:10 | 显示全部楼层 来自: 中国山东潍坊
又是个题神(替身)啊!!!郁闷!
 楼主| 发表于 2010-2-18 22:09:02 | 显示全部楼层 来自: 中国陕西榆林
又是个题神(替身)啊!!!郁闷!
8 \0 Q) Y0 Y$ i5 w5 T. A+ Xa987lkj 发表于 2010-2-18 17:30 http://www.3dportal.cn/discuz/images/common/back.gif
* k" O9 E- y6 e0 _7 U6 D. f
何意?画图时候要用,所以找些素材!
 楼主| 发表于 2010-2-21 08:20:30 | 显示全部楼层 来自: 中国陕西榆林
麻烦各位提供下,仅仅是一个简图!
发表于 2010-2-21 15:01:11 | 显示全部楼层 来自: 中国山西临汾
本帖最后由 sxlfr 于 2010-2-21 15:02 编辑 # J- O  R6 ]+ o+ |. t" `
9 s1 c  l- J& L- M  Z) {6 I& L
楼主要的是示意图?不知道你所说的示意是什么意思,给你一个汽轮机的看看对不对。! V' }# x2 U! G
东方600MW汽轮机本体.jpg
 楼主| 发表于 2010-2-22 10:25:31 | 显示全部楼层 来自: 中国陕西榆林
简图,外观的简图,看来我自己画吧
发表于 2010-2-22 14:57:48 | 显示全部楼层 来自: 中国山西临汾
简图,外观的简图,看来我自己画吧( T4 c2 a( q" W# h7 \6 s" m
lauhob 发表于 2010-2-22 10:25 http://www.3dportal.cn/discuz/images/common/back.gif
; J* _! ~. v2 k
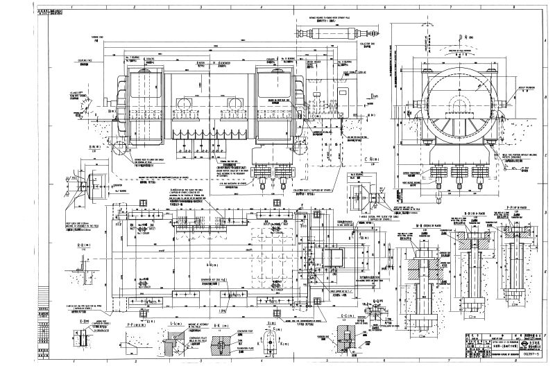
看看是这样的吗?发电机的图。% B# v5 o8 h  i% q
0Q397-S.jpg
发表于 2010-2-22 15:23:58 | 显示全部楼层 来自: 中国浙江宁波
图片好小啊,看不清楚哦
 楼主| 发表于 2010-2-22 20:28:36 | 显示全部楼层 来自: 中国陕西榆林
看看是这样的吗?发电机的图。( I7 H- M% j' y  _/ u
1588136
; T0 M* T, ]/ D+ u9 U! [: X! nsxlfr 发表于 2010-2-22 14:57 http://www.3dportal.cn/discuz/images/common/back.gif

( n' B3 J7 ?, D, i' s# ?9 k+ X/ ?呵呵,像是个简图!
发表于 2010-2-23 09:31:33 | 显示全部楼层 来自: 中国山西临汾
呵呵,像是个简图!
( e6 H. f- c. i5 b* d! R& t9 ^lauhob 发表于 2010-2-22 20:28 http://www.3dportal.cn/discuz/images/common/back.gif
) O: D- v' z5 X0 c
哈哈,你不是就要简图吗?我的这张图实际大小14000*20000。
 楼主| 发表于 2010-2-23 22:49:12 | 显示全部楼层 来自: 中国陕西榆林
想要个外观简图
发表于 2010-2-26 15:52:06 | 显示全部楼层 来自: 中国山西临汾
想要个外观简图- ~3 h) T5 G" I( j# w9 r& L* F$ A
lauhob 发表于 2010-2-23 22:49 http://www.3dportal.cn/discuz/images/common/back.gif

9 c4 j0 Q" h( p& y; i4 `6 y7 L$ ^发个照片看看。  @5 E7 V. t) `1 ?" j2 d
100MW的9 r5 X2 D6 T& U% `
DSC06348.jpg
& A8 l. W) i& P9 f, h" B* ^60MW的
" B- ~1 o6 r7 u' R3 d  f: I7 a# L% v DSC06347.jpg
 楼主| 发表于 2010-2-26 17:05:00 | 显示全部楼层 来自: 中国陕西榆林
我是觉得发电机外观比较好画,汽轮机的外观不好下手,难道将低压侧和高压侧都表示出来
发表于 2010-2-27 13:45:46 | 显示全部楼层 来自: 中国江苏无锡
不要这么复杂吧
发表于 2010-2-27 15:15:56 | 显示全部楼层 来自: 中国山西临汾
不知道楼主要干什么,到底需要什么东西,不知道如何示意?
发表于 2010-2-27 16:22:38 | 显示全部楼层 来自: 巴基斯坦
收藏一下,以后或许用的找!~~
发表于 2010-4-12 17:20:34 | 显示全部楼层 来自: 中国山东东营
看来网络的能量真是巨大啊,刚看题目还以为不可能的事情,后面就看到真东西了。
发表回复
您需要登录后才可以回帖 登录 | 注册

本版积分规则


Licensed Copyright © 2016-2020 http://www.3dportal.cn/ All Rights Reserved 京 ICP备13008828号

小黑屋|手机版|Archiver|三维网 ( 京ICP备2023026364号-1 )

快速回复 返回顶部 返回列表