QQ登录

只需一步,快速开始

登录 | 注册 | 找回密码

三维网

 找回密码
 注册

QQ登录

只需一步,快速开始

展开

通知     

全站
19小时前
查看: 4600|回复: 24
收起左侧

[求助] CAXA2009 R3 电子图版标注求助

[复制链接]
发表于 2010-3-5 16:24:26 | 显示全部楼层 |阅读模式 来自: 中国江苏南通

马上注册,结识高手,享用更多资源,轻松玩转三维网社区。

您需要 登录 才可以下载或查看,没有帐号?注册

x
本帖最后由 5460zxd 于 2010-3-6 21:58 编辑
- @* {6 ]8 b9 P
1 k$ i& ^* x" a% U8 H  fCAXA2009 R3 电子图版标注问题:$ M6 X" s( k+ U* F0 A% E  Q3 J
1是半径标注;2是大圆弧标注。! c1 t# f% ]& P6 q; z, `
1可以使用直径标注;2无法进行直径标注(不要告诉我用替代或文本方式,我要自动生成的那种,不改变尺寸属性),二若是使用基本标注中的直径或半径标注,则会拖着一个长长尾巴,超出图框。7 a2 @6 e* d, _% r' P- v! Z
1可以加上公差;2无法加上公差。
2 w' K' \/ k$ `9 X1 ^+ f6 y' |. J! P
请高手指导。/ u  V4 h5 d5 H% E

6 |1 ?3 E5 S- B+ R 标注.jpg % j4 R+ n( o. y

( {4 J; y4 Q$ i: v( A7 |- t 标注1.jpg ) {1 s+ P: M( y" Z0 Z2 n, t2 e
1 _) ]2 E4 P) `7 i) W' `8 F
我的软件里有前缀和后缀,前缀可以改为直径,但尺寸值呢?还是半径值呀;(不要告诉我用替代或文本方式,我要自动生成的那种,不改变尺寸属性),后缀无法加入公差。没有尺寸标注属性设置对话框。见下图:, B; ~6 L0 ^! f, J) ^9 q
标注2.jpg 7 B/ y1 U  z" [5 t- w7 z( \4 _" d7 b
, P1 {& w& u, l# G* T
我们常用这样的图纸:很简单的图,但里面有好几个大圆弧标注。$ Q% I5 M. D; n5 Z0 D0 b
大圆弧标注.jpg 6 x. }% w$ l( V( ?1 S0 n8 D
大圆弧标注2.jpg
发表于 2010-3-5 16:44:23 | 显示全部楼层 来自: 中国安徽马鞍山
本帖最后由 nieweiguo 于 2010-3-5 16:45 编辑
! R) t0 {5 \' T0 C
5 f, e* Q- k& \! \+ s3 N4 |1# 5460zxd
: N, [& i8 l/ }% _ qwer.JPG / B$ d' k7 h8 Q1 Y# a' S) |. N
改前缀和后缀即可
头像被屏蔽
发表于 2010-3-5 16:55:40 | 显示全部楼层 来自: 中国湖北黄冈
提示: 作者被禁止或删除 内容自动屏蔽
发表于 2010-3-5 17:00:11 | 显示全部楼层 来自: 中国安徽马鞍山
普通单核CPU使用率高达百分百,剖面线镜像后方向有问题,不统一
 楼主| 发表于 2010-3-5 17:08:10 | 显示全部楼层 来自: 中国江苏南通
本帖最后由 5460zxd 于 2010-3-5 17:38 编辑
# x# L; H: ]+ B2 @, Z7 i6 }. d( |+ L9 H1 Y) B" B1 F! N# g  i
2# nieweiguo
! V/ M3 ~, w# C) U& ?& X
" v9 r5 W3 y! Z4 i我的问题是CAXA2009 R3版,你的是哪版?请问如何做到的?- d* K  M" {  \' _
我的软件里有前缀和后缀,前缀可以改为直径,但尺寸值呢?还是半径值呀;后缀无法加入公差。
发表于 2010-3-5 17:15:50 | 显示全部楼层 来自: 中国安徽马鞍山
本帖最后由 nieweiguo 于 2010-3-5 17:20 编辑
0 K; `6 ~* ~" q. M6 c1 H
4 J, X! X3 D7 z5# 5460zxd
, \' ~, w! L1 \/ F# H1 Y3 x+ `% P0 D我用的也是R3版。前缀输入%c就是直径,后缀你要输什么公差,我帮你查,就这点不方便,在基本尺寸的地方改任意尺寸
 楼主| 发表于 2010-3-5 17:36:32 | 显示全部楼层 来自: 中国江苏南通
5# 5460zxd 6 v9 T, E  ]9 i& b# h1 x
我用的也是R3版。前缀输入%c就是直径,后缀你要输什么公差,我帮你查,就这点不方便,在基本尺寸的地方改任意尺寸1 `$ {5 `& F1 u1 B
nieweiguo 发表于 2010-3-5 17:15 http://www.3dportal.cn/discuz/images/common/back.gif

$ `+ ?3 I) j; b9 D' \1 W
: d* t! v& ]4 C. d& W2 S( J; l( {你好,谢谢你的解答,但不是我要的答案,公差值我会查,不光CAXA里已集成,我还有工具书。5 W. i1 f3 c8 i4 C, Q6 n
我要说的是:2 F- w1 \6 m) K1 C
  前缀可以改为直径,但尺寸值还是半径值(不要告诉我在基本尺寸的地方用替代或文本方式或修改,我要自动生成的那种,不改变尺寸属性的,甚至能尺寸驱动的),后缀无法加入公差,没有尺寸标注属性设置对话框。(我要是的是正常公差标注,不是用/代替的,是上下结构的),你,明白?
发表于 2010-3-5 18:06:51 | 显示全部楼层 来自: 中国江西南昌
公差可以标注,标注方法与CAXA2007一样
发表于 2010-3-5 19:16:48 | 显示全部楼层 来自: 中国江苏无锡
你的效果就是要大半径的尺寸标注需要,标注直径效果而且是有公差,那么你可以用基本标注,将调整优化---在尺寸界线间绘制尺寸选项关掉,标注的时候将鼠标移出大圆弧外侧。就可以了
+ c. \) C6 e8 w- n这样满足你的大半径标注有直接而且是可以右键弹出公差,而且尺寸不难看: y$ x7 N8 p0 o. |0 p$ [6 X" r+ ~9 p
还有,见附图对这样的解释
q.gif
admin_080307161046.jpg

评分

参与人数 1三维币 +5 收起 理由
dongchongxiacao + 5 应助

查看全部评分

 楼主| 发表于 2010-3-5 21:29:41 | 显示全部楼层 来自: 中国江苏南通
9# guojayu320 3 w3 H4 \6 e8 K( o

% }. s, E0 r# m' |3 \- f; h8 O谢谢,但是如此改动,会导致小圆的内部尺寸线消失了,都到外面去了,如果我两种都需要,岂不是要改来改去,我们公司用的比较多。
发表于 2010-3-5 21:50:18 | 显示全部楼层 来自: 中国河北保定
这个贴挺热,借帖问个问题,2009版有没有圆心标记。
发表于 2010-3-5 22:36:18 | 显示全部楼层 来自: 中国河南郑州
楼主有点太较真,任何软件都不可能完全满足所有的要求。一来大圆弧标注使用直径的很少,二来9楼解决了问题,无非做个专用样式即可,哪来的改来改去。6 V: e0 ~2 o( t. _- P( \9 W; \

$ x# H# K7 u- u8 H6 U3 l11楼的问题在2009R3中可以解决,用中心线命令,其中心线长度可以自由拖动。在2007中MARSWU的小程序中也有此功能。
 楼主| 发表于 2010-3-6 20:23:58 | 显示全部楼层 来自: 中国江苏南通
12# fanfu . Q" ?2 S1 {/ u% y2 M) H9 a
% f% X/ x: M& B2 J& X
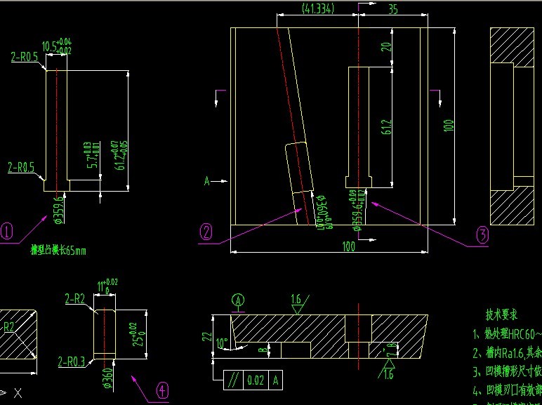
不是较真,的确是我们的需要,你看我的图,虽简单,但大圆弧标注的地方比较多,还必须要有公差(冷冲压模具); }5 l# B' Q  N: x1 C: D7 F: w
大圆弧标注.jpg
发表于 2010-3-6 22:51:28 | 显示全部楼层 来自: 中国河南郑州
那就照9楼的办法做了,单独做个样式。
发表于 2010-3-7 10:05:13 | 显示全部楼层 来自: 中国安徽芜湖
楼主呀,要活学活用,不要被先前的框框约束住,例如在早期xp版中,在局部放大图中标尺寸就是实际尺寸,可是以后的版本却是放大后的尺寸,需要另建立一个缩小比例的标注格式,开始感觉十分不爽,后来使用格式刷变更速度也挺快,再加之操作高度熟练了也就习惯了。其实,autocad里面类似这样“不合理”的操作远比CAXA要多的多,只是人们习惯了,无所谓了。制图,只要合乎规范其他人能看明白,自己操作便利即可。
 楼主| 发表于 2010-3-8 08:06:52 | 显示全部楼层 来自: 中国江苏南通
没错,是要活学活用。
发表于 2010-3-8 11:05:50 | 显示全部楼层 来自: 中国山东潍坊
楼主有点太较真,任何软件都不可能完全满足所有的要求。一来大圆弧标注使用直径的很少,二来9楼解决了问题,无非做个专用样式即可,哪来的改来改去。
- a. e3 }: J9 f$ S0 n9 c) b1 a) w' V8 Y2 S
11楼的问题在2009R3中可以解决,用中心线命令,其中心线长度可 ...2 Y8 H! s9 h' u9 \& {* X7 u
fanfu 发表于 2010-3-5 22:36 http://www.3dportal.cn/discuz/images/common/back.gif
/ @! o( c8 S- z* j" }
3 b3 i& k! b4 W- u4 \, T+ p
对头,我的EB模板保存了6种标注样式,这是必须得,没有万能样式
 楼主| 发表于 2010-3-8 13:04:17 | 显示全部楼层 来自: 中国江苏南通
17# 卢玉军 ' v+ ^6 v; a/ d( V' R

5 ?" c7 L& y0 ], T4 k# i没有说万能呀,只是用cad习惯了,觉得有些地方caxa没有它方便而已,咨询一下高手们是否有子功能,或者如何实现。
5 D+ V( a5 b1 R& lcad中我只用了一个标注样式“TD”,就标注出了如下的样式,而caxa中对于一般文本的 平行于尺寸线\保持水平\ISO标准 集中在一起,不能像cad那样分开设置。所以才会建立好多个并列的样式,如果有办法变通就好了,不用多次选择即时菜单改内容或调整标注样式。1 d# N# a9 c  k# X, r5 r% v
3 x; H$ v+ r7 X
标注3.jpg
发表于 2010-3-8 20:38:54 | 显示全部楼层 来自: 中国河南郑州
本帖最后由 fanfu 于 2010-3-8 20:40 编辑 + e3 ^1 [8 ~$ ^( W- ]
1 `+ A" r0 F; X$ I/ T
CAXA的一个样式也可完成很多标注方式,如图也是一个样式标成的。再者也总不能要求CAXA和ACAD完全一样吧,否则还叫CAXA吗?
9 n* H: T7 f* R: v; `* F Snap1.png
发表于 2010-3-9 14:37:54 | 显示全部楼层 来自: 中国山东潍坊
CAXA的一个样式也可完成很多标注方式,如图也是一个样式标成的。再者也总不能要求CAXA和ACAD完全一样吧,否则还叫CAXA吗?, U+ _0 h0 Y$ c
15975567 B' d9 X( N4 }2 p) ]& @
fanfu 发表于 2010-3-8 20:38 http://www.3dportal.cn/discuz/images/common/back.gif
! n/ i# y( q+ c+ u
怎么实现的?发个源文件大家学习一下
发表于 2010-3-9 19:35:18 | 显示全部楼层 来自: 中国河南郑州
就传个文件,文件中就一个样式,仅仅修改立即菜单实现。
4 e% s- s! b* t+ Y/ I% z/ b 工程图文档1.rar (11.93 KB, 下载次数: 15)
发表于 2010-3-11 23:40:37 | 显示全部楼层 来自: 中国江苏无锡
就传个文件,文件中就一个样式,仅仅修改立即菜单实现。+ `4 m6 t# p% x; ^$ W7 n8 K
159812615981251 z, b% ~' W( J  k& z
fanfu 发表于 2010-3-9 19:35 http://www.3dportal.cn/discuz/images/common/back.gif
& ]+ I4 z$ ?0 r3 g- G6 Q9 a
技术看重的是方法。顶!文件我要了,谢谢
发表于 2010-3-12 08:30:48 | 显示全部楼层 来自: 中国江苏南通
呵呵 我明白了
发表于 2010-3-12 11:27:49 | 显示全部楼层 来自: 中国山东威海
感觉2009还不如2007好用呢
 楼主| 发表于 2010-3-12 20:54:33 | 显示全部楼层 来自: 中国江苏南通
谢谢指导,不过我还是觉得CAXA鼠标操作过多,没有CAD命令方便
发表回复
您需要登录后才可以回帖 登录 | 注册

本版积分规则

Licensed Copyright © 2016-2020 http://www.3dportal.cn/ All Rights Reserved 京 ICP备13008828号

小黑屋|手机版|Archiver|三维网 ( 京ICP备2023026364号-1 )

快速回复 返回顶部 返回列表