QQ登录

只需一步,快速开始

登录 | 注册 | 找回密码

三维网

 找回密码
 注册

QQ登录

只需一步,快速开始

展开

通知     

全站
20小时前
查看: 1500|回复: 11
收起左侧

[求助] 请高手帮帮忙!!!

[复制链接]
发表于 2010-3-8 20:57:13 | 显示全部楼层 |阅读模式 来自: 中国浙江宁波

马上注册,结识高手,享用更多资源,轻松玩转三维网社区。

您需要 登录 才可以下载或查看,没有帐号?注册

x
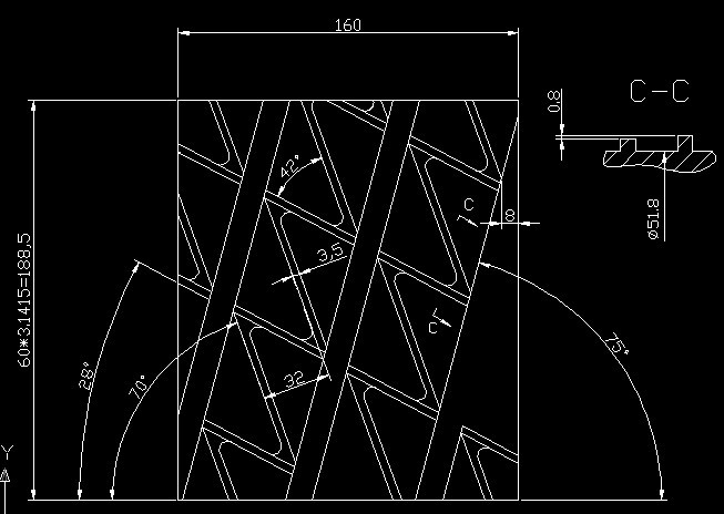
在规格:直径60X160长的圆棒上做出如附件如示的结构!!!' q5 q# ]6 g) f6 B7 w3 \9 g
做出来请将文件上传我的贴子里面,谢谢~~~
展开图.jpg
 楼主| 发表于 2010-3-8 20:58:28 | 显示全部楼层 来自: 中国浙江宁波
大家帮帮忙呀
发表于 2010-3-9 00:24:14 | 显示全部楼层 来自: 巴基斯坦
俺也不会,帮忙楼主顶下!
 楼主| 发表于 2010-3-9 21:44:08 | 显示全部楼层 来自: 中国浙江宁波
请高手帮忙呀
 楼主| 发表于 2010-3-9 21:47:03 | 显示全部楼层 来自: 中国浙江宁波
大家都来动动手
发表于 2010-3-9 21:53:26 | 显示全部楼层 来自: 中国广东韶关
用包覆命令应该可以。
 楼主| 发表于 2010-3-9 22:50:09 | 显示全部楼层 来自: 中国浙江宁波
上面的高手画一下发上来看看!!!谢谢
发表于 2010-3-10 10:52:40 | 显示全部楼层 来自: 中国上海
随手画了一下 应该是这个思路
111.jpg
发表于 2010-3-10 10:56:08 | 显示全部楼层 来自: 中国江苏宿迁
8# KT-KID 是用的包裹命令吗?
发表于 2010-3-10 11:00:00 | 显示全部楼层 来自: 中国上海
9# 小辈
2 d; q) |, O) [$ {9 u& k对的
发表于 2010-3-11 09:56:57 | 显示全部楼层 来自: 中国上海
没有完全按照LZ的要求的画 不过思路差不多就是这样了~

零件2.rar

23.5 KB, 下载次数: 6

发表于 2010-3-11 15:03:54 | 显示全部楼层 来自: 中国浙江杭州
用扫描做的吧,,,
发表回复
您需要登录后才可以回帖 登录 | 注册

本版积分规则


Licensed Copyright © 2016-2020 http://www.3dportal.cn/ All Rights Reserved 京 ICP备13008828号

小黑屋|手机版|Archiver|三维网 ( 京ICP备2023026364号-1 )

快速回复 返回顶部 返回列表