QQ登录

只需一步,快速开始

登录 | 注册 | 找回密码

三维网

 找回密码
 注册

QQ登录

只需一步,快速开始

展开

通知     

查看: 2914|回复: 21
收起左侧

[求助] 外国图纸看不懂

[复制链接]
发表于 2010-3-13 18:11:54 | 显示全部楼层 |阅读模式 来自: 中国山东泰安

马上注册,结识高手,享用更多资源,轻松玩转三维网社区。

您需要 登录 才可以下载或查看,没有帐号?注册

x
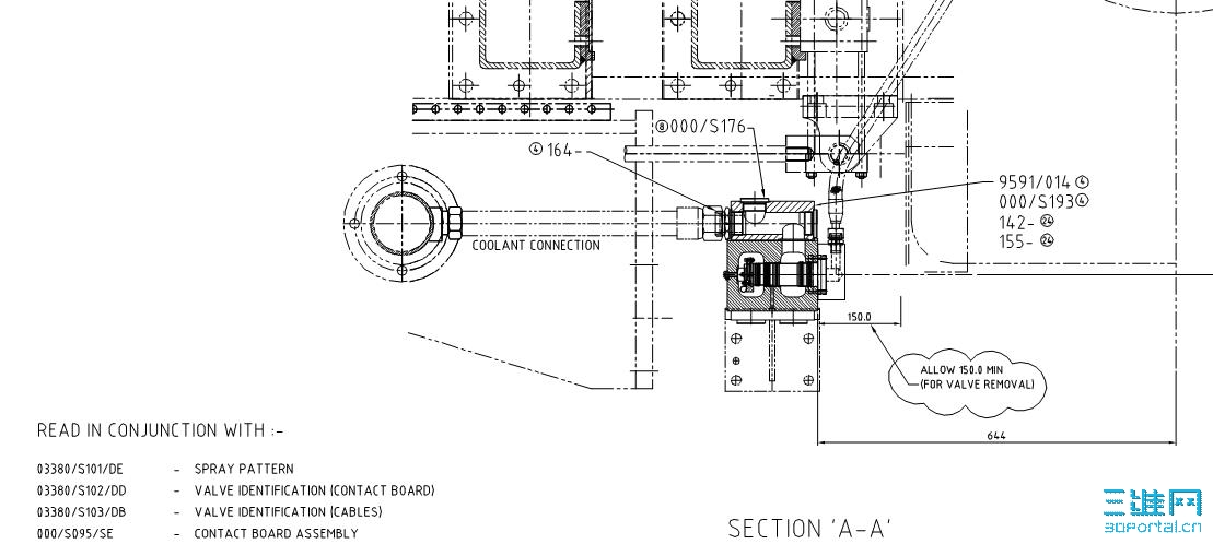
喷射梁.JPG
) l% i+ S5 x# [- [6 u$ {0 `图中④164是什么意思?
4 z2 Y! B" C4 P4 Q% f7 b& I我想知道这个管接头用的是什么螺纹?
 楼主| 发表于 2010-3-13 18:16:41 | 显示全部楼层 来自: 中国山东泰安
03380-S100-GE10 Model (1).pdf (444.36 KB, 下载次数: 93)
发表于 2010-3-15 10:01:55 | 显示全部楼层 来自: 澳大利亚
装配图上的标号多是零件号,查查零件列表中的零件号就知道是什么了!
发表于 2010-3-15 10:32:16 | 显示全部楼层 来自: 中国辽宁沈阳
也可能是这家企业的标准零件代号。
发表于 2010-3-15 10:35:49 | 显示全部楼层 来自: 中国北京
2# floodpeak
% T" e' ^) r9 _; I! ]% }* o: S& K7 t* b" F. R' {8 `
是啊,肯定有一张图有材料表的,楼主对着看一下就能知道是什么螺纹了,只从装配图看不出来的
发表于 2010-3-15 10:38:56 | 显示全部楼层 来自: 中国江苏常州
倒是有兴趣听楼主介绍介绍这个产品。
发表于 2010-3-15 11:08:45 | 显示全部楼层 来自: 中国山东潍坊
你应该安装配图号找到零件图。
发表于 2010-3-15 11:20:55 | 显示全部楼层 来自: 中国广东佛山
应用相应的BOM表
发表于 2010-3-15 21:06:31 | 显示全部楼层 来自: 中国上海
BOM表里对应的零件号
 楼主| 发表于 2010-3-15 21:19:10 | 显示全部楼层 来自: 中国山东泰安
倒是有兴趣听楼主介绍介绍这个产品。
% {4 x; `4 O/ Qftgww123 发表于 2010-3-15 10:38 http://www.3dportal.cn/discuz/images/common/back.gif

  |4 o2 U. [5 @  a1 b6 R7 R8 z6 j+ V这是冷轧机及铝箔轧机的喷射梁的图纸。
: y6 N8 q, l+ @; k$ C$ J+ C; G属于轧机板形仪系统的一部分。
发表于 2010-3-16 08:16:56 | 显示全部楼层 来自: 中国浙江杭州
图纸应该都是一样的,只要是工程师都可以看得懂的,
发表于 2010-3-16 17:31:59 | 显示全部楼层 来自: 中国四川绵阳
就是公制的M45X2的。因为上面管道上写着customer supply the fittings(配件){用户提供配件}配件应该包括管接头吧
发表于 2010-3-16 19:14:10 | 显示全部楼层 来自: 中国陕西渭南
学习中 。。。

评分

参与人数 1三维币 -5 收起 理由
xl.zhuo -5 复制他人发言

查看全部评分

发表于 2010-3-17 10:23:09 | 显示全部楼层 来自: 中国辽宁鞍山
应该是第164号材料的第4件
发表于 2010-3-17 12:49:34 | 显示全部楼层 来自: 澳大利亚
是零件号!
发表于 2010-3-18 11:41:48 | 显示全部楼层 来自: 中国广东东莞
一般项目部件,在看图纸的时候需要对照一些标准。其实,解决这样的问题,问一下客户的速度最快!
发表于 2010-3-19 16:29:29 | 显示全部楼层 来自: 中国辽宁沈阳
液压用G 螺纹较多
发表于 2010-3-19 21:20:58 | 显示全部楼层 来自: 中国上海
是这家企业的标准零件代号。
发表于 2010-3-19 21:25:22 | 显示全部楼层 来自: 中国江苏无锡
此螺纹很有可能含锥度,好像是冷冻管子接头
发表于 2010-3-20 13:39:22 | 显示全部楼层 来自: 中国浙江杭州
好象是编号
发表于 2010-3-20 19:49:02 | 显示全部楼层 来自: 中国山东潍坊
是啊!!应该是编号!
发表于 2010-3-20 20:09:55 | 显示全部楼层 来自: 中国北京
是标准件油路接头的标准件
发表回复
您需要登录后才可以回帖 登录 | 注册

本版积分规则


Licensed Copyright © 2016-2020 http://www.3dportal.cn/ All Rights Reserved 京 ICP备13008828号

小黑屋|手机版|Archiver|三维网 ( 京ICP备2023026364号-1 )

快速回复 返回顶部 返回列表