QQ登录

只需一步,快速开始

登录 | 注册 | 找回密码

三维网

 找回密码
 注册

QQ登录

只需一步,快速开始

展开

通知     

查看: 1501|回复: 1
收起左侧

[已答复] 初次接触花键,请大家帮我的草图分析以及提些意见

[复制链接]
发表于 2010-3-16 13:45:21 | 显示全部楼层 |阅读模式 来自: 中国浙江温州

马上注册,结识高手,享用更多资源,轻松玩转三维网社区。

您需要 登录 才可以下载或查看,没有帐号?注册

x
本帖最后由 凉商魄 于 2010-3-16 13:47 编辑 & q+ w) l6 n% O. z% w1 ~1 L

& m6 R+ j2 j7 W. h  e: G----8 f) m+ O; M+ D. Q5 p' u1 Y

( C. ^5 u9 B( o6 D3 M4 z( y
- J  L; M& c, u4 [2 G% F# ^3 m3 k初次接触花键,请大家帮我的草图分析以及提些意见
0 A: g4 ~' @$ v3 Hσp=2000*T/(ψ*z*H*L*Dm)≤[σp]- [  `' m* w3 w5 j  _8 k* z$ i
今天为了学习和实际中应用,我再论坛上搜索需要的花键资料, B( \+ o2 r5 @+ O1 I3 k- }
因为条件限制,工作中没有书籍以及资料,
1 G; u! e3 b; h1 a* I! ]2 |  U+ S
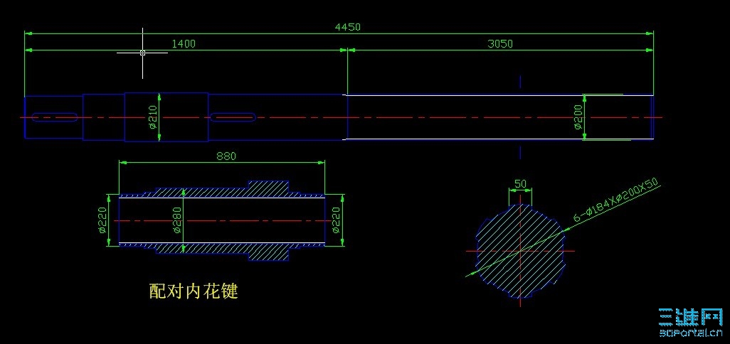
+ g  G6 i% A  |& S) ]2 @$ a2 Z下面这个案例,我是自己选择的,为了方便加工我选择矩形花键
( a1 r# p" v. s; {3 U) f花键轴200X3.05米长用铣床加工,内花键用插床加工200X880长
1 j' l& r+ T  ~0 i' G% |
; V( z' `5 \( M% F9 i1 \0 v; [# ~6-200X184X500 V" T* k6 e! }$ Q, v4 B7 X
" w5 D0 O, j; [7 O0 L' E9 d
驱动电机320KW  转速=750-1000转/分
/ U3 t7 t, ^: ]减速比1:20; C* |0 ]' {0 a+ l" }2 N( `8 m
ψ=0.8  H=8   L=有限工作长度880  Dm=192  Z=6
( D& F; S0 ^- L6 O4 Q% kT=9550X320(/1000/20)- t; l4 h) x( }
套上面的公式,σp最大=18.8: Z9 [: O: q2 B/ i) G' g

$ X8 o( Y% Z4 C9 a  {) S: [因为我查不到[σp],所以想来问下大家,; f# e8 D5 G, _! d( Y) C$ \4 W8 F! v! X

$ y: H" T6 V% Y1 h1 J( C2 X% a4 L·····¥¥——) K( k: _( z! v% D
一般花键或者普通键除了做挤压强度还需要做其他剪切、转矩等计算吗,那相应公式又是这样呢/ p) F2 j+ J- r% ]7 m
0 j" D- I" A3 v' d' E" e
# d$ ^: J, p( ~5 t- C% Z9 E" W1 s
还有我这个矩形花键这样选择尺寸合理吗,8 ?6 |3 `/ n' }( k- [& A

. K7 f  N8 B4 n/ Z; O! T2 m; A; O* b如果需要热处理应该如何选择呢--我自己的想法,花键轴因为太大太重就不热处理,45钢轧制件
) F) ]# S! \  \% s3 |花键套==因为壁不是太厚,选者加工前调质=255-280HBS,,材料选者45钢9 _& T0 K. c# ~2 C4 M
5 ^; x% H9 Q2 j' E' x5 x/ ~
一般花键小或者大的,都是如何热处理呢,也请大家说说  C, `5 p- P9 V* k4 H" `9 M1 S

0 A- c* F! X# B8 J! @+ t* n7 [# C
  e) q- x/ f3 L# e# r4 r----------另求助个矩形花键标准国标所有尺寸
* W* f' w4 I2 Z8 D$ o以及溅开线花键的标准尺寸,以及计算公式,很想了解下---不知道是不是和齿轮计算公式差不多) O3 t8 D0 V4 p- B9 A" {* ]. t+ Q% g
$ R4 K; B  m! W, Q
1.jpg

花键草图.rar

232.47 KB, 下载次数: 5

发表于 2010-3-17 21:38:01 | 显示全部楼层 来自: 中国浙江嘉兴
花键有相应的标准,你可以下载标准,进行选取尺寸。6 i6 |3 ~( c  D: ^3 X
贴二张图,希望能对您有用0 g9 J$ H1 C3 F' E, I
你可以下载:GB/T11447 k% N# ]5 S$ S. a' S' j
http://www.3dportal.cn/discuz/viewthread.php?tid=858134&highlight=1144
% R; T; w; J7 ~题外话,做设计工具书还是必须的。
1.png
2.png
3.png

评分

参与人数 1三维币 +2 收起 理由
天际孤帆 + 2 技术交流

查看全部评分

发表回复
您需要登录后才可以回帖 登录 | 注册

本版积分规则


Licensed Copyright © 2016-2020 http://www.3dportal.cn/ All Rights Reserved 京 ICP备13008828号

小黑屋|手机版|Archiver|三维网 ( 京ICP备2023026364号-1 )

快速回复 返回顶部 返回列表