QQ登录

只需一步,快速开始

登录 | 注册 | 找回密码

三维网

 找回密码
 注册

QQ登录

只需一步,快速开始

展开

通知     

查看: 3251|回复: 7
收起左侧

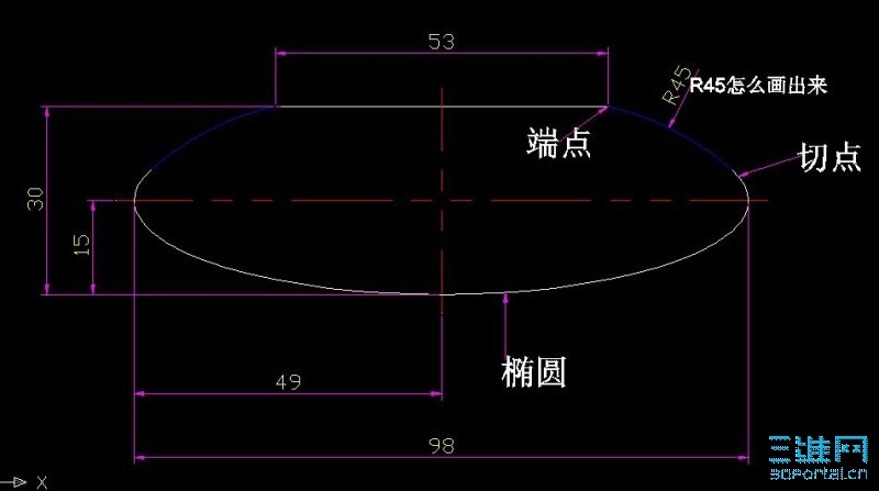
[求助] CAD习题:过已知直线端点做R45的圆弧与椭圆相切

[复制链接]
发表于 2010-3-16 20:21:36 | 显示全部楼层 |阅读模式 来自: 中国浙江杭州

马上注册,结识高手,享用更多资源,轻松玩转三维网社区。

您需要 登录 才可以下载或查看,没有帐号?注册

x
过一点与椭圆相切的圆.jpg 8 U0 q) O* l4 i: f$ |0 Y& o  i
(注:圆弧的圆心在切点左下方)
发表于 2010-3-17 08:17:00 | 显示全部楼层 来自: 中国浙江宁波
本帖最后由 sealive_leafage 于 2010-3-17 13:32 编辑
# @$ D9 E1 @7 u7 u, o: N2 Q. E- t1 Y! [7 H& v! U
autocad2010的解决方法如下
未命名.JPG
1.gif

Drawing1.dwg

145.72 KB, 下载次数: 1

评分

参与人数 1三维币 +10 收起 理由
2374 + 10 应助

查看全部评分

 楼主| 发表于 2010-3-17 08:28:34 | 显示全部楼层 来自: 中国浙江杭州
本帖最后由 634363900 于 2010-3-17 17:20 编辑 ' ?9 u/ H6 w9 @' h: h5 e8 O& P

. k8 V7 n' s# S+ }' V5 ~我晕!都说了这个是CAD习题,不是任务当然也不是工作了!还有这么多人来灌水!(用CAD2005以内版本制作不能使用约束功能)同样不能使用solidworks、proe、UG、solidedge等软件制作
发表于 2010-3-17 08:59:26 | 显示全部楼层 来自: 中国台湾
求助變CAD習題了
5 w6 ^# ]+ l3 [4 U  @7 `2樓的指導要轉彎了
发表于 2010-3-17 11:09:29 | 显示全部楼层 来自: 中国浙江丽水
现在出这些题目是不是在误导人家呢.有其它方式可以更方便的实现它为什么非要用CAD呢?工作中可只看你的效率,你CAD耍的再好有什么用?
发表于 2010-3-17 13:27:34 | 显示全部楼层 来自: LAN
这只是个入门的知识点了, 3点画圆就能做出 , 不论版本.
发表于 2010-3-17 13:44:37 | 显示全部楼层 来自: 中国江苏苏州
本帖最后由 jazyxz 于 2010-3-18 10:09 编辑 : E4 E3 b! D" j" s
$ M) c/ Q; C/ h6 r# H
没有很精确的方法
01.JPG
2.JPG

评分

参与人数 1三维币 +6 收起 理由
2374 + 6 谢谢参与

查看全部评分

发表于 2010-3-17 19:32:57 | 显示全部楼层 来自: 中国广东广州
这只是个入门的知识点了, 3点画圆就能做出 , 不论版本.7 s! L. }- m5 z/ W
ganyiwei 发表于 2010-3-17 13:27 http://www.3dportal.cn/discuz/images/common/back.gif
# R; j( r2 u0 E. f. p% @

' c9 f; l8 \: Z$ [' l7 A! q' i0 _ 刚刚试了下,这个方法对椭圆无效
11.jpg

评分

参与人数 1三维币 +5 收起 理由
2374 + 5 感谢验证

查看全部评分

发表回复
您需要登录后才可以回帖 登录 | 注册

本版积分规则


Licensed Copyright © 2016-2020 http://www.3dportal.cn/ All Rights Reserved 京 ICP备13008828号

小黑屋|手机版|Archiver|三维网 ( 京ICP备2023026364号-1 )

快速回复 返回顶部 返回列表