|
|

楼主 |
发表于 2010-3-19 16:08:19
|
显示全部楼层
来自: 中国北京
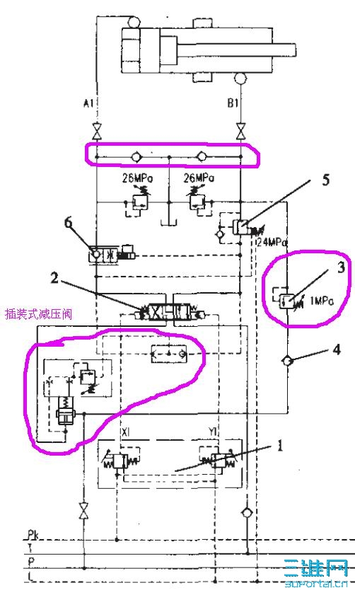
这个应该是步进梁中液压系统回路吧,, Z, i& D$ k5 M" Y) L
1.两个单向阀是补油用的
& P4 Q( ^( ^+ V2.插装式减压阀为定差减压阀,配合梭阀形成进口压差补偿,即进口压力补偿器,有成品,作用是维持比例阀进出口压差,保证比例阀流量的稳定性。
0 z& m5 ^ u- D$ d B4 P5 X3.阀5是 ...5 L9 H T' i4 Y j7 J1 }! L6 W3 f
stallone123 发表于 2010-3-18 19:59 http://www.3dportal.cn/discuz/images/common/back.gif 9 g+ v. j6 O4 h* Q5 F7 ]- o
1 q5 S5 U$ }) C多谢回复:)% r0 N5 D$ ~; T* [# H% y) z
1、两个单向阀下面的两个溢流阀作安全阀用,那么这两个单向阀应该不是用来补油的吧?
3 U" c9 n, w, n2、您的解答对我很有启发,这个减压阀的功用我已经明了,回头我再找找工作原理研究一下
" P8 V; S) R7 P4 w9 |- C3、在有杆腔进油的时候,系统压力能否快速可靠建立起来? 另这个溢流阀和单向阀之间会不会憋压力油?
$ C# \! [) j6 Q+ W- \; H2 n, @0 P这个是别人设计的系统呵呵 |
|