QQ登录

只需一步,快速开始

登录 | 注册 | 找回密码

三维网

 找回密码
 注册

QQ登录

只需一步,快速开始

展开

通知     

查看: 2027|回复: 1
收起左侧

[求助] ASTM4140,国内对应的材料应该是什么呢

[复制链接]
发表于 2010-3-19 00:59:48 | 显示全部楼层 |阅读模式 来自: 中国浙江杭州

马上注册,结识高手,享用更多资源,轻松玩转三维网社区。

您需要 登录 才可以下载或查看,没有帐号?注册

x
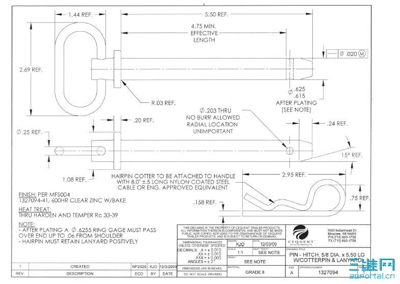
图纸要求等级8的销子,硬度要达到HRC 33-39,需要镀锌和烘烤。6 }2 V+ ?- x$ p( x/ d" s
美国那边应该用ASTM4140,国内对应的材料应该是什么呢?& T4 r# k% ~+ M7 B+ l7 W+ |
Gr.8 Pin.JPG
发表于 2010-3-19 07:59:52 | 显示全部楼层 来自: 中国广东深圳
ASTM4140对应GB/T 3077-1988的 42CrMo
发表回复
您需要登录后才可以回帖 登录 | 注册

本版积分规则


Licensed Copyright © 2016-2020 http://www.3dportal.cn/ All Rights Reserved 京 ICP备13008828号

小黑屋|手机版|Archiver|三维网 ( 京ICP备2023026364号-1 )

快速回复 返回顶部 返回列表