QQ登录

只需一步,快速开始

登录 | 注册 | 找回密码

三维网

 找回密码
 注册

QQ登录

只需一步,快速开始

展开

通知     

全站
5天前
查看: 1896|回复: 8
收起左侧

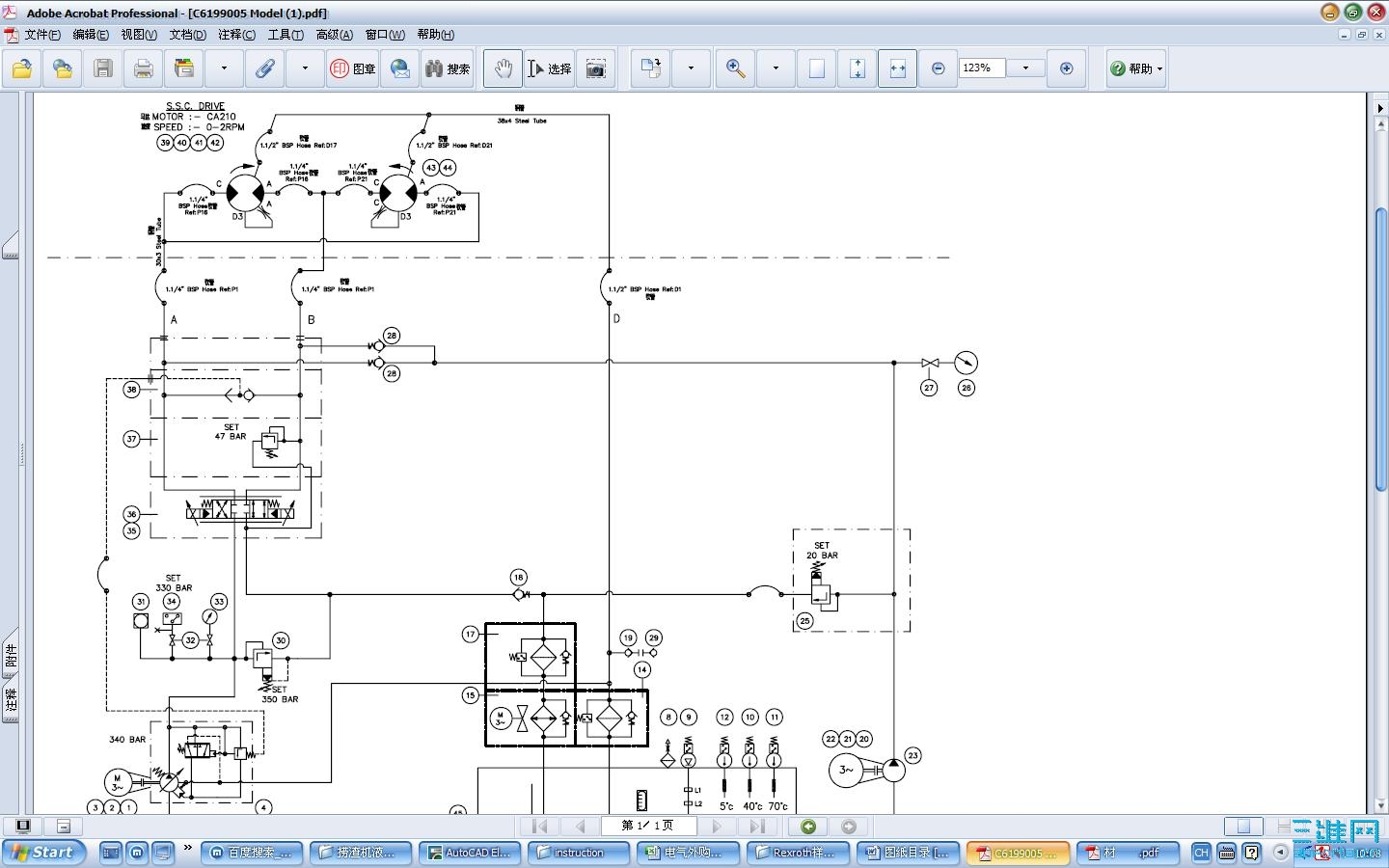
[求助] 这个系统中循环泵的作用,去掉影不影响使用?

[复制链接]
发表于 2010-3-25 08:03:57 | 显示全部楼层 |阅读模式 来自: 中国山东青岛

马上注册,结识高手,享用更多资源,轻松玩转三维网社区。

您需要 登录 才可以下载或查看,没有帐号?注册

x
主泵是 PVWH-25-RDFY-CFSYNTH-CP品牌oilgear,变量柱塞泵
! L3 s& A0 x7 p8 H0 s2 U! D循环泵是PLP10.5D品牌CASAPPA,齿轮泵* R( q" E/ L3 c" P
闭式系统加补油泵好理解。这个是开式系统
6 Z: Z  V: K& w求问循环泵的作用
& {& s1 u+ P$ m0 M5 T' Y: ^2 ^仅仅是降温?  Q: e1 R/ |6 @1 d- r: f
还有循环泵什么时候运转,是否是一直运行?
泵.JPG
 楼主| 发表于 2010-3-25 08:07:14 | 显示全部楼层 来自: 中国山东青岛
还有马达上D3那根管,跟了个节流的标志
# {" `% A0 C2 G! I; C9 L是什么作用?收集配流盘的泄露油到泄油孔么
0 \8 {3 V' A6 V样本上没给说明8 j) t0 H: [) N2 I0 G
马达的型号是CA210-C-A-O-N-0- w. _$ S- o0 o% T
Hägglunds
0 e  U) t7 |8 h  @如图 进出油口和泄油孔在另一面
IMG_1496.jpg
发表于 2010-3-25 19:41:30 | 显示全部楼层 来自: 中国浙江宁波
节流阀是流量冲洗。防止发热
 楼主| 发表于 2010-3-26 07:57:24 | 显示全部楼层 来自: 中国山东青岛
那循环泵的作用呢" H: ?$ C# p% y$ F
有人说是为了构成闭式系统2 K4 p+ S6 X) j4 T* r3 W+ @8 r6 @
但是主泵是开式泵啊
发表于 2010-3-27 16:08:40 | 显示全部楼层 来自: 中国辽宁锦州
呵呵 总算看到图纸了,赫格隆的原理很难改的。  我在现场扒了两个小时才原理图画出来,基本一样。辅助泵不能去。长时间没有辅助泵会存在损害马达的可能。
发表于 2010-3-27 16:13:12 | 显示全部楼层 来自: 中国辽宁锦州
本帖最后由 jinxialover 于 2010-3-27 16:21 编辑 " w% m6 A/ w8 g9 ^' C; w
# e, n& ?% o9 K
赫格隆的泵站时围绕着它的马达转的,从马达的角度去想一下。辅助泵应该先起,然后才能起主泵,这个时必须的。哥们,液压经验教训不到一定程度不要随便改赫格隆的原理。力士乐与派克的有时候可以改,我曾经利用加UPS减掉力士乐的十个阀。赫格隆的我一直想改,改到现在也没有改成。
 楼主| 发表于 2010-3-29 08:29:38 | 显示全部楼层 来自: 中国山东青岛
赫格隆的泵站时围绕着它的马达转的,从马达的角度去想一下。辅助泵应该先起,然后才能起主泵,这个时必须的。哥们,液压经验教训不到一定程度不要随便改赫格隆的原理。力士乐与派克的有时候可以改,我曾经利用加UPS减 ...
( ]0 j; t* C  {, Ajinxialover 发表于 2010-3-27 16:13 http://www.3dportal.cn/discuz/images/common/back.gif

& e4 O3 [, k" N9 K. c( m谢谢啊,我经常用的也是这几家的东西6 T& I( |% L8 Q% m" U# A2 b$ l& V
这个具体作用能给我讲一下么
. j( g1 f0 a  t# u. s: ?为什么去不得。
& z( O7 A: B" a  U* @) R% q% y% L我觉得这个泵仅仅是给回油油路补油的作用,减小发热。
发表于 2010-3-29 13:20:21 | 显示全部楼层 来自: 中国北京
辅助泵是补油用的。当马达需要由运转转到停止时,比例阀切换到中位,比例阀中位机能为O型,也就立即切断了马达的供油,而马达由于负载关系会有惯性,此时通过辅助泵提供所需油液,以免造成冲击。
 楼主| 发表于 2010-3-29 15:36:04 | 显示全部楼层 来自: 中国山东青岛
那辅助泵是常转额的?" h: B; E0 W3 y
起动的时候先起辅助泵% W! z1 g7 f1 ]3 g. k+ }9 M- T* {. k
停机的时候后停辅助泵?
发表回复
您需要登录后才可以回帖 登录 | 注册

本版积分规则

Licensed Copyright © 2016-2020 http://www.3dportal.cn/ All Rights Reserved 京 ICP备13008828号

小黑屋|手机版|Archiver|三维网 ( 京ICP备2023026364号-1 )

快速回复 返回顶部 返回列表