QQ登录

只需一步,快速开始

登录 | 注册 | 找回密码

三维网

 找回密码
 注册

QQ登录

只需一步,快速开始

展开

通知     

全站
4天前
查看: 1526|回复: 5
收起左侧

[已解决] 如何算这个工件的展开长度

 关闭 [复制链接]
发表于 2010-3-29 11:05:58 | 显示全部楼层 |阅读模式 来自: 中国福建厦门

马上注册,结识高手,享用更多资源,轻松玩转三维网社区。

您需要 登录 才可以下载或查看,没有帐号?注册

x
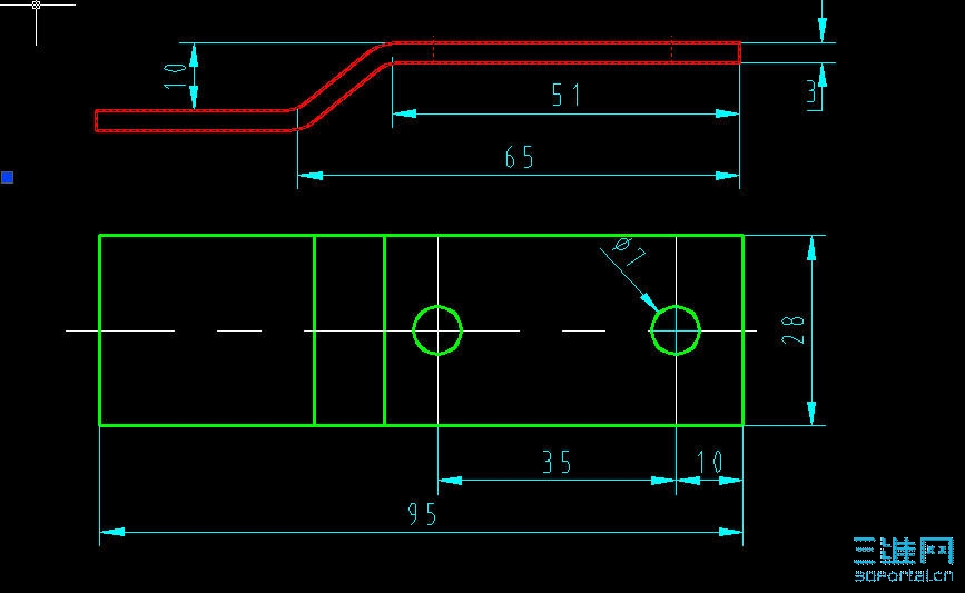
04.JPG 如何算这个冲压工件的展开长度 ,我应该剪多长的料呢?
发表于 2010-3-29 14:24:14 | 显示全部楼层 来自: 中国辽宁丹东
可以按板的中心线的长度进行计算。

评分

参与人数 1三维币 +2 收起 理由
天际孤帆 + 2 鼓励交流

查看全部评分

发表于 2010-3-29 14:34:05 | 显示全部楼层 来自: 中国山西太原
按各段板厚的中心面长度计算:51+17.2+(95-65)=98.2  (mm)。
 楼主| 发表于 2010-3-29 21:32:05 | 显示全部楼层 来自: 中国福建厦门
3# gaoyns 4 t3 S6 [- B3 H/ {; h% `
1 F+ ~1 p3 F9 s) Q0 a1 G# |4 k' r
按照这个长度就可以冲压成上图的尺寸?是这样的吗?
发表于 2010-3-29 21:53:56 | 显示全部楼层 来自: 中国贵州六盘水
因为是薄板冲压,按中心线计算的长度下料就可以冲压成要求尺寸。
发表于 2010-3-31 16:25:03 | 显示全部楼层 来自: 中国上海
按照中心线计算。
发表回复
您需要登录后才可以回帖 登录 | 注册

本版积分规则

Licensed Copyright © 2016-2020 http://www.3dportal.cn/ All Rights Reserved 京 ICP备13008828号

小黑屋|手机版|Archiver|三维网 ( 京ICP备2023026364号-1 )

快速回复 返回顶部 返回列表