QQ登录

只需一步,快速开始

登录 | 注册 | 找回密码

三维网

 找回密码
 注册

QQ登录

只需一步,快速开始

展开

通知     

查看: 2400|回复: 16
收起左侧

[求助] 反刮端面方法

[复制链接]
发表于 2010-3-31 16:57:32 | 显示全部楼层 |阅读模式 来自: 中国湖北黄冈

马上注册,结识高手,享用更多资源,轻松玩转三维网社区。

您需要 登录 才可以下载或查看,没有帐号?注册

x
如题,现箱体材料为A3钢板,需要用镗床反刮端面直径200mm,内孔105mm,批量生产,求加工方法,刀具选择。尺寸见图。
用镗床反刮端面.jpg
发表于 2010-3-31 18:56:38 | 显示全部楼层 来自: 中国安徽安庆
先将孔镗好,再在两孔之间停车,安装刮刀,(可以自己磨制一把),刮削200的平面
 楼主| 发表于 2010-3-31 20:15:37 | 显示全部楼层 来自: 中国湖北黄冈
那刮刀太长,镗杆也长,加上钢板不正,很难加工、
头像被屏蔽
发表于 2010-4-1 09:09:10 | 显示全部楼层 来自: 中国辽宁大连
提示: 作者被禁止或删除 内容自动屏蔽
发表于 2010-4-1 10:49:35 | 显示全部楼层 来自: 中国四川资阳
加工好了再组合上去。
发表于 2010-4-1 12:14:23 | 显示全部楼层 来自: 中国浙江杭州
先镗好孔,再对称加工.
 楼主| 发表于 2010-4-1 15:32:17 | 显示全部楼层 来自: 中国湖北黄冈
这个端面和孔要垂直的
发表于 2010-4-1 17:55:06 | 显示全部楼层 来自: 中国江苏扬州
考虑减少震动,最好在空心镗杆上增加一块焊接有刀片的过渡盘。
发表于 2010-4-1 23:53:58 | 显示全部楼层 来自: 中国山东泰安
加工好了再组合上去。7 O) S; |/ }- z" Y; q' O0 R
jwhjj 发表于 2010-4-1 10:49 http://www.3dportal.cn/discuz/images/common/back.gif

/ N9 D0 {- d$ R( G: [这图纸划的!!!竟然没有形位公差,这位老兄的主意可行
发表于 2010-4-2 08:17:49 | 显示全部楼层 来自: 中国安徽安庆
[quote]那刮刀太长,镗杆也长,加上钢板不正,很难加工
$ O$ B# @7 h1 w5 T: j3 j* b9 q实际刮刀要求长于100即可,至于镗杆太长,可以加长,切削震动,采用低速小切削量,也视镗床的主轴刚性而定
 楼主| 发表于 2010-4-5 10:57:20 | 显示全部楼层 来自: 中国湖北黄冈
空心镗杆有说明好处呢?镗杆在孔的位置只有30mm。。
' L$ {. X- U5 Q1 H1 b7 X端面都有垂直度要求的,必须精加工。
 楼主| 发表于 2010-4-5 18:43:05 | 显示全部楼层 来自: 中国湖北黄冈
补充说明下 我们是靠平行盘移动来加工
发表于 2010-4-6 18:50:40 | 显示全部楼层 来自: 中国山东烟台
不知道你这个刀杆能神到工件的什么位置,如果有垂直度要求,可以用万能镗头
发表于 2010-4-6 18:52:00 | 显示全部楼层 来自: 中国山东烟台
我上边说的是不是刀杆,是主轴。
 楼主| 发表于 2010-4-7 07:52:22 | 显示全部楼层 来自: 中国湖北黄冈
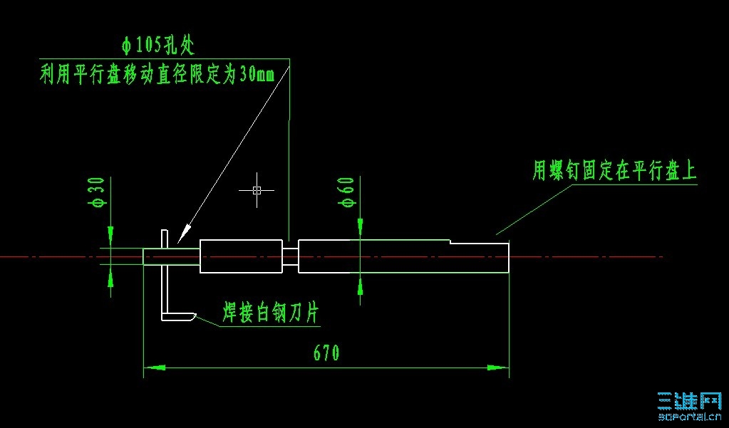
我们加工用镗杆简图如下:镗杆转速40RPM 请高手指点
刀杆.jpg
 楼主| 发表于 2010-4-8 08:41:46 | 显示全部楼层 来自: 中国湖北黄冈
这种方法加工慢啊 有高手解决吗
 楼主| 发表于 2010-4-13 17:56:49 | 显示全部楼层 来自: 中国湖北黄冈
没人人介绍个方法吗?刀具呢?
发表回复
您需要登录后才可以回帖 登录 | 注册

本版积分规则


Licensed Copyright © 2016-2020 http://www.3dportal.cn/ All Rights Reserved 京 ICP备13008828号

小黑屋|手机版|Archiver|三维网 ( 京ICP备2023026364号-1 )

快速回复 返回顶部 返回列表