|
|

楼主 |
发表于 2010-4-2 23:14:15
|
显示全部楼层
来自: 中国广东茂名
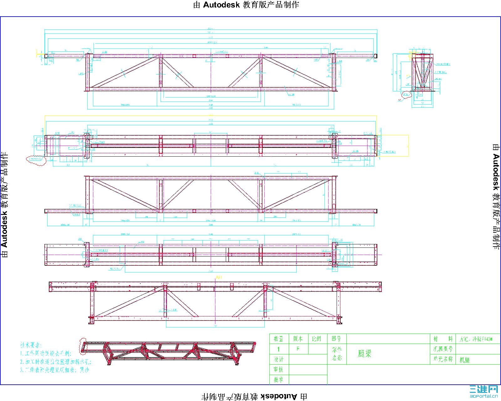
本帖最后由 slang868 于 2010-4-4 12:37 编辑 & D C* R( N$ R1 a
8 Q' ~$ s; H( u9 ]# n
这个公司的产品看的我眼花缭乱了,
3 G. L* H3 x' O# i+ m* L B# P* j我做了两个,有兴趣的试试看,
; {: X# ^% P2 @/ a7 J% u, k. O0 R9 E; C% @客户只给CAD档,
A6 s( j* g7 Q0 D" j然后只要实物。" z. C; R( \ H5 _# R6 s
- @/ H( x: t) Y$ B; j, H" D8 O看图要看透,很花时间。
3 h: B/ ]( ?. {" Y
% z, @8 O8 v+ [- A: K0 c, O分享一下做好的两款。 |
|