QQ登录

只需一步,快速开始

登录 | 注册 | 找回密码

三维网

 找回密码
 注册

QQ登录

只需一步,快速开始

展开

通知     

全站
1天前
查看: 2954|回复: 9
收起左侧

[求助] SW工程图中形位公差标注问题?

[复制链接]
发表于 2010-4-1 18:33:15 | 显示全部楼层 |阅读模式 来自: 中国上海

马上注册,结识高手,享用更多资源,轻松玩转三维网社区。

您需要 登录 才可以下载或查看,没有帐号?注册

x
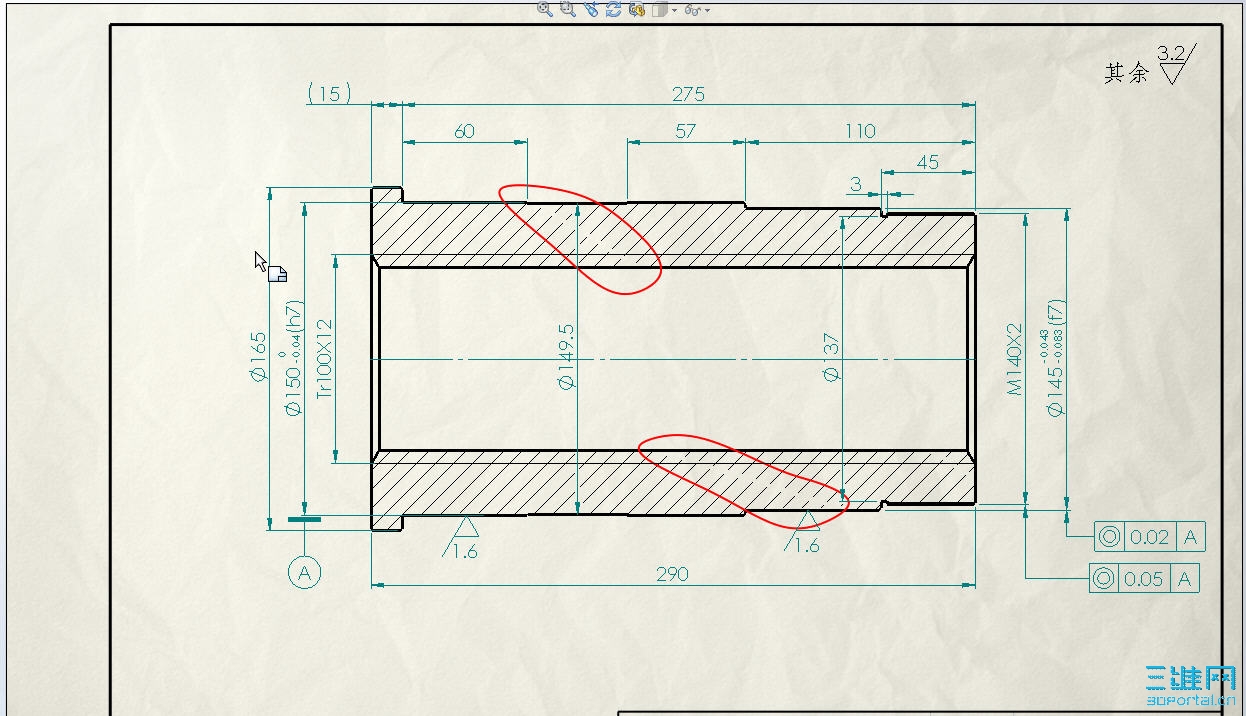
本人用的SW2008 SP5.0,在工程图中遇到一个小问题,但是又不知道问题出在哪里,请高手帮忙,详见附图:
; N* |' m- K! q2 [& C3 r+ { QQ.JPG ( [% U% ?$ F' m8 h4 d
在剖面视图中添加形位公差后剖面线被打断,如图中红圈位置所示,标注形位公差时,明明选的是尺寸,但是标注后剖面线就被打断了,不知是设置问题还是其它问题,请高手帮忙!!
发表于 2010-4-1 19:02:58 | 显示全部楼层 来自: 中国广东韶关
不是什么大问题!  r( U. L2 A% f
具体原因不知道。
发表于 2010-4-1 19:28:12 | 显示全部楼层 来自: 中国广西玉林
估计是显示问题吧,楼主可以打印一张图纸出来看看
 楼主| 发表于 2010-4-2 19:05:36 | 显示全部楼层 来自: 中国上海
我也觉得很奇怪,标注的时候选的是尺寸而且形位公差还可以随尺寸移动,但是标好后形位公差有一个点引到下图中红圈的位置,所以把剖面线打断了,真是郁闷!!请高手支招!!
* s5 T0 V/ z- ]6 `4 W8 d8 }; e8 R Snap1.jpg
 楼主| 发表于 2010-4-2 19:07:52 | 显示全部楼层 来自: 中国上海
估计是显示问题吧,楼主可以打印一张图纸出来看看7 ^$ g1 Z3 X1 n2 v# y7 [! \
机械设计520 发表于 2010-4-1 19:28 http://www.3dportal.cn/discuz/images/common/back.gif

  X% N5 ]$ `; O# h7 c% d  j不是显示的问题,打印出来后图纸上的剖面线还是被打断了,看起来挺别扭的。
发表于 2010-4-2 19:51:25 | 显示全部楼层 来自: 中国湖北鄂州
把剖面线删了,重新打剖面红!这是最简洁的解决办法!
发表于 2010-4-3 09:46:06 | 显示全部楼层 来自: 中国浙江杭州
打印失真了,
发表于 2010-4-3 12:44:20 | 显示全部楼层 来自: 中国河南郑州
重新做一次
 楼主| 发表于 2010-4-4 15:47:18 | 显示全部楼层 来自: 中国上海
谢谢各位的观点!期待更好的解决办法。
发表于 2010-4-4 16:14:27 | 显示全部楼层 来自: 中国安徽合肥
其实也不太影响效果的8 e$ z% Y$ d! |
楼主要求太高了
发表回复
您需要登录后才可以回帖 登录 | 注册

本版积分规则


Licensed Copyright © 2016-2020 http://www.3dportal.cn/ All Rights Reserved 京 ICP备13008828号

小黑屋|手机版|Archiver|三维网 ( 京ICP备2023026364号-1 )

快速回复 返回顶部 返回列表