QQ登录

只需一步,快速开始

登录 | 注册 | 找回密码

三维网

 找回密码
 注册

QQ登录

只需一步,快速开始

展开

通知     

全站
1天前
查看: 1175|回复: 2
收起左侧

[求助] 项目完成后图纸存档问题?

[复制链接]
发表于 2010-4-14 19:15:14 | 显示全部楼层 |阅读模式 来自: 中国上海

马上注册,结识高手,享用更多资源,轻松玩转三维网社区。

您需要 登录 才可以下载或查看,没有帐号?注册

x
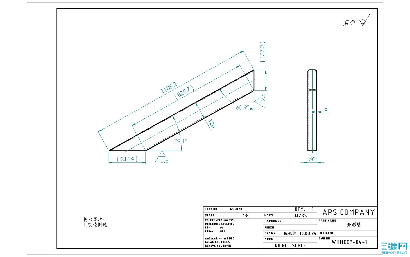
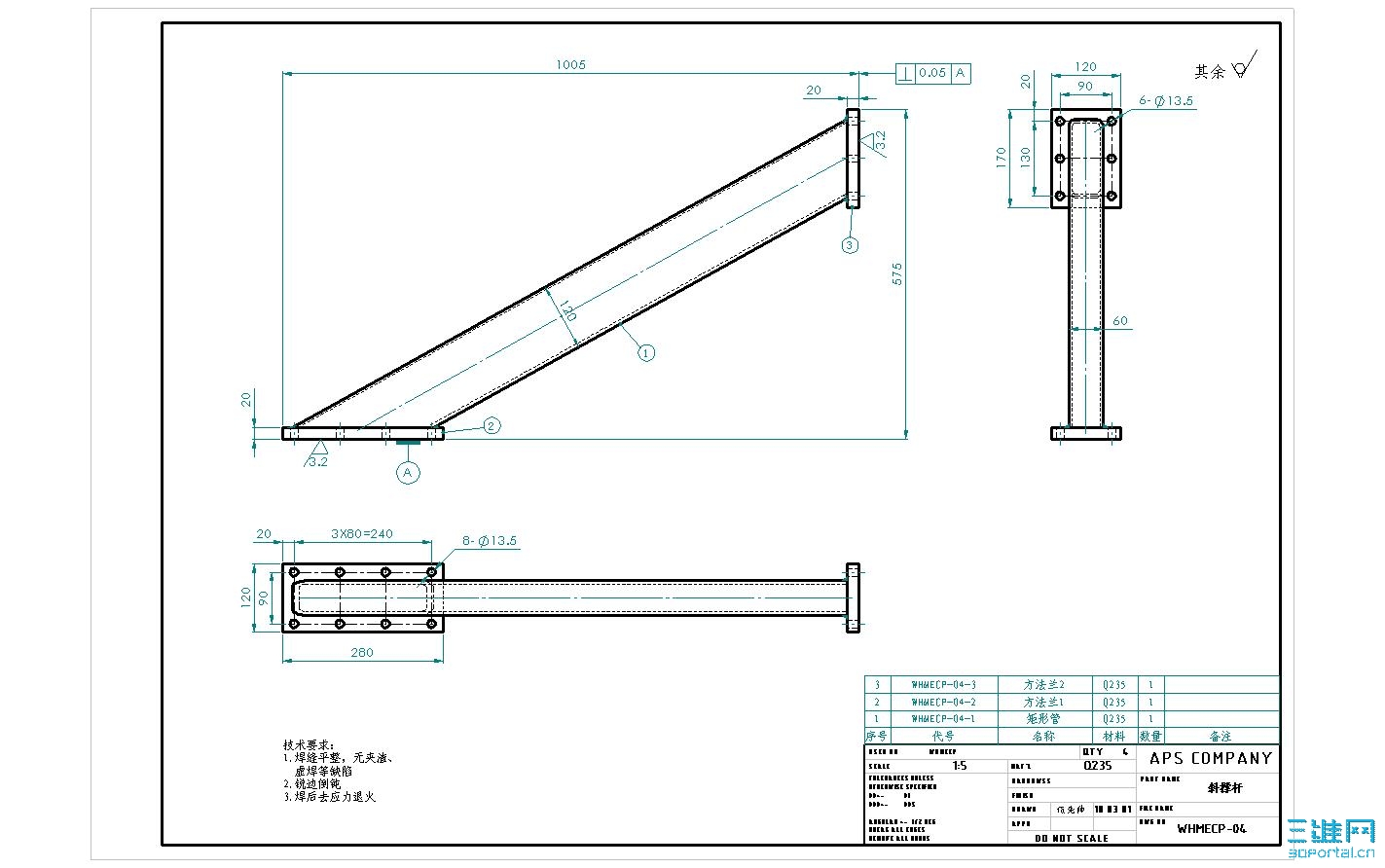
如题,当项目完成后一般图纸都需要存档(这里说的存档不是指在自己的电脑里保存),当然在打开总装图后可以选打包存档,但是这里存档后只包括装配图中所包含的零件及工程图,有时候有些零件是焊接加工件,在出图的时候焊件中的小件有些是单独出图的,所以此时打包的时候并未包含这些小件,请问类似这种情况怎么处理好点?假设单独打开焊件中的小件图然后打包,打包后的小件图还和焊接关联吗?见附图:
5 y/ T: p! s* ^% n5 G3 i3 j1.焊件图' T% C# O# Z) N" x
whmecp-04.jpg
' P* R0 E8 r: J; ~0 s2.焊件中的小件:
. A! A, A! X- }0 ^4 s whmecp-04-1.jpg
 楼主| 发表于 2010-4-14 20:45:42 | 显示全部楼层 来自: 中国上海
没人顶,自己先顶起!等高手来帮忙!
发表于 2010-4-14 22:16:31 | 显示全部楼层 来自: 中国河北保定
建议用SOLIDWORKS本身的PDM插件,10几个人的团队还是很不错的
发表回复
您需要登录后才可以回帖 登录 | 注册

本版积分规则


Licensed Copyright © 2016-2020 http://www.3dportal.cn/ All Rights Reserved 京 ICP备13008828号

小黑屋|手机版|Archiver|三维网 ( 京ICP备2023026364号-1 )

快速回复 返回顶部 返回列表