QQ登录

只需一步,快速开始

登录 | 注册 | 找回密码

三维网

 找回密码
 注册

QQ登录

只需一步,快速开始

展开

通知     

查看: 3966|回复: 26
收起左侧

[讨论] 大家看看这个零件机加工有什么好办法

[复制链接]
发表于 2010-4-21 09:20:02 | 显示全部楼层 |阅读模式 来自: 中国陕西西安

马上注册,结识高手,享用更多资源,轻松玩转三维网社区。

您需要 登录 才可以下载或查看,没有帐号?注册

x
本帖最后由 Hector198299 于 2010-4-21 10:52 编辑 " ~, g6 E& }5 s6 @

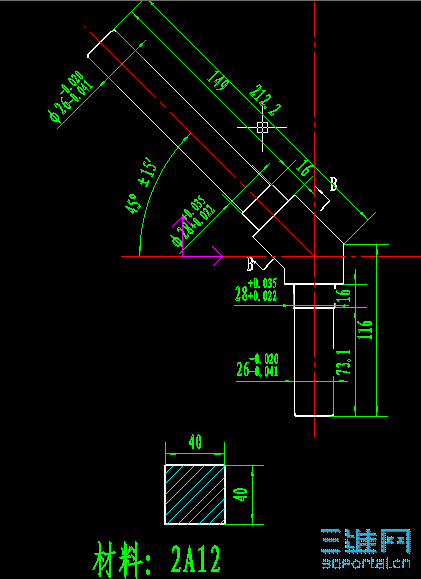
( b& v4 S. O$ f# N: S, r/ S- E大家看看这个零件机加工有什么好办法 截图01.png

无名文件2.rar

8.71 KB, 下载次数: 15

发表于 2010-4-21 09:52:01 | 显示全部楼层 来自: 中国陕西西安
重发一下图纸,什么都看不见。
 楼主| 发表于 2010-4-21 10:54:07 | 显示全部楼层 来自: 中国陕西西安
这个只有一件,最好用铝棒加工,看看有什么好办法,
发表于 2010-4-21 12:14:29 | 显示全部楼层 来自: 中国浙江杭州
建议使用焊接组合件工艺,成本也低.
发表于 2010-4-21 13:45:04 | 显示全部楼层 来自: 中国上海
直接加工的话工装不太好做,还是改成装配零件好些,中间转角处用铸造的接头
 楼主| 发表于 2010-4-21 14:07:33 | 显示全部楼层 来自: 中国陕西西安
各位大侠,这个只能是这样做,我做了个工装,只是还没有正式加工,不知道各位还有没有别的好办法,呵呵呵
发表于 2010-4-21 14:30:21 | 显示全部楼层 来自: 中国上海
这张图纸表达的不够完整,主要是B-B剖面以下的部分。LZ的意思是必须整体加工吗?
发表于 2010-4-21 15:38:05 | 显示全部楼层 来自: 中国陕西西安
最好是分开做再装配。做一件的话即就是有工装也很难保证尺寸要求。
发表于 2010-4-21 15:43:15 | 显示全部楼层 来自: 中国陕西西安
还有一个问题,用铝棒加工。需要多大的铝棒?至少是直径大于170,长度大于290的棒料。
发表于 2010-4-21 22:43:01 | 显示全部楼层 来自: 中国江苏南京
中间尺寸要求不高,两端轴要求高。建议采用锻打毛坯,中间方头成型,然后车外圆。
" \- s% A0 I" H3 q2 n3 o最主要考虑车外圆的定位和外圆余量。
发表于 2010-4-22 17:39:02 | 显示全部楼层 来自: 中国浙江台州
牛啊,大师们都是一席精验谈论而我只能瞪眼哦
发表于 2010-4-22 17:54:26 | 显示全部楼层 来自: 中国江苏无锡
学习下
发表于 2010-4-22 19:35:28 | 显示全部楼层 来自: 中国广东湛江
学习学习中
发表于 2010-4-23 07:57:33 | 显示全部楼层 来自: 中国山东烟台
模锻后再机加工比较好
发表于 2010-4-23 19:27:07 | 显示全部楼层 来自: 中国山东济南
什么地方用的啊 必须要整体吗  整体的工艺性不好
发表于 2010-5-12 01:39:05 | 显示全部楼层 来自: 中国辽宁阜新
如果批量大,建议采用模锻成型,再用工装车削加工两端
发表于 2010-5-12 12:21:52 | 显示全部楼层 来自: 中国湖北荆州
不知铝棒的塑性怎样,要是能压弯可以节约很多材料.
发表于 2010-5-12 17:23:02 | 显示全部楼层 来自: 中国江苏徐州
不知是否可在斜面上打顶尖孔,如可以的话可先铣斜面,打顶尖孔车外圆。
发表于 2010-5-12 17:35:29 | 显示全部楼层 来自: 中国天津
60的棒料,折弯;铣四方;四方定位,一端打中心孔;车成活;四方定位,另一端打中心孔;车成活;! _& @+ u' |; g0 J1 O1 e8 o
定位、夹紧工装要做好!
发表于 2010-5-12 17:42:48 | 显示全部楼层 来自: 中国陕西西安
铸造成型后,车削量有要求的外圆表面。车削是使用专用夹具,四方处定位。
发表于 2010-5-13 03:48:31 | 显示全部楼层 来自: 中国天津
真不错,赞一个,继续努力啊
发表于 2010-5-13 21:38:36 | 显示全部楼层 来自: 中国江苏南通
棒料弯曲后,车至要求,再加工40X40的方身(先用线切割,再用铣床),再加工其他尺寸
发表于 2010-5-16 00:16:26 | 显示全部楼层 来自: 中国辽宁阜新
大批量生产,可考虑模具压铸成型,再加工
发表于 2010-5-24 11:13:05 | 显示全部楼层 来自: 中国安徽蚌埠
用圆棒料先车成,2端圆柱留精车余量,中间方40X40铣成,加热退火,因为2A12退火后的4小时内塑性好,弯曲到45度,再做工装精车2端圆柱尺寸。
发表于 2010-5-24 12:08:18 | 显示全部楼层 来自: 中国浙江台州
楼主说了是一件产品,那就拿大的铝棒车出两头小直径的,然后折一下弯,把中间大圆柱铣成方形的
发表回复
您需要登录后才可以回帖 登录 | 注册

本版积分规则


Licensed Copyright © 2016-2020 http://www.3dportal.cn/ All Rights Reserved 京 ICP备13008828号

小黑屋|手机版|Archiver|三维网 ( 京ICP备2023026364号-1 )

快速回复 返回顶部 返回列表