QQ登录

只需一步,快速开始

登录 | 注册 | 找回密码

三维网

 找回密码
 注册

QQ登录

只需一步,快速开始

展开

通知     

查看: 2513|回复: 22
收起左侧

[已答复] 形位公差基准的问题

[复制链接]
发表于 2010-4-26 13:39:50 | 显示全部楼层 |阅读模式 来自: 中国安徽宣城

马上注册,结识高手,享用更多资源,轻松玩转三维网社区。

您需要 登录 才可以下载或查看,没有帐号?注册

x
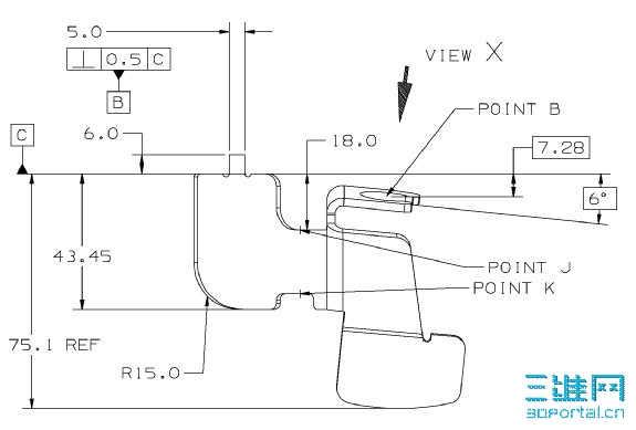
谁能帮我解释下B基准具体指的什么位置?谢谢6 ?" X& |' M! \- X/ m( b9 n
http://file:///C:/DOCUME~1/ADMINI~1/LOCALS~1/Temp/Catch0.jpg
发表于 2010-4-26 13:48:39 | 显示全部楼层 来自: 中国辽宁沈阳
图片传上来了吗  看不到哦
 楼主| 发表于 2010-4-26 13:49:16 | 显示全部楼层 来自: 中国安徽宣城

形位公差基准的问题

谁能帮我解释下下图B基准具体代表什么位置?谢谢
未命名.jpg

评分

参与人数 1三维币 -3 收起 理由
天际孤帆 -3 重复求助,减除不当得利

查看全部评分

发表于 2010-4-26 13:50:19 | 显示全部楼层 来自: 中国广东深圳
图片要用上传的,不是贴上的。
! e0 O: }, C: C8 p* d: E& M, W- e! w# `
file///C:/DOCUME~1/ADMINI~1/LOCALS~1/Temp/Catch0.jpg
发表于 2010-4-26 13:52:54 | 显示全部楼层 来自: 中国江苏常州
还是没有看到
发表于 2010-4-26 14:12:53 | 显示全部楼层 来自: 中国广东深圳
B基准具体指的 5.0宽垂直于C 偏差在0.05以内。3 J- J, ?/ m2 n0 Q1 j/ K
是以一个规范要求当一种基准。

评分

参与人数 1三维币 +2 收起 理由
天际孤帆 + 2 鼓励交流

查看全部评分

发表于 2010-4-26 14:13:09 | 显示全部楼层 来自: 中国上海
还真没见过这么标的,个人猜测是指5.0那个尺寸左边那个面!
发表于 2010-4-26 14:55:42 | 显示全部楼层 来自: 中国江苏常州
B基准指的是宽度5.0爪的理想对称中心面。

评分

参与人数 1三维币 +2 收起 理由
天际孤帆 + 2 鼓励交流

查看全部评分

 楼主| 发表于 2010-4-26 14:57:05 | 显示全部楼层 来自: 中国安徽宣城
我也认为是5.0这个侧面,起初和9楼所理解的一样,但ф17.0±0.2孔的位置度就不好去测量了(用CMM)
8 s: q- B/ [# R* I请指教,谢谢!
未命名.jpg
发表于 2010-4-26 19:34:58 | 显示全部楼层 来自: 中国江苏扬州
5尺寸中截面(与C垂直位置)
发表于 2010-4-26 19:49:18 | 显示全部楼层 来自: 中国浙江宁波
第一次见,长见识了
发表于 2010-4-26 20:19:35 | 显示全部楼层 来自: 中国吉林吉林市
我认为是尺寸5两端面对C基准的垂直度
发表于 2010-4-26 20:21:50 | 显示全部楼层 来自: 中国江苏南京
2楼解释正确,与C面垂直位置那个面。
头像被屏蔽
发表于 2010-4-26 22:26:27 | 显示全部楼层 来自: 中国天津
提示: 作者被禁止或删除 内容自动屏蔽
发表于 2010-4-26 23:27:15 | 显示全部楼层 来自: 中国江苏常州
1.与2楼一致,B基准指的是宽度5.0爪的理想对称中心面。% {/ N: y& w) K: t7 n4 B
2.楼主重复发帖了/ I, s# R5 E" P8 @. [. V. q1 t% Y- d5 i
http://www.3dportal.cn/discuz/vi ... &extra=page%3D1
发表于 2010-4-27 12:03:11 | 显示全部楼层 来自: 中国江苏苏州
搞不懂   呵呵
发表于 2010-4-27 12:30:02 | 显示全部楼层 来自: 中国江苏南京
是指5mm的两个侧面与基准面垂直。另一处位置度通常用三坐标测量或者配做一根芯棒。
 楼主| 发表于 2010-4-27 13:18:28 | 显示全部楼层 来自: 中国安徽宣城
谢谢!
发表于 2010-4-27 14:10:04 | 显示全部楼层 来自: 中国上海
B点实际是个距C面7.28的圆心点
发表于 2010-4-27 17:43:35 | 显示全部楼层 来自: 中国天津
11楼的观点是正解,同时应考虑5.0的两条边均要求垂直度0.5
发表于 2010-4-28 20:12:21 | 显示全部楼层 来自: 中国安徽淮南
标注错误。
( R1 v. R; d5 C/ y# I, F所谓基准,是指某个要素,而且,这个要素是呈理想状态的点,线,面等。绝对不是数值。
: h9 l3 x' i# D9 I1 C# B1 E& J! X图中的基准,却标在了一个位置公差上面。
发表于 2010-4-28 22:45:39 | 显示全部楼层 来自: 中国湖南长沙
标在了一个位置公差上面很多时候是可以的,问题是:按照惯例能找到明确的对象要素就可以的,楼主那个标注是有点儿不规范,也可说错误
发表于 2010-4-29 08:57:55 | 显示全部楼层 来自: 中国浙江温州
哪国的图纸呀 查下标准吧  没见过高深
发表回复
您需要登录后才可以回帖 登录 | 注册

本版积分规则


Licensed Copyright © 2016-2020 http://www.3dportal.cn/ All Rights Reserved 京 ICP备13008828号

小黑屋|手机版|Archiver|三维网 ( 京ICP备2023026364号-1 )

快速回复 返回顶部 返回列表