QQ登录

只需一步,快速开始

登录 | 注册 | 找回密码

三维网

 找回密码
 注册

QQ登录

只需一步,快速开始

展开

通知     

goto3d 说: 在线网校重磅上线MC2022&Inventor2022全新课程,虞为民老师、大表哥同事精彩讲解,快去围观!
2021-06-25
查看: 1815|回复: 14
收起左侧

[求助] 哪为大哥帮我画下这个图的3D

[复制链接]
发表于 2010-4-27 13:35:32 | 显示全部楼层 |阅读模式 来自: 中国浙江杭州

马上注册,结识高手,享用更多资源,轻松玩转三维网社区。

您需要 登录 才可以下载或查看,没有帐号?注册

x
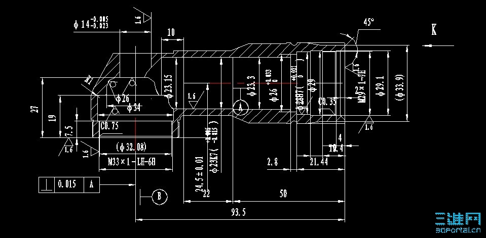
ww.jpg 未命名.jpg
 楼主| 发表于 2010-4-27 13:36:44 | 显示全部楼层 来自: 中国浙江杭州
帮我下啊   我实在不会画啊
发表于 2010-4-27 13:53:14 | 显示全部楼层 来自: 中国湖北十堰
这个应该很好画的    QQ:114608551   我来帮你
发表于 2010-4-27 21:22:51 | 显示全部楼层 来自: 中国广东广州
本帖最后由 fkewww 于 2010-4-27 21:30 编辑
8 m; b) K3 D5 U& J" @. z0 P4 s6 K" r7 X1 o. u& m4 A/ \
看的晕叉叉的
" ?' e' n5 Q- L/ m你弗衣36F6的F6是啥意思?公差等级?# K, B7 \' @* U
图1的弗衣33.9那是槽?是槽怎么用弗衣咧?少了图吧# M/ n* a' N% f. m& Y& G' j% F
(长度方向的50;22和10是做甚用的?有台阶?)没注意你尺寸标到下面去了!!
' `7 t& R" y* J4 c6 Z2 hCAD要学会用图层!!不知道你在的标注是不是用细实线标注的?1 s0 b# t; K2 _$ A
如果不是机加人员都等着哭吧!
发表于 2010-4-27 21:45:47 | 显示全部楼层 来自: 中国江苏徐州
用旋转和做外形,打孔(或选转)做内部
发表于 2010-4-27 22:29:23 | 显示全部楼层 来自: 中国广东深圳
这个图不难,你传的图片有点花,尺寸看不清,直接传DWG档好点。压缩一下
发表于 2010-4-27 22:31:17 | 显示全部楼层 来自: 中国广东惠州
很讨厌这种绘图风格。8 _+ N. r% O/ D* C
我习惯标注选另一种颜色,不然看得很晕很晕。
发表于 2010-4-27 22:48:39 | 显示全部楼层 来自: 中国广东珠海
比较简单的机械零件,楼主该自己学学3D造型了
发表于 2010-4-28 08:37:12 | 显示全部楼层 来自: 中国广东东莞
5楼正解,不过楼主的图真是很难看懂,而且很费神。楼主应该关注一下图层和线型的设置。
发表于 2010-4-28 09:20:46 | 显示全部楼层 来自: 中国广东佛山
把图纸打印成PDF或者直接上传DWG图纸会好点
发表于 2010-4-28 17:03:24 | 显示全部楼层 来自: 中国浙江宁波
电子图板画的
发表于 2010-4-28 19:23:46 | 显示全部楼层 来自: 中国河南郑州
图看不清楚很杂乱.
发表于 2010-4-28 19:25:27 | 显示全部楼层 来自: 中国浙江宁波
4# fkewww
+ X, v4 n! i  ?" x5 k$ n5 M估计是个学生在做毕业设计呢!这样的图纸下去,车间主任不跑到技术科打架去啊
发表于 2010-4-28 21:33:28 | 显示全部楼层 来自: 中国吉林吉林市
楼主,先解决一下画平面图水平,再来练三维软件
发表于 2010-4-28 22:06:18 | 显示全部楼层 来自: 中国浙江杭州
楼主真可怜……
$ `, c- B, }1 A( K5 c8 m/ k7 Y实际问题没解决倒是被批评了一大堆
发表回复
您需要登录后才可以回帖 登录 | 注册

本版积分规则

Licensed Copyright © 2016-2020 http://www.3dportal.cn/ All Rights Reserved 京 ICP备13008828号

小黑屋|手机版|Archiver|三维网 ( 京ICP备2023026364号-1 )

快速回复 返回顶部 返回列表