QQ登录

只需一步,快速开始

登录 | 注册 | 找回密码

三维网

 找回密码
 注册

QQ登录

只需一步,快速开始

展开

通知     

全站
10天前
查看: 2175|回复: 7
收起左侧

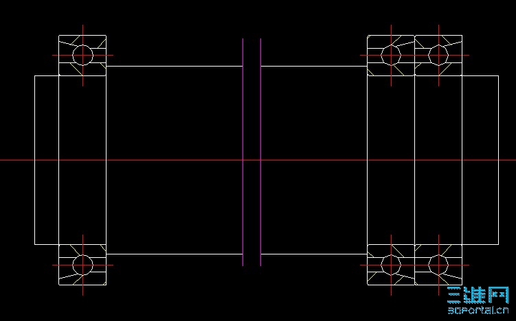
[求助] 角接触轴承能这样组合吗?如图

[复制链接]
发表于 2010-4-29 06:47:36 | 显示全部楼层 |阅读模式 来自: 中国辽宁沈阳

马上注册,结识高手,享用更多资源,轻松玩转三维网社区。

您需要 登录 才可以下载或查看,没有帐号?注册

x
机械设计手册上两个角接触轴承是可以并列的
QQ截图未命名.jpg
发表于 2010-4-29 08:58:38 | 显示全部楼层 来自: 中国上海
是可以这样的,以前有老工程师说这样可以抵消掉一部分的轴向力!
发表于 2010-4-29 17:39:29 | 显示全部楼层 来自: 中国江苏无锡
本帖最后由 xiayongjun 于 2010-4-29 18:04 编辑 5 @' L) s: g5 j7 |5 N& A
8 F/ V5 v- i; \$ J
可以并列的,市场上有成对轴承卖,成对轴承的间隙是轴承厂调好的!我们公司用的是NSK 的成对轴承(背靠背),用于承载和精度要求较高的机床主轴!如果不是买的成对轴承一般在两轴承间要加一对短套圈来调整轴承游隙!下面是M2116磨床主轴的轴承布局,前支承是一对成对角接触球轴承和一个内圈锥度为1:12的双列圆柱滚子轴承,后支承为一对成对角接触球轴承;双列圆柱滚子轴承承载径向载荷,两对角接触轴承承载轴向载荷和径向载荷。
轴承布局.jpg
发表于 2010-4-29 18:24:23 | 显示全部楼层 来自: 中国北京
只是要注意轴承的轴向的固定。理论上没什么不对。
发表于 2010-4-29 22:30:13 | 显示全部楼层 来自: 中国辽宁大连
当然可以这样安排,只不过有的组合是需要预紧的,这对这种轴承的应用是比较重要的。
发表于 2010-4-30 09:30:49 | 显示全部楼层 来自: 中国河南驻马店
1# qwert123
* ]6 t2 r# B- w' j- X7 o% _
  Z3 T6 J" @9 _5 c8 ^+ E5 l这样配置是没有问题的,只是装配时注意右侧的两套轴承要用组对的。
发表于 2010-5-18 22:00:41 | 显示全部楼层 来自: 中国辽宁大连
角接触有串联,背对背,面对面三种组配方式
发表于 2010-5-25 12:09:33 | 显示全部楼层 来自: 中国上海
这种组合也比较常见
发表回复
您需要登录后才可以回帖 登录 | 注册

本版积分规则


Licensed Copyright © 2016-2020 http://www.3dportal.cn/ All Rights Reserved 京 ICP备13008828号

小黑屋|手机版|Archiver|三维网 ( 京ICP备2023026364号-1 )

快速回复 返回顶部 返回列表